Osprey House/德赛嘉建筑
Osprey House / Desai Chia Architecture
设计理念与自然融合:“鱼鹰屋”项目最令人印象深刻的在于其与环境的和谐统一。设计师精准地捕捉了鱼鹰巢穴的特质,将其转化为建筑的语言,例如,抬高的二层公共空间如同鱼鹰的巢穴,提供了开阔的视野,使居住者能够沉浸在沼泽地的生态系统中。此外,建筑外立面采用了垂直的灰色墙板,灵感来源于自然保护区内的“鸟盲”结构,使房屋与周围的树木融为一体,达到了“伪装”的效果,不仅减少了对邻居的视觉干扰,也促进了野生动物的栖息。这种设计理念完美地体现了建筑与自然的融合。
材料与细节的精湛运用: 项目的精髓还体现在对材料的巧妙运用和细节的极致追求上。设计师选用了“寿糖板”技术处理的木材作为外立面,这种传统的日本炭化木材方法使立面防火、防腐、防虫,同时免维护并延长了木材的寿命。这种材料的选择不仅考虑了实用性,更赋予了建筑独特的质感和外观,其颜色和质地与海滩上的浮木相似,进一步强化了建筑与环境的联系。室内设计中,“寿糖板”的延续运用,为内部空间带来了温暖和质感。此外,北立面的大面积玻璃窗和屋脊天窗,巧妙地引入了自然光线,增强了室内空间的通透性和舒适性,充分体现了设计师对光线、材料和细节的精心把控。
空间布局的创新与实用:“鱼鹰屋”的空间布局设计也体现了其独特性与实用性。 建筑师采用了“倒置”的布局,将公共生活空间和室外露台设置在二楼,以获得最佳的视野和景观。这种设计不仅符合了当地的建筑传统,更充分利用了场地优势,创造出独特的生活体验。同时,一楼设置了入口门厅、卧室和家庭房等私密空间,保证了居住者的私密性。此外,东露台作为视觉和功能上的锚点,连接了社交与私人的空间,并与场地环境紧密相连。这种开放与私密、室内与室外的巧妙结合,体现了建筑师对居住需求的深刻理解和对空间布局的创新思考,使建筑既具有美感又兼具实用性。

© Paul Warchol

© Paul Warchol
建筑师提供的文字描述野生动物在Shelter Island的沼泽海岸繁衍生息,鱼鹰屋(Osprey House)就藏在它的树林里,这是Mashomack保护区边缘的一个建筑门槛。一条单行道的土路蜿蜒绕过保护区,最终到达雪松岛湾的这处房产。我们的客户乔·奎因想在这里为他的家人建造一个家,培养他们对海滩散步、皮划艇和生活在大自然中的热爱。
Text description provided by the architects. Wildlife thrives along the marshy shores of Shelter Island, and tucked into its tree line is the Osprey House- an architectural threshold at the edge of Mashomack Preserve. A one-lane dirt road winds around the Preserve, culminating at this property at Cedar Island Cove. Our client, Joe Quinn, wanted to build a home for his family here that would foster their love for beach walks, kayaking, and living within nature.

© Paul Warchol
Joe是Sag Harbor的当地建筑商,在过去十年中为我们的客户建造了另外两个项目。当要建造自己的房子时,乔请求我们的帮助,因为他喜欢我们的设计方法、光线的整合、材料的使用和对细节的关注。这所房子的灵感来自它的邻居——当地的鹗。鱼鹰在整个自然保护区茁壮成长,它们的巢穴无处不在,出现在树梢、电话杆和航海码头。它们的海洋性、适应性和高筑巢地激发了家的物质性、组织性以及与海岸的关系。
Joe is a local builder from Sag Harbor who built two other projects for our clients over the past decade. When it came time to build his own home, Joe asked for our help, as he loved our design methodology, integration of light, use of materials, and attention to detail. The home was inspired by its neighbors- native osprey. Osprey thrives throughout the nature preserve and their nests are ubiquitous, appearing in treetops, telephone poles, and nautical piers. Their marine nature, adaptability, and high nesting places inspired the home's materiality, organization, and relationship with the coast.

© Paul Warchol

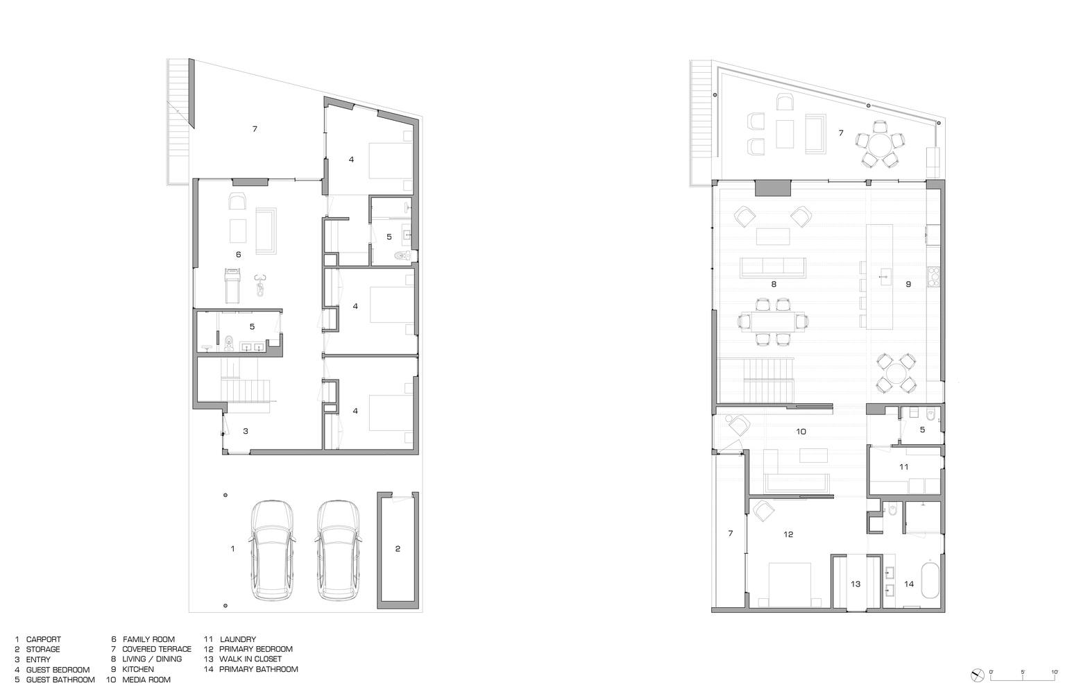
Plans

© Jake Balston
我们为乔的家设计了宽敞的公共生活空间和一个室外露台,露台位于二楼,灵感来自鱼鹰巢穴,类似于当地“倒置”房屋的传统。这为凸起的聚会空间提供了广阔的沼泽地生态系统的开阔视野;主卧室套房和媒体室也在二楼。入口门厅、三间卧室和一间家庭房位于一楼,海滩草提供了隐私。
We designed Joe's home with large communal living spaces and an outdoor terrace perched on the second floor in the spirit of an osprey nest, and similar to the local tradition of "upside-down" houses. This offers the raised gathering spaces expansive open views of the marshland ecosystem; the primary bedroom suite and the media room are also on the second floor. The entry vestibule, three bedrooms, and a family room are on the first floor, with beach grass offering privacy.

© Jake Balston
受自然保护区内“鸟盲”结构垂直板条的启发,垂直的灰色墙板使房屋与树木融为一体。伪装效果最大限度地减少了对海岸邻居的视觉干扰,鼓励野生动物占据该地块,并允许居住者从栖息处不显眼地观察大自然。墙板也被一种称为“寿糖板”的技术轻微烧焦这种传统的日本炭化木材的方法使立面防火、防腐和防虫,不需要维护,并延长了木材的寿命和耐用性。首杉板墙板质地柔软,颜色与海滩上的浮木相似,沿着内墙包裹,为内部带来温暖和质感。沿着北立面的膨胀玻璃全天都能带来柔和的光线,而沿着屋脊的天窗则可以让暴露的横梁被戏剧性的南方光线所冲刷。
Inspired by the vertical slats of "bird blind" structures that populate the nature preserve, vertical, gray, siding allows the home to blend into the trees. The camouflaging effect minimizes visual disruptions for neighbors on the coast, encourages wildlife to occupy the lot, and allows occupants to inconspicuously observe nature from their perch. The siding has also been lightly charred in a technique known as 'shou sugi ban.' This traditional Japanese method of charring wood makes the façade resistant to fire, rot, and bugs, requires no maintenance, and increases the wood's longevity and durability. The shou sugi ban siding offers a soft texture and color similar to that of driftwood found on the beach, bringing warmth and texture to the interior as it wraps along interior walls. Expansive glazing along the north façade brings in gentle light throughout the day, while a clerestory along the roof ridge allows the exposed beams to be washed with dramatic southern light.

© Jake Balston

Sunlight Diagram

© Jake Balston
沿着海岸,家里的航海形式像船头一样向水面突出,在一楼和二楼都提供了有盖的户外聚会空间。东露台是该场地的视觉和程序锚,楼梯从第二层下降,优雅地躺在地上,将社交和私人程序相互连接,并与场地相连。
Along the coast, the home's nautical forms project toward the water like a ship's bow, providing covered, outdoor gathering spaces on both the first and second floors. The east terrace is a visual and programmatic anchor to the site, with a stair dropping down from the second level to gracefully rest on the ground, connecting the social and private programs with each other, and the site.

Courtesy of Desai Chia Architecture