Cheer Kindergarten/HIBINOSEKEI+Youji no Shiro
Cheer 幼儿园 / HIBINOSEKKEI + Youji no Shiro
空间与功能的巧妙融合::该幼儿园项目最突出的亮点在于其对空间与儿童活动的深度理解。设计师巧妙地利用了建筑的中庭,将其打造为一个贯穿多层楼的开放式空间,并配备了大型攀爬设施。这个设计不仅为孩子们提供了上下运动的场所,也成为了不同楼层之间的视觉连接点和交流中心。教室与走廊的衔接处,设计师设置了通透的窗户和绘本角,极大地丰富了走廊的功能,使之不再是单调的通道,而是变成了学习和游戏的场所。这种设计体现了对儿童行为模式的深刻洞察,鼓励孩子们在自由探索中学习和成长。
自然元素与本土材料的和谐统一:该项目在设计中融入了丰富的自然元素,例如在中庭种植大树,以及“鸟巢”主题的运用。这不仅为孩子们创造了亲近自然的体验,也赋予了幼儿园独特的象征意义。“鸟巢”的设计元素被巧妙地融入到空间中,为孩子们提供了游戏和学习的场所。此外,设计还大量使用了本土材料,如旧红色砂岩和竹木复合材料,用于走廊墙面和“鸟巢”的建造。这种对真实材料的运用,不仅提供了视觉和触觉上的刺激,也增强了孩子们对家乡城市的认同感,体现了可持续的设计理念。
可持续设计理念的实践与创新::该项目在可持续设计方面也展现了卓越的实践。设计师最大限度地保留了建筑外立面,通过局部增加大开口门窗和折叠门,将幼儿园内的活动景象向外部展示。电动玻璃天窗的运用,则实现了对自然光线和空气流动的有效控制,从而减少了对机械设备的依赖,营造了舒适的室内环境。此外,通过草坪坡道的设置,连接了不同楼层的花园,扩大了儿童的活动范围,体现了对城市中心幼儿园有限空间问题的巧妙应对,也实现了空间利用效率的最大化,符合现代建筑的可持续发展趋势。

© Siming Wu

© Siming Wu
Interior design and renovation of a new kindergarten located in Nanshan District, Shenzhen, China. Shenzhen's economy and technology are developing rapidly, with many domestic and foreign trade and IT companies gathering here. The design concept refers to the regional characteristics of "development" and "growth", and in this context, creates a spatial environment that promotes children's spontaneous movement, self-directed learning, and creativity.
位于中国深圳市南山区的新幼儿园室内设计改造。深圳的经济与科技发展迅速,其中不乏国内外贸易及IT企业聚集于此,设计概念参考“发展”与“成长性”的地域特性,在此背景下,打造促进儿童自发地运动、自主学习与创造的空间环境。

© Siming Wu

© Siming Wu
The atrium of the building is a symbolic elevated space that spans four floors. With this space as the core, the three floors on the east and west sides are equipped with large crawling game facilities. The comfortable and spacious atrium connects all functional spaces, serving as a game and sports field for children to move up and down, a place for communication where different perspectives intersect, and a place for nurturing curiosity and challenges. At the location where the classroom connects to the corridor, a large transparent window facing the atrium and a picture book corner are set up to ensure sufficient light entering the classroom while enhancing the rich impression of the corridor. The conventional monotonous corridor becomes a place for games and learning.
建筑中庭是具有象征性的穿越四层楼的挑空空间,以该空间为核心,东西的三层楼分别配备了大型爬网游戏设施。舒适宽敞的中庭连接着所有的功能空间,是儿童上下活动的游戏与运动场,是不同视线交汇的交流场所,更是孕育好奇心与挑战的场所。教室连接走廊的位置上,设置了面朝中庭的大透明窗和绘本角,保证充足光照进入教室的同时,加强了走廊的丰富印象,常规单调的走廊变为游戏与学习的场所。

© Siming Wu

© Siming Wu

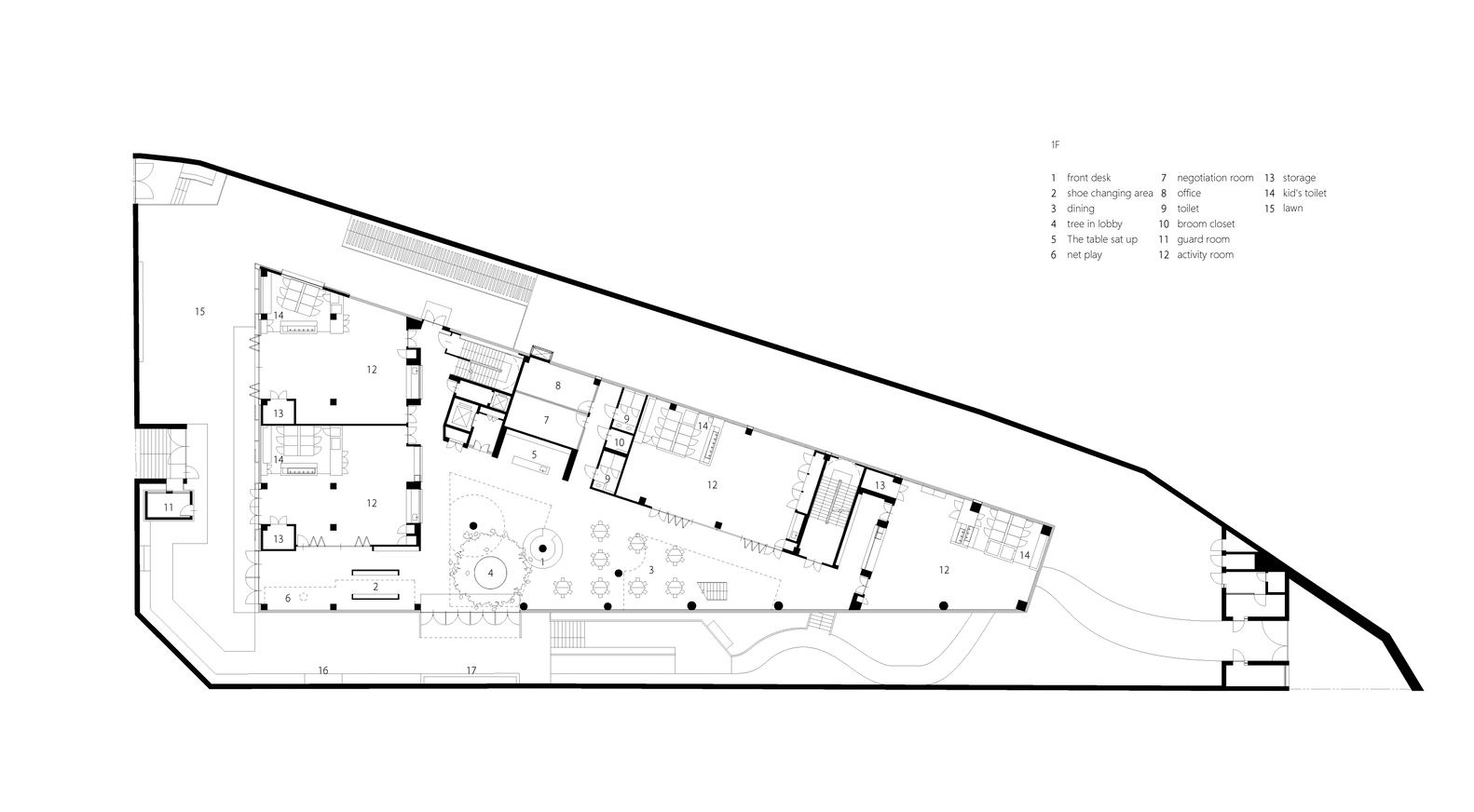
Plan - Ground Floor

© Siming Wu
In order to allow children to feel the natural changes no matter where they are in the kindergarten, a large tree has been planted in the courtyard. Over time, children can observe its growth and changes, which will also be integrated into the development of the kindergarten itself. In addition, the "Bird's Nest" that nurtures life is also the theme of this design. The Bird's Nest space is a space for games and learning, and the Bird's Nest element is a symbol of kindergarten, successfully leaving a deep impression in people's hearts.
为了让儿童无论身处幼儿园的何处,都能感受到自然的变化,设计在中庭种植了一棵大树,随着时间的流逝,孩子们可以观察其生长与变化,这种变化也将融入幼儿园自身的发展中。另外,孕育生命的“鸟巢”也是本次设计的主题,鸟巢空间是游戏与学习的空间,鸟巢元素称为幼儿园的象征,成功在人们心中留下深刻的印象。

© Siming Wu

© Siming Wu

Plan - 2nd Floor

© Siming Wu
The core concept of interior design lies in the use of real materials. The corridor walls are made of elements from the surrounding strata (old red sandstone) of the project site to create earthen walls, and bamboo wood composite materials are used to develop and depict the curved bird's nest shape, providing visual and tactile stimulation to children, creating a kindergarten that coexists with nature, and strengthening children's understanding and love for their hometown city.
室内设计部分的核心理念在于真实素材的使用,走廊墙体采用了项目地周边地层(旧红色砂岩)元素来制作土墙,用竹木复合材来开发和表现弯曲的鸟巢造型,从视觉与触感上给予儿童刺激,营造与自然共生的幼儿园,加强孩子们对家乡城市的理解、热爱。

© Siming Wu

Sections

© Siming Wu
In order to reduce the generation of building waste materials and consider the environmental burden, the design chooses to renovate the exterior facade of the building to the minimum extent possible, and locally add large opening doors and folding doors, with the aim of conveying the activity scene inside the kindergarten to the outside. The electrically operated glass skylight can cooperate with the courtyard to provide fresh air flow, control light and wind, and achieve a comfortable living environment that does not overly rely on machinery and equipment.
为了减少建筑废材产生和对环境负担的考虑,设计选择最低限度去改造建筑外立面,局部增设大开口门窗和折叠门,目的是把幼儿园内部的活动景象向外部传达,电动开关的玻璃天窗能够配合中庭,提供新鲜的空气流动,控制光与风,实现不过度依赖机器设备的舒适生活环境。

© Siming Wu
There is a common issue of limited space in kindergartens in the city center. The design uses lawn ramps to connect the gardens on the basement and basement levels, ensuring children's activity flow and exercise volume from a three-dimensional perspective, and expanding the scope of daily activities. Here, the kindergarten provides services that meet the needs of children at different stages of growth, arousing their interest and concern for all things, naturally guiding their physical and mental development, and promoting personalized growth from daily life.
城市中心的幼儿园存在面积条件有限这个共通的课题,设计用草坪坡道将负一层与一层的花园连贯,从立体上确保儿童的活动流线、运动量,扩大每日活动的范围。在这里,幼儿园提供了符合儿童不同成长阶段里的需求,引发他们对万物的兴趣与关心,自然地引导身体与心灵的发育,从日常生活去促进个性化的成长。

© Siming Wu