Beusi/Calvi Ceschia Viganò建筑协会别墅
Villa Beusi / Calvi Ceschia Viganò architetti associati
设计理念与环境融合:这个项目的核心亮点在于其对环境的尊重和积极的修复。在建筑设计中,设计师并没有一味追求现代感,而是以“恢复自然”为首要目标,将废弃的工业场地转变为宜居的住宅区。他们拆除了原有的破旧建筑,进行了环境净化,并将大部分土地恢复到自然状态,这种对土地的尊重和对自然的敬畏,体现了可持续发展的设计理念。这种设计理念不仅仅是停留在口头上,而是通过实际行动,为环境带来了积极的改变,最终实现了建筑与自然的和谐共生。
空间设计与景观的互动:该项目在空间设计上,巧妙地利用了景观,使建筑与环境融为一体。建筑师通过不同深度的体量变化,创造了与景观的和谐关系。入口处的开放通道,不仅使建筑变得通透,更增强了建筑与景观的渗透性。植物的运用也极为巧妙,从现有的地中海灌木丛到露天耕作,再到芳香草药花园,层层递进,创造了丰富的景观层次。建筑与景观的互动,使得居住者可以沉浸在自然之中,感受到空间的流动性和自然的美好,体现了卓越的景观设计能力。
细节的精致与工艺的体现:除了宏观的设计理念和空间布局,项目在细节上的处理也体现了精湛的工艺。设计师追求极简风格,避免了过度装饰,但同时又通过精湛的工艺来实现细节的精致。例如,外露混凝土与室内木制天花板之间的视觉连续性,体现了材料之间的协调性和统一性。这些细节的处理,体现了设计师对品质的追求和对工艺的尊重。这些设计细节共同构成了建筑的整体品质,使其既实用又美观,体现了建筑师对完美细节的不懈追求。

© Aldo Amoretti

© Aldo Amoretti
建筑师提供的文字描述这所房子的历史是坚韧和自豪的历史。正是这些情绪促使第一代育种者在附近垃圾填埋场挖掘出的材料制成的土地上建立了他们的畜牧场,第二代人开垦土地,在父母家旁边建造家园。
Text description provided by the architects. The history of this house is one of tenacity and pride. These are the emotions that led the first generation of a family of breeders to establish their livestock farm on land made up of excavated material from a nearby landfill, and the second generation to reclaim the land to build their home next to their parents' house.

© Aldo Amoretti

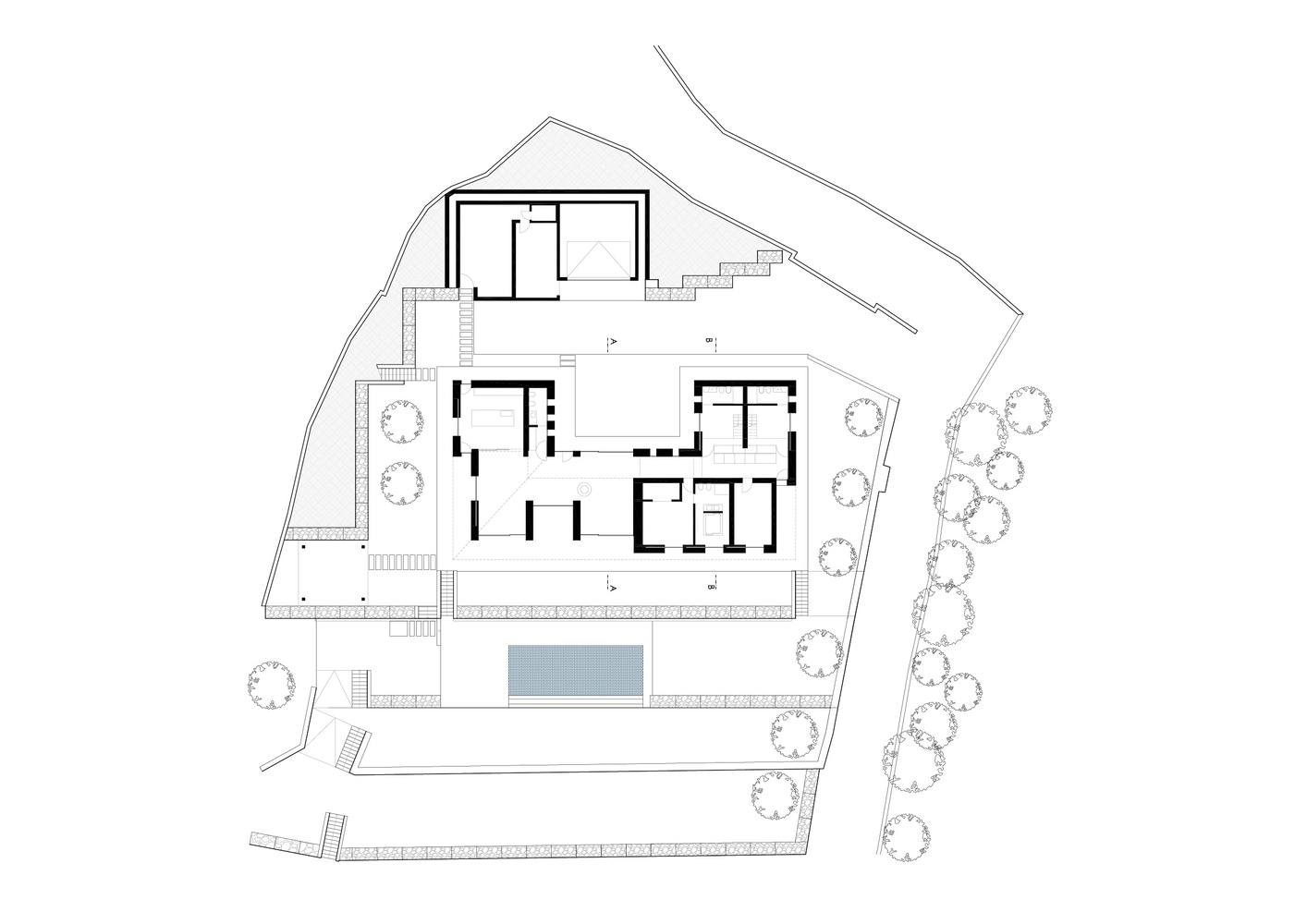
Ground Floor Plan

© Aldo Amoretti
在重建之前,该地区看起来像一个巨大的混凝土平台,废弃的棚屋上覆盖着石棉板,杂乱无章。从南部的挡土墙到进场道路,土地都是未开垦的。它改变了周围的景观,使自然绿色系统真正碎片化,并显著改变了农业区的结构特征。
Before the redevelopment, the area appeared as a large concrete platform with abandoned sheds covered in asbestos sheets, scattered in a disorderly manner. From the southern retaining wall to the access road, the land was uncultivated. It stood as an alteration of the surrounding landscape, creating a true fragmentation of the natural green system and significantly modifying the structural characteristics of the agricultural territory.

© Aldo Amoretti

© Aldo Amoretti
不可接受的情况-该项目旨在恢复自然和人工绿化与农业定居点之间的平衡。该计划涉及拆除现有建筑以实现环境恢复,将大部分被占用的土地恢复到自然状态,进行必要的净化工作,并用符合周围农业环境类型的住房单元取代现有的大量土地:与土地相连的独户住宅。景观本身决定了自然和建筑区域的空间和用途。绿化的概念不是泛泛而谈,而是根据其具体功能采取不同的形式。
An unacceptable situation - The project aimed to restore a balance between natural and artificial greenery and the agricultural settlement. The plan involved demolishing the existing buildings to achieve environmental recovery, returning much of the occupied land to its natural state, carrying out necessary decontamination work, and replacing the large existing volumes with housing units in line with the typology of the surrounding agricultural context: a single-family dwelling connected to the land. The landscape itself dictates the spaces and uses of both natural and built areas. The concept of greenery is not interpreted generically but rather takes on different forms according to its specific function.

Axonometry
当人们走近房子时,绿地变得越来越有条理。它从现有的地中海灌木丛开始,然后是露天耕种,这得益于土地管理员、橄榄林和果园、为住宅服务的芳香草药花园,以及一个“过滤”绿地,其中攀援植物覆盖着现有的墙壁和新建的梯田,可以缓和海拔变化,并允许种植新的树木。该项目实现了87%的表面重新自然化,仅重建了现有体积的25%。
As one approaches the house, the greenery becomes increasingly structured. It begins with the existing Mediterranean scrub, followed by open-air cultivations made possible by the presence of a land caretaker, olive groves and orchards, a garden of aromatic herbs serving the residence, and a "filter" green area with climbing plants covering existing walls and newly built terraces that soften elevation changes and allow for the planting of new trees. The project achieved the re-naturalization of 87% of the surfaces and reconstructed only 25% of the existing volumes.

© Aldo Amoretti

Section 1

© Aldo Amoretti
房子的设计刻意简单,尊重周围建筑的类型特征。它是一个单层结构,通过一系列不同深度的体量与景观建立了和谐的关系。在入口处,体积变窄,被开放的通道穿过,变得透明以确保与景观的渗透性,并从屋顶后退以创建有盖的过渡空间。
The design of the house is intentionally simple, respecting the typological characteristics of the surrounding buildings. It is a single-story structure that establishes a harmonious relationship with the landscape through a sequence of volumes of varying depths. At the entrance, the volume narrows and is traversed by open pathways, becoming transparent to ensure permeability with the landscape and retreating from the roof to create covered transition spaces.

© Aldo Amoretti
每一个细节都是最小的,故意低调,偶尔会因为精湛的工艺而进行微妙的改进——例如,在外部暴露的混凝土和内部的木制天花板之间实现视觉连续性。
Every detail is minimal and deliberately understated, occasionally allowing for subtle refinements thanks to skilled craftsmanship—for example, achieving visual continuity between the exposed concrete on the exterior and the wooden ceiling inside.
© Aldo Amoretti