对历史语境的现代致敬与场所精神的重塑:本项目最精髓之处在于其对城市家具历史角色的深刻反思与现代演绎。它超越了将公共厕所视为单纯功能性设施的传统观念,而是将其提升至“城市家具”的范畴,呼应了历史上此类元素在公共空间中扮演的标志性角色。设计通过分析和转译历史原型,用当代建筑语言激活了伊尔姆公园(Park an der Ilm)的历史文脉,使这一基础设施成为构成公共生活景观的一部分,而非隐形的背景元素,体现了对场所精神的尊重与传承。
经典结构元素的精细化解构与材料的策略应用:设计将建筑清晰地解构为基础、屋身和屋顶三大经典要素,并赋予它们清晰的功能和服务关系。这种结构上的清晰性,结合材料的策略性选择,是项目成功的关键。例如,混凝土底座的防水保护、室内瓷砖的实用性,以及支撑体系中木结构的自然表达,都展现了对细节的极致关注。尤其值得称道的是外立面通过涂漆钢材连接的实木板,这种内外材料的对比与呼应,不仅增强了建筑的质感,也体现了高标准的建造工艺。
细节设计对地域文脉的深度回应:本项目在细节处理上展现出深厚的地域敏感性。外立面通过精细布置的螺帽痕迹,不仅强化了立面的构成美学,更是对维也纳当地传统“公共厕所”(Bedürfnisanstalten)连接细部的巧妙致敬。此外,95厘米的出挑屋顶在提供实用遮蔽的同时,保留了铜质顶棚的形态暗示。从滴水嘴到标识系统的全方位考量,都证明了建筑师致力于将一个基础性功能建筑,通过对传统细节的精准复现与当代转译,打造成一个完整、有故事性的城市构件。
Reflecting on the history of our cities and parks, it is undeniable that so-called "street furniture" once played a more significant role. Today in cities, they are often painted in coal-black lacquer, almost becoming invisible in public spaces. People no longer specifically pursue the design of an iconic form. In the past, whether it was benches, trash bins, telephone booths, or public lavatories (Bedürfnisanstalten), they were designed and perceived more fully as furniture for public space.
回顾我们城市以及公园的历史,毋庸置疑,所谓“街道家具”在过去发挥了更加重要的作用。当今城市中,它们被刷上无烟煤色漆,仿佛在公共场所中隐形。人们不再确切地追求设计出一个具有标志性的形式。在过去,无论是长椅、垃圾箱、电话亭还是公共厕所(Bedürfnisanstalten),都更充分地被当作公共空间的家具来进行设计与阅读。

© Max Wasserkampf
The design of these elements historically was more reflective than it is today. Functional installations in public spaces communicated the city's brand image through architectural expression. In some European cities today, such as Vienna, you can still see how the presence of this urban furniture subconsciously shapes the perception of the city, forming part of the landscape of public life.
历史上,对这些要素的设计比今天更具反思性。位于公共空间的功能装置通过建筑化的表达宣传城市的品牌形象。在今天的一些欧洲城市,例如维也纳,你仍能看到这些城市家具的存在下意识地形成了感知城市的背景,构成了公共生活中如风景般的一部分。

© Max Wasserkampf

Site Plan
场地平面图
The public toilet in this project is located in the Park an der Ilm, a UNESCO World Heritage Site. The "public toilet" is not merely an industrially manufactured functional building; we analyzed and translated historical prototypes to express them in an appropriate contemporary language.
本项目中的公共厕所位于世界文化遗产伊尔姆公园(Park an der Ilm)。“公共厕所”不仅仅是工业制造的功能性建筑,我们对历史原型进行分析和转译,用适当的当代语言对其进行表达。

© Max Wasserkampf

© Max Wasserkampf

© Max Wasserkampf
The structure of the building is divided into three classic elements: base, main body, and roof. These elements not only function as independent design elements but also serve each other. The cast concrete base protects the building facade and ensures waterproofing. Inside, tiles are laid up to a height of 1.2 meters to facilitate cleaning. The support system is built as a timber frame structure, with stained solid wood panels used as reinforcing elements on the building's surface. Inside the building, these materials remain in their natural state. On the exterior facade, painted steel profiles are used for connections.
建筑的结构被分为基础、屋身和屋顶三个经典要素。这些要素不仅是独立的设计元素,也是互相服务的。混凝土浇筑的底座保护建筑外立面,起到防水效果。室内,瓷砖铺至 1.2 米的高度,确保清洁的便捷性。支撑体系采用木结构框架建造,通过上色处理的实木板用作建筑表面的加强元件。在建筑内部,这些材料保持了自然状态。外立面则使用了涂漆钢材进行连接。

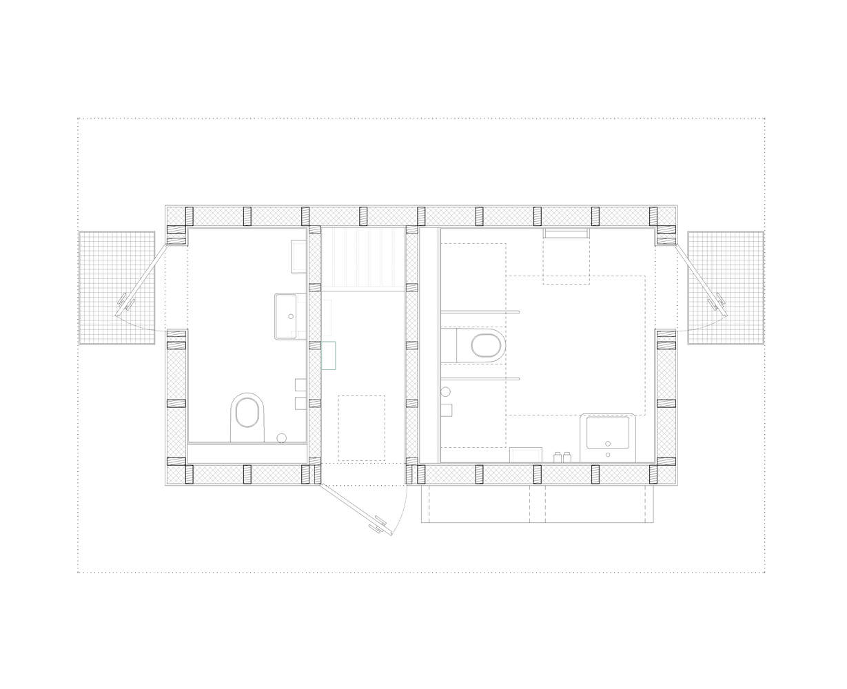
Floor Plan
平面图

Section
剖面图
The screw head marks on the building surface are not concealed but are used to reinforce the composition of the facade through careful arrangement. These joints also respond to the connection details of the local public lavatories (Bedürfnisanstalten) in Vienna. The roof cantilevers out by 95 centimeters to protect visitors from rain. It is constructed from two large glued laminated timber panels, preserving the form of a copper canopy. The design of this project also extends to the rainwater spouts and the signage system.
建筑表面的螺帽痕迹并没有被隐去,而是通过精细的布置强化了立面的构成。这些节点也是对维也纳当地“公共厕所”(Bedürfnisanstalten)连接细部的回应。屋顶向外出挑 95 厘米,以保护游客免受雨淋。它由两块巨大的胶合板材拼接而成,保留了铜质顶棚的形式。本项目的设计还细化到了滴水嘴与标识系统。
Text description provided by the architects, translated and organized by ArchDaily. For reprinting, please email ArchDaily. Unauthorized reproduction on other platforms will result in ArchDaily taking measures to protect its legitimate rights and interests.
文字说明由建筑师提供,由ArchDaily翻译及整理,如需转载请邮件联系 ArchDaily ,未经允许擅自转载至其他平台,ArchDaily 将采取措施以维护本平台合法权益。
Translator: Lu Xingjie
译者:吕星洁

© Max Wasserkampf