哲思引导的空间叙事:该项目巧妙地借鉴了音乐中的“奏鸣曲式”结构,将建筑设计提升到一种哲学层面,探讨生命的有限性与死亡的必然性。设计师将拥抱死亡的空间视为生命循环的有机组成部分,这种深刻的思辨为建筑赋予了超越物理形态的情感深度和仪式感。它不再仅仅是一个安放骨灰的场所,而是一个引导人们进行存在性反思的媒介,体现了建筑对人类终极命题的关怀与回应。
感官交融的静谧体验:项目极力追求一种宁静的氛围,旨在让来访者在“第六感”中与逝者灵魂产生连接。通过精心调控对天空、光线、风和水的感知,建筑创造了一个多维度的感官体验场域。这种对自然元素的强调,超越了传统的纪念方式,通过调动听觉、视觉乃至触觉,帮助遗属在静谧中实现与逝者、与生命境界的深层联结,这体现了高水准的空间氛围营造能力。
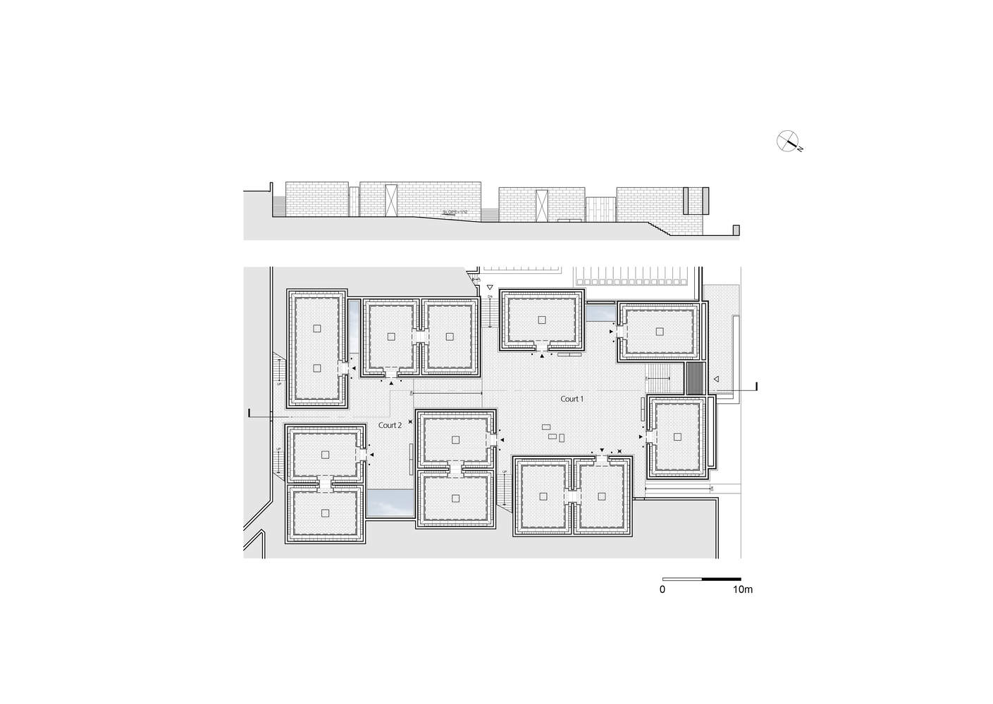
尺度与材料的张力构建:建筑选址于公墓中心,通过将8个骨灰存放结构巧妙地置于两个院落之间,有效地平衡了公共瞻仰与个人沉思的需求。设计语言上,采用“陌生的进口石材”来营造“熟悉的规模空间”,这种材质的陌生感与尺度的人性化之间的张力,成功地塑造出一种“亲密却生疏”的复杂情感印象。此外,设计通过墙体将外部自然环境与内部空间进行隔离,反而突出了对天空、风和水这些基本元素的直接感知,确保了记忆唤醒的空间真实性。
As a sonata form—a musical structure composed of variations and concluding with a coda—human beings recognize the finitude of life through the inevitable path of death. If death is regarded as a natural and necessary part of the cycle of life, then architecture that embraces death is actually mimicking life itself.
就像奏鸣曲式——一种由变奏组成并以尾声结束的音乐结构,人通过不可避免的死亡之路来意识生命的有限性。如果死亡被视为生命循环中自然而必要的一部分,我们就能理解拥抱死亡的建筑实际上是在模仿生命本身。

© Young Chae Park

Plan and Section
A tranquil atmosphere is necessary to recall the beautiful farewell while feeling the presence of the deceased soul. In the quiet space, visitors will feel the sky and light, wind, and water. By embracing the sixth sense in the space of death, the bereaved will feel connected to the realm of life.
为了感受逝者灵魂存在的同时回忆起美好的离别,宁静的氛围是必要的。在静谧的空间里,来访者将感受到天空和光线、风和水。通过拥抱死亡空间中的第六感,遗属会感到与人生境界相连。

© Young Chae Park

Section Detail
This project is located in the center of the cemetery and is an outdoor ossuary surrounded by small tomb clusters. Eight structures housing ashes are situated between two courtyards to help people adapt to observation and relaxation. By using unfamiliar imported stone to create a familiar scale space, it aims to create an impression that is both intimate and alien.
这个项目位于公墓的中心,是一个被小型墓群包围的户外骨灰室。8 个放置骨灰的结构被坐落在 2 个院落之间,以帮助人们适应观察和放松。通过使用陌生的进口石材创造一个熟悉的规模空间,旨在营造出亲密却生疏的印象。

© Young Chae Park

Plan and Section

© Young Chae Park
The natural environment surrounding the ossuary is shut off by walls. Therefore, people can perceive the elements that exist around the human body: the vast sky, the changes in clouds and wind, and the sound of water. The project seeks to create the authenticity of spatial experience—awakening memories of the deceased while feeling the architecture itself.
围绕着骨灰堂的自然环境隔绝于墙壁之外。因此,人们能感知存在于人体周围的元素:浩瀚无边的天空,风云的变幻和水的声音。项目希望营造空间体验的真实性——在感受建筑本身的同时唤醒对逝者的记忆。
Text descriptions provided by the architect, translated and organized by ArchDaily. For republication, please contact ArchDaily via email. ArchDaily will take measures to protect the legal rights of this platform if unauthorized republication occurs on other platforms.
文字说明由建筑师提供,由ArchDaily翻译及整理,如需转载请邮件联系 ArchDaily ,未经允许擅自转载至其他平台,ArchDaily 将采取措施以维护本平台合法权益。
Translator: QI TING YU
译者:QI TING YU
© Young Chae Park