历史文脉的深度致敬与当代激活:该项目坐落于格但斯克造船厂内具有重要历史意义的19世纪工业建筑31B号大厅,成功地将场地深厚的工业遗产与团结工会运动的历史记忆巧妙融合。设计理念并非简单地覆盖或抹去过往的使用痕迹(如木材干燥厂、食堂、拳击馆),而是选择与其“共存”,通过引入灵活的当代功能规划,激活了建筑的生命力,使其成为支持地方创意产业发展的核心枢纽。这种对历史层次的尊重和继承,是项目最精髓的文化表达。
极致的循环经济与材料叙事:面对建筑残旧和“再利用而非更换”的严格限制,设计将资源回收提升为核心策略,展现了高水平的材料智慧。项目中超过1000平方米的运动地板、拆除的天窗玻璃、回收的石材边角料、甚至酒吧的碎软饮料箱,都被赋予了新的生命,并保留了其原始的“印记”和故事性。这种对每一件回收材料的精细化处理和叙事化应用,不仅实现了极端的材料循环,更使室内空间充满了独特的、可触摸的历史对话感。
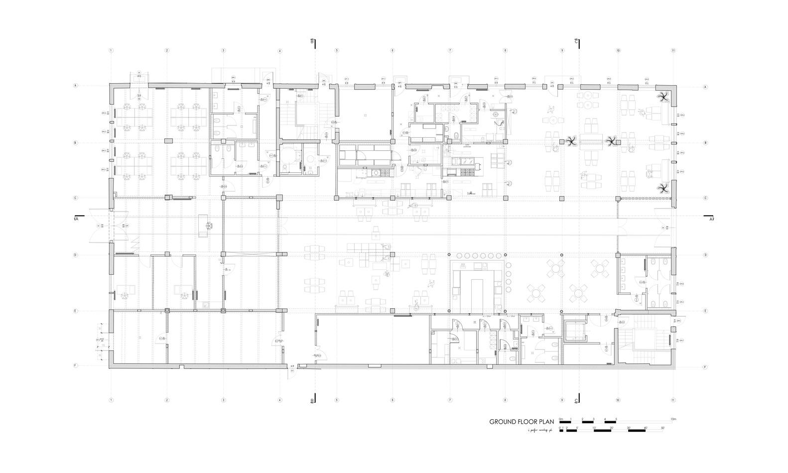
灵活适应性的空间策略与文化韧性:通过开放性、非刚性分隔的布局策略,项目确保了空间能够高度适应创意产业社群不断变化的需求。无论是长期工作室、临时驻留区还是公共工作区,都强调了元素的易拆卸和再利用。结合实用性的基础设施改进(如供暖和采光优化),该设计为艺术家提供了在快速城市变迁中宝贵的稳定环境。这不仅是对建筑适应性传承的延续,更确立了Grid Arthub作为一个坚韧、可持续的文化节点的战略地位。
From the architect. Located in Hall 31B, a late 19th-century industrial building within the Gdańsk Shipyard, the site is closely linked both to the shipbuilding industry and the Solidarity movement. From the project's inception, the aim was to preserve the hall's layered historical character while introducing flexible contemporary programming to support Gdańsk's growing creative industries. The design draws inspiration from the building’s long and varied history—it has served as a wood drying plant, canteen, boxing hall, and office space. Instead of erasing these historical traces, the design chooses to coexist with them, maintaining continuity while bestowing new uses upon the interior spaces.
来自建筑师。Grid Arthub 位于格但斯克造船厂内一座19世纪末的工业建筑 —— 31B 号大厅中,该场地在历史上既与造船业紧密相连,也与团结工会运动息息相关。项目启动之初,便旨在保留大厅的层次化历史特质,同时引入灵活的当代功能规划,以支持格但斯克不断壮大的创意产业。其灵感源自该建筑悠久且多变的历史 —— 它曾作为木材干燥厂、食堂、拳击馆及办公空间使用。设计并未试图抹去这些历史痕迹,而是选择与之共存,在保持连续性的同时,为室内空间赋予新的用途。

© PION Studio

© PION Studio
The main challenge of the project lay in the building's uneven condition. Many components were severely aged, and the founders of Grid required a strategy centered on reuse rather than replacement. This constraint ultimately became the guiding principle of the design. Materials were sourced either from the hall itself, from surrounding buildings, or from institutional replacements or discarded components. The design sought to maintain overall harmony while allowing each reused material to retain its unique story.项目面临的主要挑战在于建筑状况参差不齐。许多构件已严重老化,而 Grid 的创始人要求制定以再利用而非更换为核心的策略。这一限制条件最终成为设计的主导原则。材料或取自大厅本身,或来自周边建筑,或源于机构替换或废弃的部件。设计力求在保持整体和谐的同时,让每一件再利用材料都保留其独特的故事。

Ground floor plan
Recycled materials play a significant role in the interior design. Over 1000 square meters of sports flooring were sourced from the Chętnowo Olympic Training Centre. These wooden planks required manual disassembly, cleaning, and reinstallation without sanding, to preserve their original markings and colored lines.回收材料在室内设计中占据重要地位。超过 1000 平方米的运动地板取自切特涅沃奥林匹克训练中心。这些木板需手工拆除、清理并重新安装,且未进行打磨处理,以保留其原有印记和彩色线条。

© PION Studio

© PION Studio
The glass for the studio windows was taken from the skylights dismantled from the hall's roof. Stoneware tiles and stone offcuts were reused for flooring. Recycled plastic waste was molded into door handles, countertops, and partitions. Visible red and green interior elements were made from crushed soft drink crates provided by a nearby bar. Most furniture has been carefully selected for reuse or DIY-fabricated on-site, including pieces based on open-source designs.工作室窗户的玻璃取自大厅屋顶拆除的天窗。石器瓷砖和石材边角料被重新用于铺设地板。回收塑料废料被制成门把手、台面和隔断。可见的红色和绿色室内元素则由附近酒吧提供的碎软饮料箱制成。家具大多经过精心挑选、再利用,或采用 DIY 方式在现场制作,包括使用开源设计。

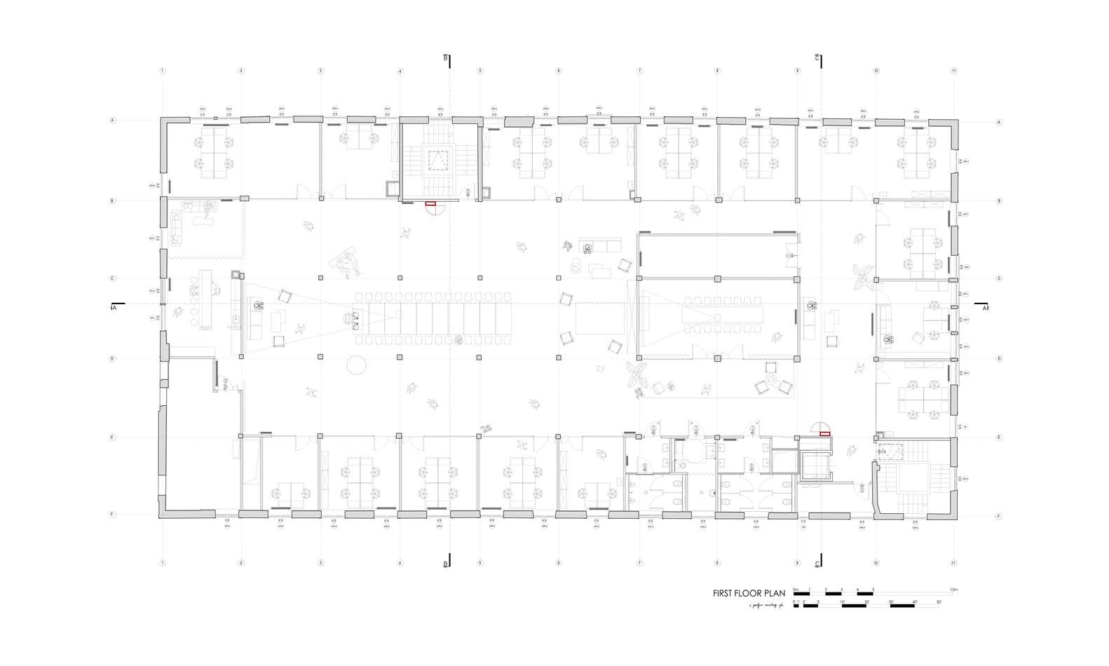
First floor plan
The spatial layout emphasizes openness, adaptability, and durability. The ground floor accommodates long-term studios, temporary residency spaces, and public work areas. The layout avoids rigid divisions to foster coexistence and expansion between different disciplines. Elements such as bookshelves, large communal tables, and announcement structures are designed to be easily dismantled or repurposed, ensuring the space can evolve with the needs of the occupying community.二层平面图
空间布局强调开放性、适应性和耐用性。首层设有长期工作室、临时驻留空间和公共工作区。布局避免刚性分隔,以促进不同学科间的共存与拓展。书架、大型公共桌子和公告结构等元素均设计为易于拆卸或重新利用,确保空间能够随入驻社区的需求而演变。

© PION Studio

© PION Studio
The renovation preserved the hall's industrial character while introducing practical improvements such as heating, water supply, and optimized natural lighting workspaces. These changes, combined with long-term lease agreements, provide artists with a stable environment in a rapidly changing neighborhood. The project positions the building as a resilient cultural node, continuing the shipyard's legacy of adaptability through architectural reuse and flexible design.此次翻新保留了大厅的工业特色,同时引入了加热、供水及优化自然采光的工作空间等实用改进。这些变化,结合长期租赁协议,为艺术家在快速变迁的街区中提供了稳定的环境。该项目将建筑定位为一个坚韧的文化节点,通过建筑再利用和灵活设计,延续了造船厂的适应性传承。

© PION Studio