场地文脉与功能融合的典范:该项目成功地将一座合同制造商的总部大楼植入到具有特殊地理和文化背景的工业园区内。设计巧妙地平衡了对内提升运营效率、整合分散部门的需求,以及对外回应富山的自然环境(如立山连峰)与历史文化(如北前贸易船)的责任。建筑通过L形体量与相邻公园的有机结合,将工作场所的边界向社区开放,实现功能整合与文脉致敬的双重目标,体现了现代企业建筑对社会责任和地方精神的深刻理解。
适应性设计与员工福祉优先:设计核心来源于对员工需求的深度挖掘,旨在支持自发交流、专注工作与放松休息之间的流畅转换。在应对场地挑战(如防洪要求和邻里日照保护)时,建筑采取了抬高主体办公层、优化南立面等积极策略。采用钢结构、全玻璃幕墙结合木质百叶天花板的应用,不仅实现了优美的空间质感和环境缓冲,更重要的是通过被动式气候控制(遮阳、自然通风)和引入自然光,为员工创造了一个健康、宜人且高效的工作环境。
生态与景观的垂直渗透:建筑巧妙地利用了其场地特性,通过架空层、环绕式阳台和屋顶露台,将自然元素——特别是当地药用草本和树木——引入建筑垂直维度。首层架空空间不仅解决了防洪问题,更成为了一个向公众开放的景观界面,利用高山水源灌溉绿地,实现了建筑与自然生态系统的连接。这种设计手法模糊了室内外的界限,使建筑成为一个呼吸的、与地域气候和水文系统紧密相连的有机整体。
Juzen Chemical Corporation, established in 1950 in Toyama City, Japan, is a contract manufacturer of active pharmaceutical ingredients. The company, located in an industrial park between the Jinzu River and the Fuji River Canal, decided to consolidate its dispersed offices, meeting rooms, and cafeteria into a new headquarters building. This new structure not only enhances operational efficiency but also reflects Toyama’s natural environment and cultural heritage, while providing a workplace that improves employee well-being and connects closely with the surrounding community.
瑞穂化学株式会社(Juzen Chemical Corporation)成立于 1950 年,位于日本富山市,是一家活性药物成分的合同制造商。该公司坐落于一个工业园区内,位于神通川与不二越运河之间,决定将分散的办公室、会议室和餐厅整合至新的总部大楼中。这座新建筑不仅提升了运营效率,还反映了富山的自然环境与文化遗产,同时为员工提供了一个提升福祉、与周边社区紧密相连的工作场所。

© Shigeo Ogawa
The design was inspired by a series of employee workshops involving staff from various departments and generations. Discussions highlighted the company’s deep cultural foundation that values spontaneous communication, alongside the need for individual focus spaces. The resulting design concept fosters an environment supporting seamless transitions between independent work, collaborative exchange, and relaxation. Furthermore, the design draws inspiration from the Tateyama mountain range and the Kitamaebune trade ships that once transported medicinal ingredients from Toyama to wider regions.
设计灵感源自一系列员工研讨会,参与人员来自不同部门和各代员工。讨论中凸显了公司重视自发交流的深厚文化底蕴,以及对个人专注空间的需求。最终形成的设计理念营造了一个环境,支持员工在独立工作、协作交流与放松休息之间无缝切换。此外,设计还从立山连峰和曾将药用成分从富山运往更广区域的北前贸易船中汲取灵感。

© Shigeo Ogawa

© Shigeo Ogawa
The site presented both challenges and opportunities. A private residence occupied one corner, while a small park sat at the other. To avoid blocking daylight for the neighboring house and ensure morning sunlight penetration, the south facade was designed as a flat plane. This decision resulted in an L-shaped building volume that embraces the adjacent park, integrating it into the work experience. Additionally, as the site is located within the Jinzu River's floodplain, the main office functions needed to be elevated above ground level for enhanced flood resilience.
该场地既带来了挑战,也蕴含了机遇。场地的 一角有一座私人住宅,另一角则是一个小公园。为避免遮挡邻近住宅的采光,并确保早晨的阳光照射,南立面设计为平整的平面。这一决策造就了一个L形建筑体量,与相邻公园相拥,使其成为工作体验的一部分。同时,场地位于神通川的洪泛平原内,因此主要办公功能需提升至地面以上,以增强防洪能力。

First Floor Plan

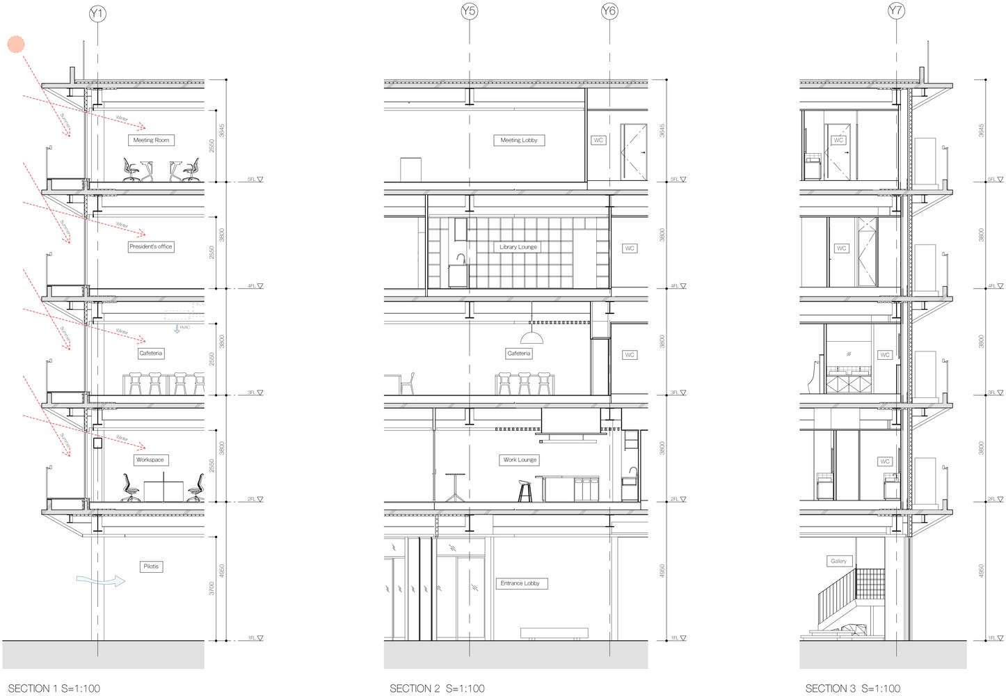
Section
The ground floor is designed as an open space featuring a reception area, a gallery showcasing company activities, and a wind passage for vehicle access. Office suites and break areas for the main departments are located on the second floor, while the third floor houses a cafeteria shared by office and factory employees. The fourth floor includes executive offices, a library, a lounge, and a rooftop terrace, and the fifth floor is dedicated to meeting rooms offering panoramic views. Vertical circulation is concentrated at the pivot point of the L-shaped plan for efficiency.
首层设计为架空层,设有接待区、展示公司活动的画廊以及车辆通行的风道。主要部门的办公套间和工作休息区位于二层,三层则设有供办公室和工厂员工共用的餐厅。四层设有高管办公室、图书馆、休息室和屋顶露台,五层则布置了拥有全景视野的会议室。垂直交通集中于 L 形平面的支点处,以提高效率。

© Shigeo Ogawa

© Shigeo Ogawa
The building employs a steel frame structure, with a full-glass facade and surrounding balconies that serve as both relaxation areas and environmental buffer zones. Pine slat ceilings extend seamlessly from the interior to the exterior eaves, concealing mechanical equipment while creating a warm atmosphere reminiscent of being under the shade of trees. Their shadows evoke the underside of traditional shrine roofs, and at night, deck lighting highlights the wood grain. The slats on the ground floor ceiling reference the hull of the Kitamaebune trade ships.
建筑采用钢结构框架,全玻璃立面和环绕式阳台既可作为放松区域,也可作为环境缓冲带。松木百叶天花板从室内无缝延伸至室外屋檐,隐藏了机械设备,同时营造出如置身树荫下的温暖氛围。其阴影让人联想到传统神社屋顶的下方,夜晚时,甲板照明则凸显出木材的纹理。架空层天花板的百叶则让人联想到北前贸易船的船体。

© Shigeo Ogawa

© Shigeo Ogawa
Medicinal herbs and local trees are planted beneath the elevated floors, irrigated by underground alpine water sources, which are also used for snowmelt. These green spaces connect directly with the adjacent park, inviting employees, residents, and visitors to share the area. The balconies and terraces achieve passive climate control by shading against the summer sun, admitting low-angle winter light, and utilizing prevailing winds for natural ventilation. Beyond enhancing efficiency, the design provides a workplace that embodies Toyama’s landscape and culture, offering an ideal setting for collaboration, disaster resilience, and community engagement.
抬高的楼层下方种植了药用草本植物和当地树木,由地下高山水源灌溉,该水源也用于融雪。这些绿地与邻近公园直接相连,邀请员工、居民和游客共同享受这片空间。阳台和露台通过遮挡夏日阳光、引入冬季低角度光线以及利用主导风向实现自然通风,实现了被动式气候控制。除了提升效率外,该设计还提供了一个体现富山景观与文化的工作场所,为协作交流、抵御灾害和社区参与提供了理想环境。

© Shigeo Ogawa