社会融合与创新的医疗空间:本项目超越了传统医疗机构的范畴,成功构建了一个以“社区共生社会”为核心理念的交流系统。它不仅为青少年及其家庭提供心理健康支持,更以开放的姿态融入城市肌理,成为一个欢迎所有年龄和性别人士休息互动的公共节点。这种将医疗服务与社区福祉深度融合的创新模式,是未来城市健康服务设施设计的典范。
场地文脉的深度回应与场所营造:设计巧妙地回应了吴市“街道互动的独特文化”,通过在街道空间中进行三维编织,创造出具有深度和自由进出的城市肌理。建筑的核心策略在于营造一个“阴凉”的城市空间,通过增强空间的自由度和舒适感,鼓励人们在自然宜人的环境中停留和交流,有效提升了场地的公共吸引力。
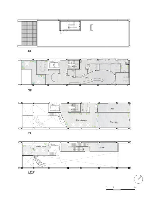
动线的立体渗透与功能复合化:建筑通过四个功能分区和垂直动线的连接,实现了人员在空间中的立体流动,直至屋顶,创造出动态的内部体验。这种垂直渗透的设计不仅增强了空间的活力,也模糊了医疗用户与普通民众的界限,四个分区各司其职(活动、休息、等候、聊天),共同服务于缓解现代社会活动减少的趋势,体现了建筑对未来“以人为本”医疗理念的积极探索。
From the architect. KOKAGE is a project located in Kure City, Hiroshima Prefecture, Japan, which innovates the form of local medical services and community welfare through its "communication system where everyone can easily gather." This project belongs to a medical institution that adheres to the concept of a "symbiotic society," allowing people of all ages and genders to live in the way they see fit.
来自建筑师。KOKAGE 是一个位于日本东广岛县吴市的项目,其“大家能够轻松聚集在一起的交流系统”,在地方医疗服务和社区福祉的形式上有所创新。这个项目隶属于一家医疗机构,该机构秉持“社区共生社会”理念,让人们不分年龄和性别都能够按照自己认为合适的方式生活。
© Norihito Yamauchi

© Norihito Yamauchi
This project is the first "medical center" of its kind, situated in the central area of Kure City, surrounded by public facilities such as post offices and hospitals, and is a 5-minute walk from JR Kure Station, resulting in high foot traffic. The client requested a facility that could provide mental health treatment and self-support for adolescents and their families, while also having an information dissemination function open to the community, welcoming people to rest and interact.
总平面图

© Norihito Yamauchi

© Norihito Yamauchi
本项目是同类项目中的第一个 “医疗中心”,坐落在吴市的中心区域,周围有邮局和医院等公共设施,离 JR 铁路吴市站步行 5 分钟,人流量比较大。业主要求有一个能够为青少年及其家庭提供心理健康治疗和自我支持的设施,同时还具有向社区开放的信息传播功能,欢迎人们前来休息和互动。
© Norihito Yamauchi

平面图

© Norihito Yamauchi
Inspired by Kure City's "unique culture of street interaction," the building weaves three-dimensionally within the street space to create depth in the city, allowing anyone to enter and exit freely. The goal is to create a "shady" urban space that increases the freedom of movement, allowing people to sit and rest in a natural and comfortable place. 受吴市“街道互动的独特文化”的启发,该建筑通过在街道空间中的三维编织,在城市中创造出深度,任何人都可以自由进出。其目的在于创造一个“阴凉”的城市空间,通过增加空间的自由度,使人们可以在一个自然和舒适的地方坐下休息。
© Norihito Yamauchi

剖面图
To attract as much foot traffic as possible, we ensured sufficient "pull" (external space) in front of the building and planned a layout that guides the street into the site. Furthermore, to create an open space inside the building, the four zones are connected by vertical circulation, creating movement up and down and leading directly to the rooftop. The top layer is covered with panel materials, enveloping this three-dimensional space in "shade." 为了吸引尽可能多的人流量,我们在建筑前保证了足够的“拉力”(外部空间),并规划了一个将街道引向场地内的布局。此外,为了在建筑内部创造一个开放的空间,四个分区通过垂直动线连接,创造出上上下下的人员流动,并直通屋顶。顶层覆盖板式材料,用“阴凉”包裹着这个三维空间。Both users of the medical institution and the general public can freely use these four zones. They have different functions, including activities, rest, waiting, and chatting. We believe it is crucial to create an environment that alleviates the reduction in physical activity in recent years due to the development of the internet and restrictions on going out. Future "medicine" will go beyond simple treatment and become further associated with people.
不论是医疗机构的用户,还是普通民众,都可以自由使用这四个分区。它们具有不同的功能,包括活动、休息、等候和聊天。我们认为,创造一种环境去缓解近年来因互联网发展和外出管制而导致的身体活动减少,是至关重要的。未来的“医疗”将超越单纯的治疗,进一步与人相关联。Text provided by the architect
Translated by Xu Qingyun
文字描述由建筑师提供译者:许青云
© Norihito Yamauchi