文脉重塑与场所营造:该项目成功地将一个低度开发的工业用地,转化为具有深厚社区根基的公共空间。建筑师通过溯源工业建筑的集体记忆,特别是采用滨江工业地带常见的排架结构体系,巧妙地唤起了场所的熟悉感。这种设计策略不仅尊重了场地的历史文脉,更重要的是,它使建筑成为连接过去与现在的媒介,为阿那亚北岸社区提供了一个有归属感的公共核心,实现了建筑与社区的有机融合。
功能复合与空间活性:项目在功能布局上展现了高度的灵活性和复合性。通过体量划分和夹层设计,有效地整合了篮球场、健身房和室内泳池等多种体育功能,并设置了必要的服务空间。尤其值得称道的是,北侧18米宽的巨型开启门设计,打破了传统建筑的边界,实现了室内外空间的无缝连接。这种设计极大地提升了场馆在社区活动中的适应性,使其能够轻松应对从日常体育活动到大型社区事件的多样化使用需求,极大地激活了公共空间的潜力。
结构逻辑与精细化设计:在结构体系上,建筑采用了预制混凝土柱与钢桁架构成的排架结构,保证了内部大跨度空间的实现,并清晰地界定了不同功能区的气候分区。对非结构构件(如纵向分隔柱)的处理,不仅服务于玻璃幕墙的安装和排水管的隐藏,更通过与结构柱的错位关系,丰富了空间层次和体验的复杂性。统一的照明系统设计,结合对顶面处理,强化了结构带来的空间秩序感和品质,体现了建筑师对结构逻辑与空间细节的深刻理解与精妙控制。
Aranya North Shore Community Sports Center is located in Qinhuangdao, a three-hour drive from Beijing, within the riverside area of Aranya Phase IX. The site was originally an underutilized industrial land. The architects aimed to establish a contextual foundation based on traceable fragments of collective architectural memory, making the building a medium connecting the past with present life and providing a rooted public space for the community.
阿那亚北岸社区体育中心位于距离北京三小时车程的秦皇岛,位于阿那亚九期项目内的滨河区域。场地原为一片开发程度较低的工业用地。建筑师希望依据一些可被溯源的建筑集体记忆片段,建立场地的文脉基础,使建筑成为连接过往与当下生活的媒介,为社区提供有根基的公共空间。

© 陈颢

© 陈颢

© 陈颢

© 陈颢
Based on this concept, the sports center adopts the frame structure system commonly found in riverside industrial areas to evoke a collective memory of waterside industrial shed imagery and establish a sense of familiar place. Situated in the transitional zone between the planned residential area and the waterfront public zone, the project uses its massing and site design to act as a buffer between the public and residential sectors of different scales, promoting diverse community activities and acting as a catalyst connecting people and the place.
基于这一理念,体育中心采用了滨江工业地带常见的排架结构体系,以唤起一种类滨水工业厂房建筑意象的集体记忆,建立一种熟悉的场所感。项目坐落于规划中居住区与滨水公共区域的过渡地带,通过体量和场地设计成为公共和居住不同尺度板块之间的缓冲区,也促发多元的社区活动,成为连接人与场所的催化剂。

© 陈颢

© 陈颢

© 陈颢
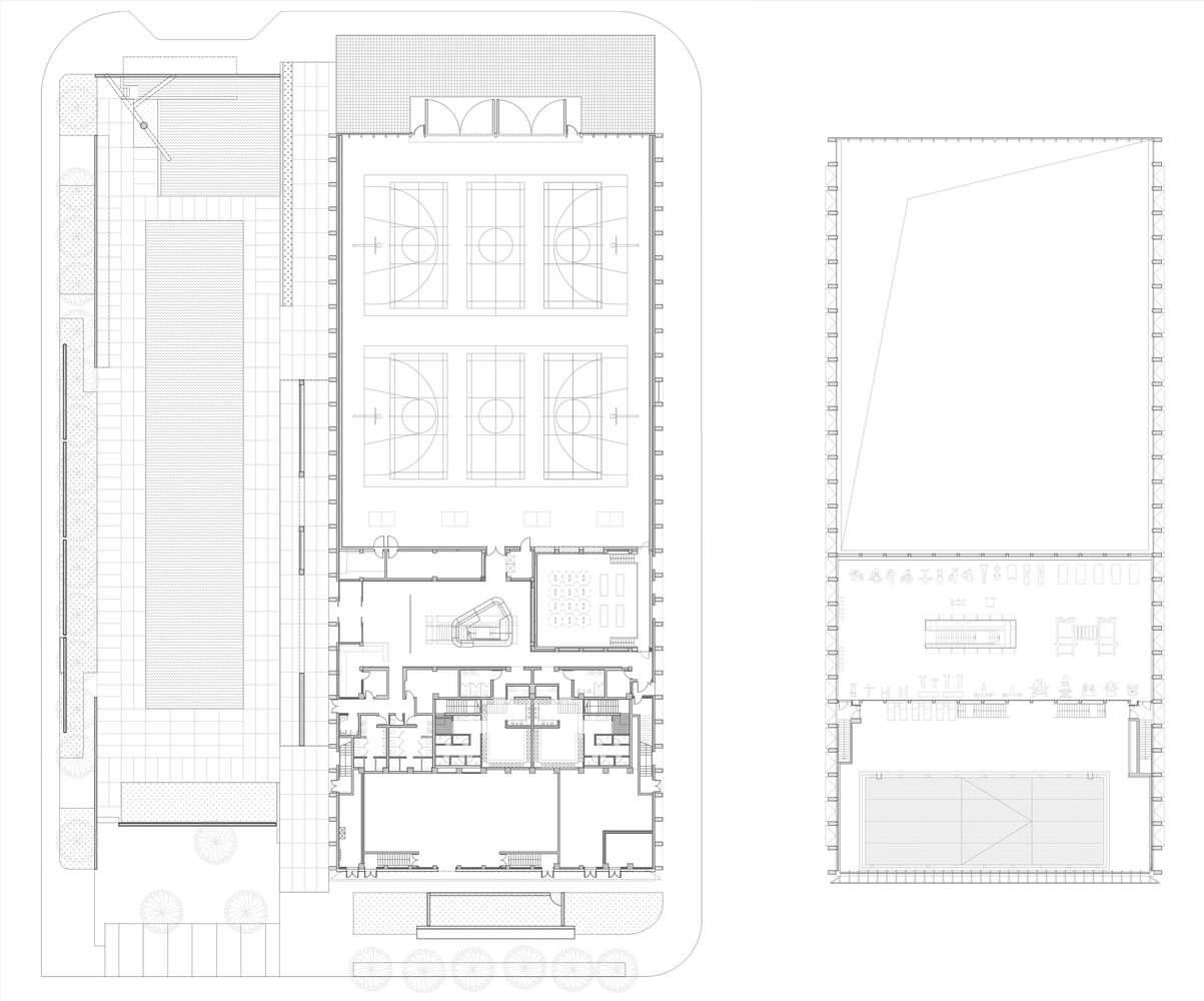
The completed sports center is a large, single-volume box shape, measuring 78.2 meters long, 35.5 meters wide, and 12.7 meters high. The full-height space on the north side accommodates two indoor basketball courts, while the south side is functionally divided by a mezzanine: the ground floor houses the entrance hall, judo classroom, changing rooms, and water treatment equipment, and the second floor contains the gym and indoor swimming pool. Viewed from the north, the sports center lacks a conventional facade; the transparent glass curtain wall completely reveals the interior space. When the two 18-meter-wide large doors open, community traffic can enter the basketball/badminton hall and the sports center directly from the street without passing through the entrance hall. This flexible design offers possibilities for more diversified usage scenarios in the community, allowing the sports center to respond to the needs of different types and scales of public community activities.
建成的体育中心是一个方盒子形态的大体量单体,长 78.2 米,宽 35.5 米,高 12.7 米。体量北侧的通高空间容纳两个室内篮球场,南侧通过夹层区分功能:首层设置门厅、柔术教室、更衣室与水处理设备,二层为健身房与室内泳池。从北侧看,体育中心是一个没有常规立面的建筑,通透的玻璃幕墙将内部空间完全展现,两扇 18 米宽的大门打开之后,社区人流可以不经过门厅区域,直接从街道进入篮羽馆和体育中心。这种灵活性的设计为该体育中心在社区更具多样化的使用场景提供了可能性,让体育中心可应对不同类型和规模的社区公共活动使用的需求。

© 陈颢

平面图

© 陈颢
The outdoor swimming pool on the west side is enclosed by concrete walls of varying heights and lengths on three sides, defining the entrance and regulating sightlines. The pavilion, which also functions as changing rooms, serves as both an entrance canopy and a buffer between the pool and the main building. The entrance hall is located on the west side of the sports center, accessed through the outdoor pool area. The hall is 20 meters long and 9 meters wide, featuring a roundabout layout. Although compact, it is the most crucial circulation hub of the sports center.
西侧室外泳池三面被高度、长度错动的混凝土墙体围合,界定入口并调节视线。兼备更衣功能的亭子既作入口雨篷,也成为泳池与主体建筑之间的缓冲。门厅设置于体育中心西侧,通过室外泳池区域进入。门厅长 20 米、宽 9 米,采用环岛式布局,虽然空间紧凑,却是体育中心最重要的动线枢纽。

© 陈颢

© 陈颢
The building utilizes a frame structure system, where precast concrete columns and steel truss roof form the large-span space, with the mezzanine structure independently inserted within. To meet differentiated air conditioning demands, the basketball/badminton court, gym area, and indoor pool are set up as independent climate zones.
建筑采用排架结构体系,预制混凝土柱与钢桁架屋盖构成大跨度空间,夹层以独立结构植入其中。为满足差异化的空调需求,篮羽场、健身区与室内泳池分别设置为独立气候区。

© 陈颢

© 陈颢
The interior longitudinal dividing columns are non-structural components, serving both as frames for glass installation and concealing 12 roof drainage pipes. Their staggered relationship with the facade structural columns reinforces the complexity of the spatial experience.
室内纵向分隔柱为非结构构件,既作为玻璃安装框架,也隐藏了 12 根屋面排水管。其与立面结构柱的错位关系强化了空间体验的复杂性。

© 陈颢

© 陈颢
A unified lighting system is adopted indoors. The lighting above the basketball/badminton court is exposed, while the gym and indoor pool use suspended ceilings. The alignment of the lighting and service beams creates a continuous ceiling plane, enhancing the spatial quality derived from the frame structure system.
室内照明采用统一的灯具系统布置。篮羽场顶部露明,健身房与室内泳池采用吊顶,照明与设备带保持对齐形成统一连续的顶面,强化了排架结构体系带来的空间品质。

© 陈颢

© 陈颢
When the large north doors of the gymnasium open, the interior basketball/badminton hall connects directly with the outdoor open space, facilitating direct access for people and temporary setups for various events. Since its completion, the basketball/badminton hall has hosted public activities of various natures, becoming an important event space for the community.
体育馆北侧大门打开后,内部篮羽馆直接与室外开放空间连通,既方便人流直接进入,也方便各种活动临时的搭建。体育中心建成以来,篮羽馆已经举办了各种属性的公共活动,成为社区重要的事件空间。

© 陈颢