空间逻辑的在地性重构与“最小城市单元”的构建:FEZH 项目的核心亮点在于其对摩洛哥菲斯老城有机肌理的深刻洞察,并成功将其抽象为现代都市语境下的“最小城市单元”概念。建筑师巧妙地将疗愈、文化和日常功能整合于这一紧凑的结构中,实现了对传统城市形态的当代转译。这种在特定地块(汉南洞)上重塑社区尺度和交往逻辑的策略,体现了建筑对场所精神(Genius Loci)的尊重与激活,而非简单的功能堆砌。FEZH 不仅是一栋建筑,更是一个微缩的城市缩影,极具设计张力。
“镂空空间”作为社区心脏与自然渗透的载体:项目中引入的中央“镂空空间”是设计上的点睛之笔。它作为一个垂直的公共中庭,不仅有效地将自然光和通风引入建筑深处,模拟了传统城市广场的聚集功能,更重要的是,它充当了建筑内部的“城市避难所”。这一策略打破了建筑的封闭性,鼓励了人与人之间、人与环境之间发生偶遇和互动。这种对半室外、半公共核心空间的精心设计,是其在应对高密度城市生活中的人文关怀与空间创新的最佳体现。
体验层级的序列构建与材质的感性表达:FEZH 通过精心设计的路径系统(如迷宫般的流线)和功能分层的布局(从社区广场D-SQUARE到私密的茶室和冥想空间水之屋),构建了一套丰富的、可供探索的体验序列。这种“探索的乐趣”是激活用户参与的关键。同时,对砖块和烧焦木材等触感丰富、带有历史温度的材料的选用,成功地在现代形式中注入了对汉南洞邻里历史文脉的感性连接,确保了建筑的“亲近性”与“连续性”,使其在形式创新与场所记忆之间找到了精准的平衡点。
FEZH Project reinterprets the spatial logic of Fes El Bali, where clustered dwellings form the basis of an organic urban fabric. Drawing on this precedent, the project strives to create a "minimal city unit" that integrates core public functions such as healing, culture, and daily life. Nestled in the quiet alleys of Hannam-dong, FEZH positions itself as a compact city—a place where architecture, nature, and human experience converge, its name blending Fez, Healing, and Hannam-dong.
来自建筑师。FEZH 项目重新诠释了菲斯老城(Fes El Bali)的空间逻辑,在那里,成簇的民居构成了有机城市肌理的基础。借鉴这一先例,该项目致力于打造一个“最小城市单元”,将疗愈、文化和日常生活等核心公共功能融为一体。在汉南洞(Hannam-dong)静谧的小巷中,FEZH 将自己定位为一座紧凑之城——一个建筑、自然与人类体验交汇之所,其名称融合了菲斯(Fez)、疗愈(Healing)和汉南洞(Hannam-dong)之意。
© Jeon Hyowon

© Yongkwan Kim
The design stems from a desire to translate the relationship between the city, nature, and humans into space. Addressing the client's long-standing observations on the shifting neighborhood culture, FEZH aims to foster an open, community-centric environment that invites participation. This vision materializes in the central "hollow space," a vertical void connecting the basement to the ground floor. Serving as an urban sanctuary, it brings sunlight and breeze into the building's core, offering a place to pause and interact, much like a historic plaza that births encounters, dialogues, and organic growth as a cultural heart.
该设计源于将城市、自然与人之间的关系转化为空间的渴望。针对客户长期以来对邻里文化变迁的观察,FEZH 旨在营造一个开放、以社区为中心的环境,吸引人们参与其中。这一愿景在其中央的“镂空空间”中得以具象化,这是一个连接地下室和地面的垂直空腔。它作为城市避难所,将阳光和微风引入建筑中心,为人们提供了一个驻足与互动的场所。如同历史悠久的广场,它成为文化核心,孕育着相遇、对话与有机生长。
© Yongkwan Kim

© Yongkwan Kim
Navigating FEZH is an exercise in discovery. Interlacing pathways create an atmosphere reminiscent of wandering through an ancient city, offering new spatial surprises around every turn. The circulation design supports experiences that are independent yet interconnected, allowing visitors to author their own journey.
穿行于 FEZH 之中,尽享探索之乐。纵横交错的路径营造出一种漫步于古老城市的氛围,每转一个弯都能发现新的空间惊喜。流通路径的设计支持独立却又相互关联的体验,让访客能够自主塑造自己的旅程。
© Yongkwan Kim

© Yongkwan Kim
The D-SQUARE resonates with the street and the hollow space above, functioning as a communal plaza shared by residents and visitors alike. Hosting concerts, gatherings, and everyday activities further reinforces FEZH's role as an accessible public realm. Nearby, BLUE CAT—evoking the literary and musical sensibilities of Haruki Murakami—creates an intimate setting through curated audio, literature, and weekly performances.
D-SQUARE 与街道和上方的镂空空间相呼应,成为居民和访客共用的社区广场。这里举办音乐会、聚会和日常活动,进一步强化了 FEZH 作为可进入的公共空间的作用。不远处,BLUE CAT——唤起村上春树(Haruki Murakami)文学与音乐情怀的场所——通过精心策划的音频、文学和每周表演,营造出一种亲密的氛围。
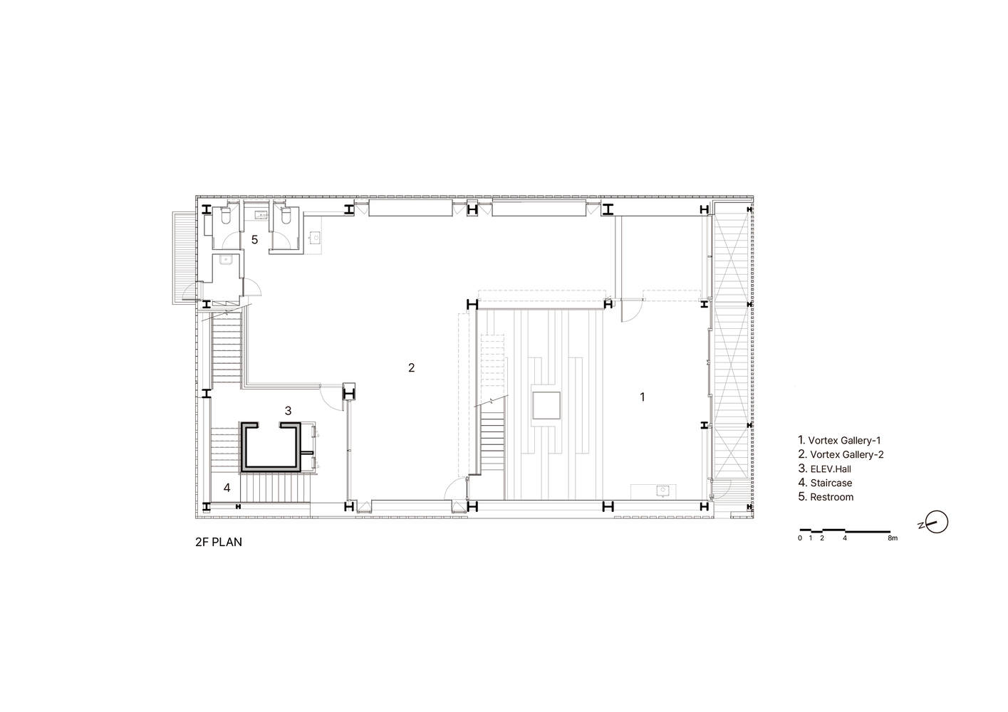
二层平面图

四层平面图

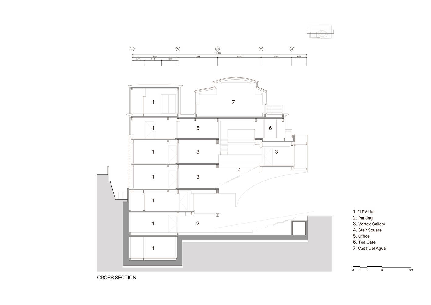
剖面图
The Vortex Gallery utilizes layered circulation and filtered light to create a versatile exhibition environment suitable for pop-ups, performances, and cultural events, solidifying FEZH’s identity as an urban cultural platform. Ascending further, the Pocket Garden Heaven and its accompanying tea house form a compact ecological park amidst the density, offering spaces for yoga, tea ceremonies, and quiet contemplation. The Casa del Agua continues this meditative journey, integrating water, hinoki wood, and an immersive audio-visual system to craft a restorative interior landscape.
漩涡画廊(Vortex Gallery)利用分层流通和过滤光线,创造出适合快闪活动、表演和文化活动的多变展览环境,进一步巩固了 FEZH 作为城市文化平台的身份。向上攀登,口袋花园天堂(Pocket Garden Heaven)及其茶室在密集的城市中形成了一个紧凑的生态公园,为瑜伽、品茶和静谧休憩提供了场所。水之屋(Casa del Agua)延续了这一冥想之旅,将水、桧木和沉浸式视听系统融为一体,打造出一个恢复性室内景观。
© Yongkwan Kim
The material palette was chosen out of a desire to capture the intimacy of Hannam-dong’s alleys. Brick and charred wood form a warm, tactile palette that roots FEZH in its historical context while connecting nature and the city. Their textures and tones are intended to evoke familiarity and continuity with the neighborhood’s past.
材料的选择源于捕捉汉南洞小巷舒适感的渴望。砖块和烧焦的木材构成了温暖、触感丰富的调色板,将 FEZH 扎根于其历史背景之中,同时连接自然与城市。它们的纹理和色调旨在唤起与邻里过去的熟悉感和连续性。
© Yongkwan Kim
© Yongkwan Kim
FEZH is conceived as an organism that views the city as a living entity shaped by people and culture. It is dedicated to nurturing relationships, sparking creativity, and disseminating new forms of inspiration throughout Hannam-dong. Ultimately, FEZH proposes a vision of urbanism rooted in intimacy, discovery, and connection—a condensed model for the values that future cities must cultivate.
FEZH 被构想为一个有机体,将城市视为一个由人和文化塑造的鲜活实体。它致力于培育关系、激发创造力,并在汉南洞传播新的灵感形式。最终,FEZH 提出了一种植根于亲密、发现与连接的城市主义愿景 —— 为未来城市必须培育的价值观提供一个浓缩模型。© Yongkwan Kim