对在地精神与材料的精妙融合:该项目最精髓之处在于其对伊丹十三“建筑应根植于当地环境与传统”理念的深度诠释。建筑师巧妙地将现代材料——暴露混凝土与当地传统元素(如济州岛石墙的意象)相融合,通过饰面上的曲线形木纹图案,成功地在冰冷的混凝土与自然肌理之间建立了对话。这种对在地性的尊重,使得建筑既能体现现代美学,又与济州郭子华森林的宁静水平景观和谐共生,避免了对原有环境的侵扰,实现了建筑与自然的共生关系。
光影叙事与空间层级感:博物馆内部设计展现了对光线和空间序列的深刻理解。通过将人工照明降至最低,并利用体块与屋顶间隙导入自然光,光线被塑造成一种有形的元素,沿着中央椭圆形体块流动,引导参观者的体验路径。特别是图书馆区域采用的“墨黑色”处理,不仅致敬了建筑师的创作特征,更创造了一个沉浸式的、声学特性丰富的精神空间。这种由外向内、由明到暗、由开放到内敛的光影渐变,极大地丰富了建筑的情感层次和叙事性。
核心体块的象征意义与功能整合:贯穿大厅的椭圆形体块是整个设计的核心与灵魂,它不仅是结构上的支撑,更是伊丹十三创作精神的物质化象征。该体块不仅界定了主要的流线,更巧妙地承载了不同的功能需求——底层作为流动的过渡空间,二层则被设计成以济州岛形状为灵感的常设展厅。这种将核心纪念意义与博物馆的核心功能紧密耦合的设计手法,确保了建筑的每一个元素都在为纪念和传达建筑师的哲学服务,体现了高度的原创性和目的性。
This art museum is built for the late Japanese-Korean architect. The design of The Itami Jun Museum incorporates his architectural philosophy: "Architecture should be rooted in the local environment and tradition, and bear fruit from it," while also employing his main architectural language. By adapting to the local environment of Jeju Island, he strove not to disturb the horizontal, tranquil, and peaceful natural landscape of the Gokjawal forest.
这座艺术博物馆是为已故的日韩裔建筑师而建。伊丹十三纪念馆(The Itami Jun Museum)的设计融入了他的建筑理念,即“建筑应根植于当地环境与传统,并从中结出硕果”,同时也运用了主要的建筑语言。通过适应济州岛当地环境,他力求不打扰济州森林 —— 郭子华(Gokjawal)那水平延展、宁静祥和的自然风貌。

© Yongkwan Kim
The exterior walls of the museum feature an exposed concrete finish adorned with curvilinear (ogee) patterns mimicking wood grain, using the texture of wood to neutralize the cold hardness of the concrete. We aimed to harmonize Jeju Island's traditional stone walls with the most modern material—stainless steel—while creating a contrast with the surrounding wild environment. The museum entrance is set along this wall, which also serves as a transitional space. Upon entering the museum, the oval volume visible from the exterior runs through the center of the lobby.
博物馆外墙采用暴露混凝土饰面,饰有模仿木纹的曲线形(ogee)图案,以木材的纹理中和混凝土的冷硬感。我们希望将济州岛传统的石墙与最现代的材料 —— 不锈钢和谐融合,同时与周边的野性环境形成对比。博物馆入口沿这面墙而设,这面墙也充当过渡空间。进入博物馆后,从外部可见的椭圆形体块贯穿大厅中央。

© Yongkwan Kim
Artificial lighting inside the museum is minimized, and natural light flows along the oval volume through window openings between the volume and the roof gap. The first-floor library adopts the ink-black color signature of Itami Jun's personal creative space, where different materials for the floor, walls, and ceiling create a harmonious ink-black atmosphere that produces varying acoustic effects.
馆内人工照明被降至最低,自然光通过体块与屋顶间隙处的窗洞,沿着椭圆形体块流淌。一楼图书馆采用伊丹十三个人创作空间标志性的墨黑色,地板、墙面和天花板的不同材质共同营造出墨黑色的和谐氛围,且能产生不同声响。

© Yongkwan Kim

© Yongkwan Kim
The ink-black space symbolizes immersion and creation, which has always been central to all of Itami Jun's works. The designer intended to create a space full of light in the darkness, tranquility in solitude, and warmth in affection, much like the life of the architect Itami Jun, who always lived as a lone wolf.
墨黑色空间象征着沉浸与创作的空间,这始终是伊丹十三所有作品的核心。设计师想营造一个空间,在黑暗中充满光明,在孤独中蕴含宁静,在温暖中洋溢温情,这恰似伊丹十三这位始终以独行侠姿态生活的建筑师的人生。

© Yongkwan Kim

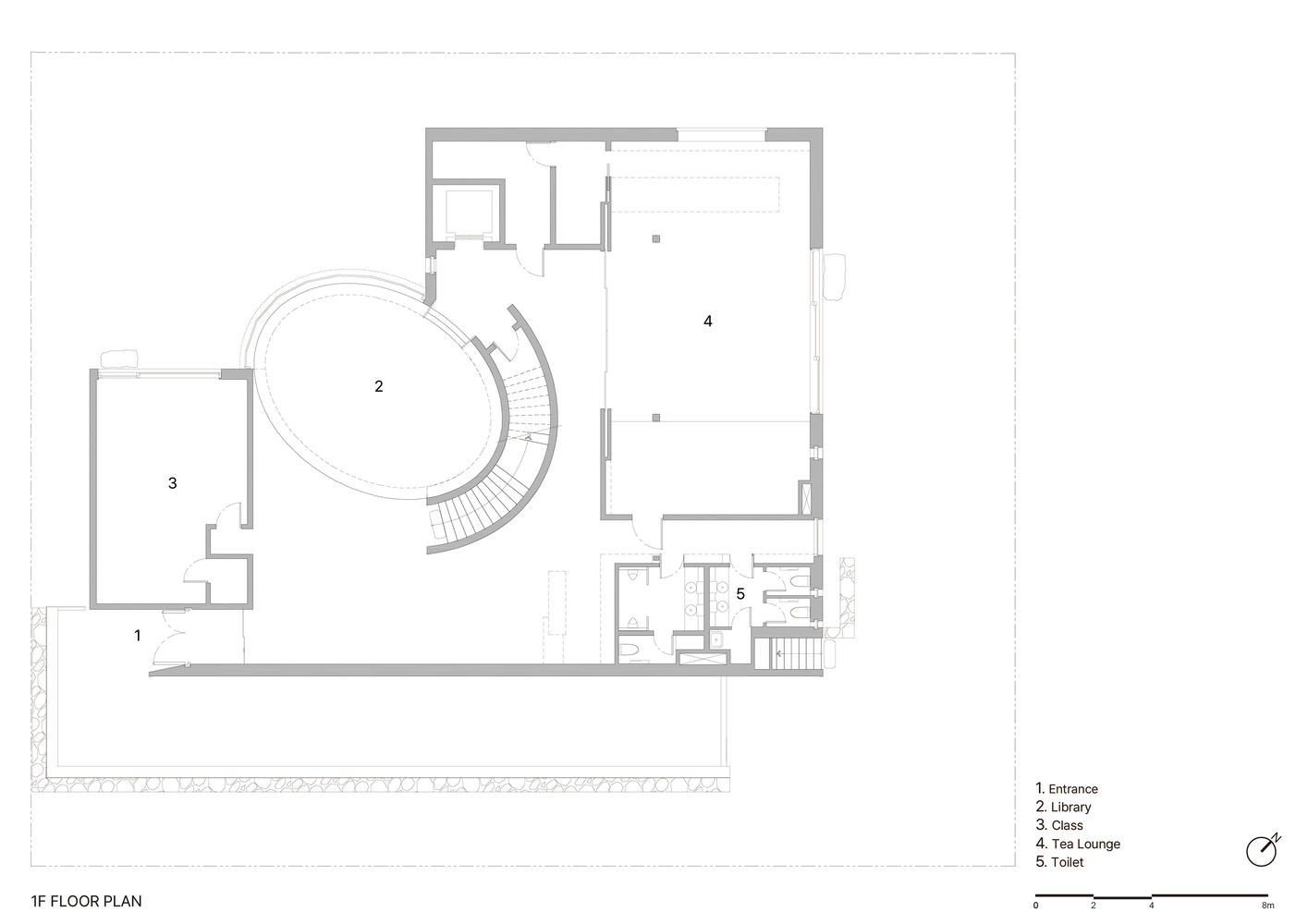
First Floor Plan
一层平面图

Section
剖面图

© Yongkwan Kim
By creating open spaces around the museum grounds, all areas on the first floor connect with nature. Ascending the stairs alongside the volume where natural light flows, visitors arrive at the exhibition hall on the second floor. The Itami Jun Museum embodies the architectural concept of coexisting nature and architecture.
通过为博物馆周边自然环境打造开放式空间,一楼所有区域都与自然相通。沿着中央自然光流淌的体块拾级而上,参观者将来到二楼的展厅。伊丹十三纪念馆体现了自然与建筑共生的建筑理念。

© Yongkwan Kim
The permanent exhibition on the second floor is designed based on the shape of Jeju Island. The oval space is the core of the museum, housing Itami Jun's representative works. This permanent exhibition hall will display Itami Jun's representative works.
二楼的常设展览以济州岛的形状为蓝本设计。椭圆形空间是博物馆的核心,收藏着伊丹十三的代表性作品。这个常设展厅将展示伊丹十三的代表作品。

© Yongkwan Kim