场地文脉与门户象征:该项目成功地将自身定位为桑坦德工业大学主入口处的标志性建筑。通过独特的建筑混凝土堆叠线条结构,建筑不仅界定了校园的门户意象,更在视觉上形成了强烈的识别性。这种对场地文脉的尊重与对未来学术拓展空间的预留,体现了建筑在宏观规划中的关键作用,是功能需求与校园形象塑造的完美结合。
“双首层”地形策略与公共性:建筑巧妙地利用自然坡度,设计了高差不同的“双基座”和“双首层”入口,极大地提升了建筑的公共性和可达性。较低层的“人工沙丘”景观和上层的错落阳台,创造了多样化的室外公共空间,促进了社交互动。这种多层次的地面处理方式,不仅优化了人流组织,更将建筑转化为一个富有活力的城市家具,模糊了室内外的界限。
被动式气候应对与材料表达:在设计中,建筑师展现了对热带气候的深刻理解。赭色混凝土纵向楼板不仅是结构与美学的表达,更是核心的被动式遮阳构件。这种策略有效地过滤了直射光照,同时保证了视野通透。赭色混凝土的使用与核心筒的灰色混凝土形成对比,既呼应了当地传统材料,又通过结构设计(刚性核心筒解放中央空间)保证了建筑的长久适应性和灵活性。
The Humanities Building is located at the main entrance of the central campus of the Industrial University of Santander, being a key element of the university's master plan. Based on a structure of stacked lines of architectural concrete, its design not only shapes an iconic gateway image but also provides space for academic expansion.
人文学院大楼坐落于桑坦德工业大学中央校区的主入口处,是该校总体规划中的关键要素。其设计以建筑混凝土堆叠线条结构为基础,不仅塑造出标志性的门户形象,还为学术拓展提供了空间。
© Alejandro Arango

© Alejandro Arango

© Alejandro Arango
The ground floor building follows the natural slope of the terrain, adopting a double plinth design to create two entrance levels at different heights. The "double ground floor" space extends the public areas, being open, dynamic, and highly community-friendly. The lower floor creates an artificial topography with rolling dunes housing the observatory visitor center; while the higher floor forms balconies and leisure gathering areas through staggered floor slabs. The two levels are connected by stairs with cantilevered platforms, which optimize crowd flow and stimulate the dynamic vitality of the architectural space.
底层建筑顺应地形自然坡度,采用双基座设计,形成两个不同高度的入口层。“双首层”空间作为公共区域的延伸,开放灵动且极具社区亲和力。较低的楼层打造出人工地形,起伏的沙丘中设有天文台游客中心;而较高楼层则通过错落的楼板形成阳台与休闲聚会区域。两层之间由带悬挑平台的楼梯相连,既优化了人流疏导,又激发了建筑空间的动态活力。

© Alejandro Arango

© Alejandro Arango

© Alejandro Arango

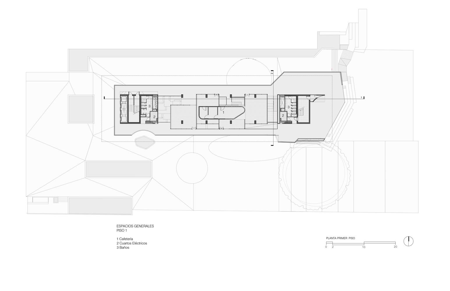
First Floor Plan
一层平面图

Section
剖面图

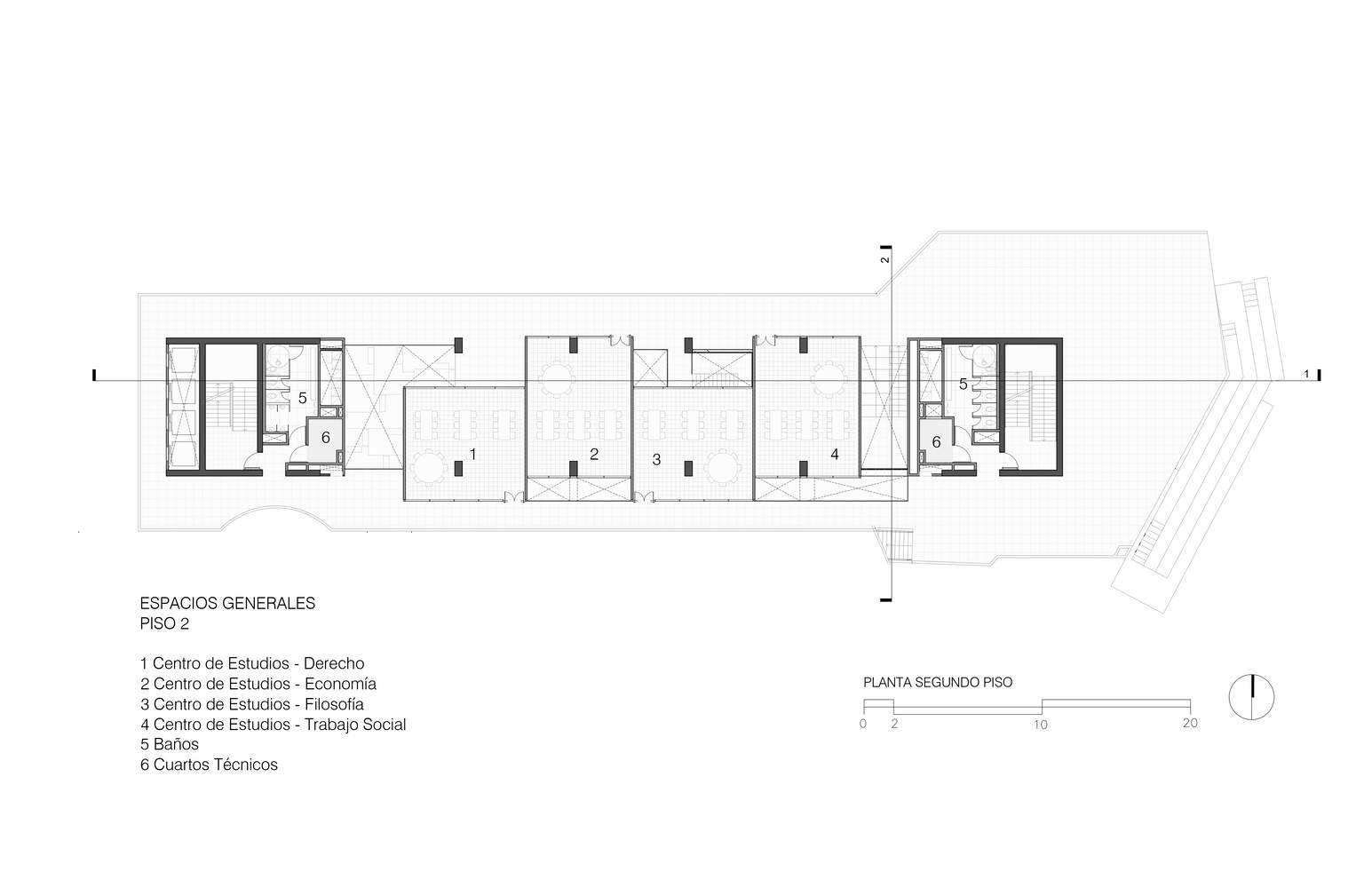
Second Floor Plan
二层平面图
The main tower runs north-south and is composed of staggered ochre concrete vertical floor slabs, which filter direct sunlight while offering panoramic views of the surrounding open landscape. This passive climate control strategy is supplemented by the design of eaves and surrounding walkways, both of which expand learning spaces and provide shading. In some areas, the floor slabs feature vertical folds to enhance their practicality in a tropical environment.
主塔楼呈南北走向,由错落排列的赭色混凝土纵向楼板构成,这些楼板既能过滤直射阳光,又可让人饱览周边开阔景致。这一被动式气候调控策略还辅以屋檐与周边步道设计,二者不仅拓展了学习空间,还兼具遮阳功能。在某些区域,楼板采用垂直折面设计,以提升其在热带环境中的实用效能。

© Alejandro Arango

© Alejandro Arango
In addition to two traditional vertical circulation routes, the building incorporates recreational paths and open stairs to promote pedestrian flow and strengthen visual connections with the surrounding landscape. In terms of functional layout, the building adopts a progressive zoning: interactive spaces such as the cafeteria and student club areas are set on the ground floor; classrooms and seminar rooms are distributed on the middle floors; and faculty offices and recreational/wellness spaces are arranged on the top floor.
除两条传统垂直交通动线外,建筑还融入休闲路径与开放式楼梯,以促进人流穿行并强化与周边景观的视觉联结。在功能布局上,建筑采用渐进式分区:底层设置互动空间,如食堂与学生社团活动区;中层分布教室与研讨室;顶层则安排教职工办公室与康体休闲空间。

© Alejandro Arango
Structurally, the building is supported by two rigid core tubes at either end, a design that frees up the central space, allowing for a more flexible floor plan that is easier to adapt in the future. The main body of the building is cast in ochre concrete, a tone that echoes the traditional rammed earth walls of the region, while the core tubes and columns are finished in conventional gray concrete, creating a strong contrast.
从结构上看,该建筑由两端的两处刚性核心筒提供支撑,这种设计释放了中央空间,使楼层平面布局更具灵活性,便于未来进行适应性改造。建筑主体采用赭色混凝土浇筑,其色调呼应了当地传统的夯土墙,而核心筒与立柱则采用常规灰色混凝土饰面,形成鲜明对比。

© Alejandro Arango