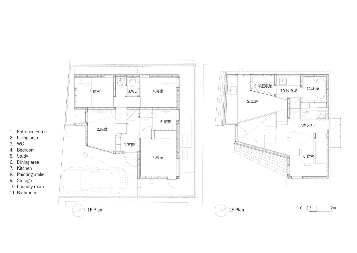
空间叙事与家庭动态的巧妙平衡:该项目最精妙之处在于其对家庭成员多元化需求的深刻理解与空间组织的完美契合。通过L形卧室的错层布局适应地块坡度,实现了功能上的半独立性,满足了家庭成员对独处空间的渴望。更令人赞叹的是,公共区域沿着楼梯的缓坡依次展开,形成一个由四个柔和屋顶覆盖的连续体。这种设计语言不仅顺应了地形,更在物理上和感知上构建了一种“既分离又连接”的居住哲学,让日常生活在保持个体节奏的同时自然交融,是现代家庭住宅设计中对“亲密性与私密性平衡”的典范诠释。
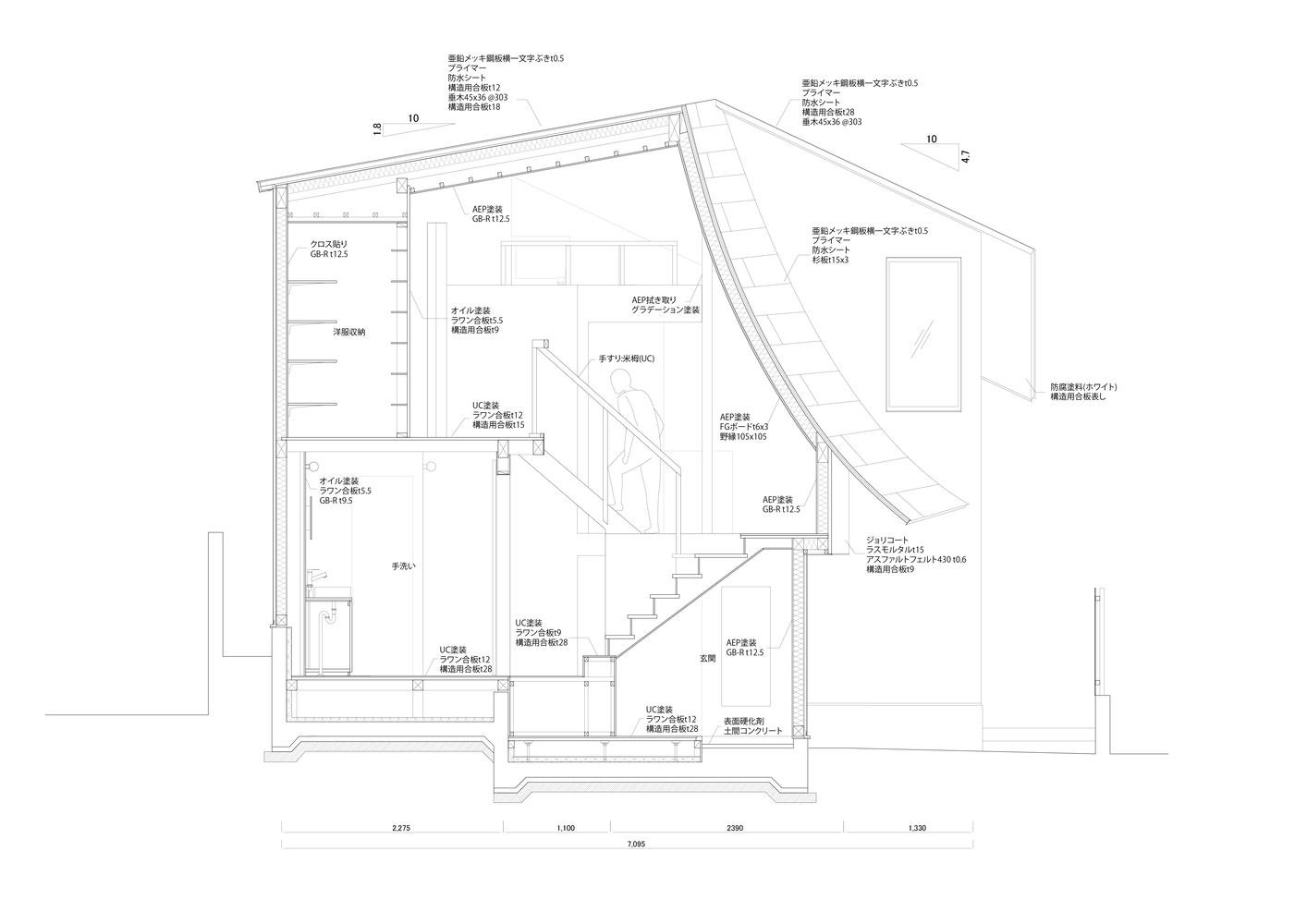
“帐篷”屋顶的结构诗意与光影魔法:建筑的核心精髓体现在其极具表现力的屋顶结构上,它被构想为“柔软的白色布料”或“轻盈的织物”。设计师通过中心支柱支撑的四个折叠屋顶,特别是弧形屋顶的引入,创造了一种动态的室内体验。行走其中,空间感知随着屋顶线条的变化而不断重塑,光线透过切割的边缘洒落,在弧面产生时间性的色彩变化。这种形式语言不仅赋予了建筑独特的雕塑美感,更营造出一种温柔包裹、庇护感强的居住氛围,超越了传统刚硬的结构表达,实现了结构美学与居住情感的深度融合。
创新层压工艺对结构形态的忠实实现:从工程角度看,为实现这种“帐篷”般的柔韧形态,采用了创新的三层雪松木板层压技术(45mm厚)来模拟柔性结构。工厂预弯曲和现场拼接的工艺流程,是设计师对结构性能与美学表达之间矛盾的有力解决。通过振动测试验证了其平面外刚度,证明了技术创新成功地支撑了感性的设计意图——即在保持木结构轻盈与柔韧感的同时,确保了建筑的结构可靠性。这种将先进的材料技术服务于富有诗意的建筑形态的手法,是当代建筑实践的亮点。
This is a two-story wooden house designed for a young couple and their two children. Each family member has their own passions and life rhythms, and they desired a home with multiple private resting spots that still maintained a close connection, allowing their daily lives to naturally blend without interference.
这是一座专为一对年轻夫妇及其两个孩子设计的两层木屋。每位家庭成员都有各自的热爱与生活节奏,他们渴望拥有一个既有多处可独处休憩之地,又能保持彼此紧密相连的家,如此一来,他们的日常生活便能自然交融,互不干扰。
© Yurika Kono

© Yurika Kono

© Yurika Kono
The site is located next to an alley branching off a narrow road facing the railway tracks. The bedrooms are arranged in an L-shape on the floor plan, staggered by half a floor level to accommodate the natural slope between the front road and the rear of the plot. Above the bedrooms, following the gentle incline of the stairs, a series of public spaces unfold sequentially: a cozy living corner, a dining area, a small painting studio, and an attic. These spaces converge under four interconnected roofs, whose forms gently drape down like soft white fabric.
该地块位于一条从狭窄道路分支而出的小巷旁,这条狭窄道路正对着铁路轨道。卧室在平面图上呈L形布局,为顺应地块前路与后部之间的自然坡度,卧室错落分布,相差半个楼层的高度。在卧室上方,沿着楼梯的平缓坡度,一系列公共空间依次展开:一个温馨舒适的起居角落、一个用餐区、一间小型绘画工作室以及一个阁楼。这些空间汇聚在四个相互连接的屋顶之下,屋顶的形态如柔软的白色布料般轻盈垂落。

© Yurika Kono

© Yurika Kono
A central pillar supports the roof ridge, from which the four roofs (one of which is curved) fold down towards the edges, causing the relationship between the roof and the ground to change as one moves through the building. Ascending from the entrance, the interior space gradually opens up, with each step bringing a new perception of the roof lines and the exterior space. Sunlight spills through the cut edges of the roofs, softly brushing against the sides of the curved roof and scattering colors that change with time. We envisioned this house as a light fabric, gently embracing the family, where everyone can find their own corner while remaining under the same gentle shelter and under one roof.
一根中央支柱将屋顶撑起形成屋脊,四个屋顶(其中一个为弧形)从屋脊向边缘折叠而下,当你在建筑中穿行时,屋顶与地面的关系也随之变化。从入口处拾级而上,室内空间逐渐开阔,每一步都带来对屋顶线条和外部空间全新的感知。日光透过屋顶的切割边缘洒入,轻抚着弧形屋顶的侧面,散射出随时间变幻的色彩。我们设想这座房子如一块轻盈的织物,温柔地拥抱着这个家庭,每个人都能在其中找到属于自己的角落,同时所有人又都置身于同一温柔的庇护之下,共处同一屋檐。

© Yurika Kono

© Yurika Kono

© Yurika Kono

Floor Plans

Sections
To create the resilient wooden roof form resembling a tent, we proposed laminating thin, flexible wooden boards to form a curved surface with a total thickness of approximately 40–50 mm. After discussions with the contractor and model testing, the final system was determined to consist of three layers of cedar boards, each 300 mm wide and 15 mm thick. Off-site, each board was carefully watered daily to soften the fibers before being bent over molds conforming to the roof's designed geometry. These pre-curved thin boards were transported to the site, interleaved at the joints, and bonded together with screws and adhesive to create a unified 45 mm thick laminated curved roof.
为了营造出类似帐篷般柔韧的木质屋顶形象,我们提议通过将薄而可弯曲的木板层压,形成总厚度约 40 - 50 毫米的曲面。在与承包商讨论并通过模型测试后,最终确定该系统由三层雪松木板组成,每层木板宽 300 毫米、厚 15 毫米。在工厂外,每块木板每日精心浇水,以软化纤维,然后将其弯曲至符合屋顶设计几何形状的模具上。这些预先弯曲的薄板被运至现场,在接缝处交错排列,并用螺丝和粘合剂粘合在一起,形成一个统一的 45 毫米厚的弧形层压屋顶。

Courtesy of HUNE ARCHITECTS
Measurements taken both in the factory and on-site using Microelectromechanical Systems (MEMS) accelerometers showed that the natural vibration frequency of the 45 mm laminated panel increased by approximately 2.5 times compared to a single 15 mm board. This confirmed that the composite structure provided out-of-plane bending stiffness equivalent to a solid wood board 40 mm thick, while still retaining the lightness and flexibility of fabric being gently stretched into form.
在工厂和现场分别使用微机电系统(MEMS)加速度传感器进行的测量显示,与单块 15 毫米木板相比,45 毫米层压板的固有振动频率提高了约 2.5 倍。这证实了该组合结构提供的平面外弯曲刚度相当于一块 40 毫米厚的实木板,同时仍保留了织物被轻轻拉伸成形的轻盈与柔韧感。

© Yurika Kono