垂直堆叠的创新形态与场地响应:该项目最精髓之处在于其对有限场地条件的创造性响应,通过“垂直体育馆”的理念,将不同功能体量进行错位叠加,巧妙地解决了场地局促的难题。这种形态策略不仅成功地在北侧为城市空间创造了必要的遮阴广场,还通过嵌入式设计(将最大体量置于地下),实现了建筑体量的有机整合与城市肌理的协调,体现了高超的空间组织能力。
“多孔性”设计与公共空间的渗透:建筑在处理体量感的同时,通过植入大量开放性、渗透性的公共空间,实现了建筑与城市和市民的深度互动。从底层贯通的开放门厅到各层的露台、花园和架空休憩区,这些“多孔性”设计模糊了室内外的界限,鼓励市民全天候使用。这不仅是对深圳湿热气候的积极回应,更是一种“建造逻辑上的透明性”的体现,旨在构建一个开放、包容的文化精神载体。
结构与表皮的逻辑统一与轻盈表达:本项目在结构、表皮和内部空间尺度上实现了高度的模数化和系统性统一。主体结构采用钢筋混凝土筒体和钢桁架体系,支撑起复杂的错位悬挑,同时结构自身的杆件体系消解了庞大体量带来的笨重感,营造出一种漂浮的轻盈感。双层表皮(铝拉板网与Low-E玻璃)不仅在美学上赋予了建筑动态变化,更在节能环保方面起到了关键作用,体现了设计深度和对建造细度的精准控制。
After five years of design and construction, the Jianshang Sports Complex has been completed and fully put into use.
历经五年的设计及建设,简上体育综合体竣工并全面投入使用。

© 张超

© 张超
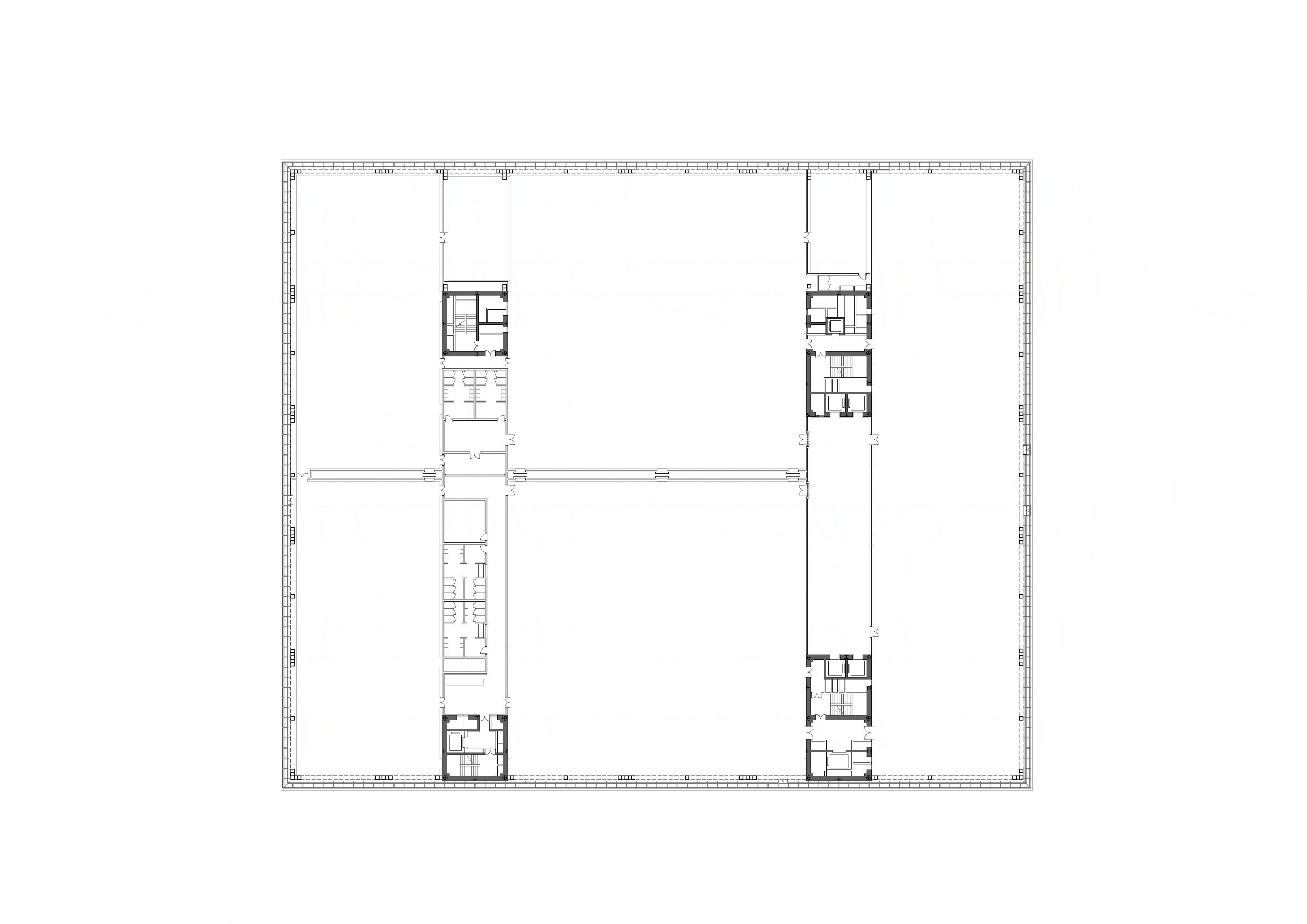
The Jianshang Sports Complex is the first vertical gymnasium in China, once praised by the "People's Daily" as the "Stairway of Giants." This metaphor vividly illustrates the architectural form strategy adopted in response to site conditions and functional requirements. Due to site constraints, the stadiums are arranged vertically. Responding to the surrounding urban space, the building volumes are staggered, receding to accommodate the school on the south side and forming a shaded outdoor plaza on the north side. Utilizing the elevation differences, the largest volumes, the comprehensive hall and the swimming pool, are embedded underground, occupying the B1 to Level 2 spaces. The badminton and tennis halls, being large and concentrated, are placed on the top four and five levels respectively, with smaller venues such as taekwondo, fencing, table tennis, dance, and fitness set on the third level, between the large upper and lower venues.
简上体育综合体是国内首座垂直体育馆,曾经被《人民日报》誉为“巨人的阶梯”。这一比喻形象的说明了该建筑在顺应场地条件和功能需求时所采取的形态策略。受场地限制,体育场馆在垂直方向上进行叠加布置。呼应场地周边的城市空间,建筑体量错位叠加,退让南侧学校,在北侧形成有遮阴的室外广场。利用地形高差,将体量最大的综合馆和游泳馆嵌入地下,占据负一层至二层空间。羽毛球馆和网球馆体量大而集中,分别置于顶上四层和五层,在上下大型场馆之间的三层,设置一些小型场馆,比如跆拳道、击剑、乒乓球、舞蹈和健身等。

© 夏至

© 张超
From a macroscopic perspective, the Jianshang Sports Complex integrates into the city while maintaining its individuality. On the one hand, the staggered volumes diminish the perception of the building's massive scale, harmonizing with the surrounding urban fabric. On the other hand, the minimalist form establishes a unique visual identity, easily distinguishing itself from the chaotic urban background.
从宏观上看,简上体育综合体融入城市的同时又不失个性。一方面,错动的体量消弱了建筑庞大的体量感,与周边城市肌理相协调。另一方面,极简的形态建立起别具一格的视觉特征,很容易从混乱的城市背景中脱离出来。

© 夏至

Section Perspective
剖透视图
Upon closer inspection, the porous characteristics of the building become increasingly apparent. At the base, an open hall spanning north-south invites citizens to enter freely. On the upper floors, terraces, gardens, and elevated resting spaces are implanted. Stairs connect vertically and interface with the ground plaza, encouraging citizens to continue using these open spaces after the facility closes.
走近看,建筑多孔性的特征渐趋明显。在建筑底部,贯通南北的开敞门厅吸引市民自由出入。在其上各层,均有露台、花园、架空休憩空间植入。楼梯上下连接,并与地面广场相接,鼓励市民在闭馆之后继续使用这些开放空间。

© 张超
In response to Shenzhen's hot and humid climate, these covered open spaces provide citizens with shade from the intense sun and a place for free movement. These open, wall-less spaces accommodate necessary functions like lobbies and elevator halls, minimizing the boundaries of air-conditioned rooms and creating a free and open atmosphere for activities. Our goal was to build a "transparent" building—not transparency in terms of retinal projection, but transparency in the constructed logic that can be reconstructed in the mind.
与深圳湿热的气候条件相呼应,有遮盖的开放空间为市民提供了烈日下的一片阴影,一个可自由行走的去处。这些没有墙的开放空间容纳了门厅、电梯厅等必要的功能,由此将使用空调的房间边界尽量内缩,创造出一种自由开放的活动氛围。我们的目标是建造一座“透明”的建筑,不是去追求投射在视网膜上的透明性,而是能够在大脑中还原出来的建造逻辑上的透明性。

© 张超

© 夏至
The structure faithfully reflects the spatial organization. The staggered boxes of the building's form can also be interpreted as staggered structural bodies. The main structure is primarily supported by six reinforced concrete cores. Each floor utilizes composite action between floor trusses and waist trusses, which are offset vertically to achieve ultra-large spans and far cantilevers. The structural module is controlled by the rational spacing of steel members, and this modular system runs through the division of scale for the building, curtain wall, landscape, and interior spaces. Undeniably, this is a behemoth utilizing over 9,000 tons of steel, a massive weight. However, the main structure formed by these members dispels the overall sense of bulk; combined with the architectural form, it creates a feeling of light, floating ascension.
结构忠实的还原了建筑空间,建筑形态上错动的盒子亦可解读为上下错位的结构体。主体结构主要由六个钢筋混凝土筒体支撑,每层由层间钢桁架与腰桁架共同受力,上下错动,实现超大跨度与超远悬挑。结构模数以钢结构杆件的合理节间距控制,这一模数系统也贯穿到建筑、幕墙、景观、室内空间的尺度划分上。不可否认的是,这是一座使用了超过9000吨钢材的庞然大物,其重量不可不谓巨大。然而,由杆件所形成的主体结构却化解了整体粗笨的感觉,结合建筑形态,反而有一种漂浮升腾的轻盈感。


© 夏至

© 张超
The building facade is integrated with the structure through clear and affirmative relationships in geometry, construction connections, and material properties. The facade employs a double-skin approach: an outer layer of expanded aluminum mesh and an inner layer of Low-E ultra-clear enameled glass. The outer aluminum mesh extends from the wall surface to the outdoor ceiling, defining a simple and complete sense of volume. Due to the semi-transparency and directional nature of the aluminum mesh itself, there are subtle variations in light, darkness, and transparency under different viewing angles, times of day, and weather conditions. This change in surface texture dissolves the oppressive feeling brought by the massive volume of the building. The double-skin system ensures sufficient indoor light while effectively preventing glare. As envisioned by the architects, this is intended to be an energy-efficient gymnasium that fully utilizes natural light and ventilation, effectively reducing lighting and air-conditioning energy consumption during operation and saving investment.
建筑立面与结构在几何关系上、亦在构造连接和材料属性上,通过清晰肯定的方式连为一体。建筑立面采用双层表皮的做法,外层为铝拉板网,内层为low-e超白彩釉玻璃。外层铝拉板网从墙面延伸到室外吊顶,刻画出单纯完整的体量感。由于铝拉板网自身半透明的特性和方向性,不同视角、时段和天气条件下,明暗、透明度均有着微妙的变化。表面肌理的变化,消解了建筑巨大的体量带来的压迫感。双层表皮在保证室内进光量的同时,还能有效阻止眩光。按照建筑师的设想,这将是一栋节能型的体育馆,充分利用自然采光及通风,能够有效降低运营期间照明及空调能耗,节省投资。

© 张超
Most indoor venues reflect a simple industrial aesthetic. This is both a response to cost constraints and driven by the subjective desire for "returning to simplicity," eliminating superfluous decoration to achieve "less expenditure for greater utility," returning to the essence of creating space for sports. The Jianshang Sports Complex is the most challenging, widest-ranging, and deepest-controlled project ever solely designed by CCDI Jinggong Studio. If compared to literary writing, the creation of the Jianshang Sports Complex is equivalent to writing a full-length novel. During this sustained battle lasting five years and six months, we supervised the drawing of thousands of technical drawings, conducted hundreds of site visits to check progress and quality, and participated in dozens of technical and coordination meetings. In addition to architectural work, we also designed interiors, landscaping, curtain walls, signage, and lighting, and supervised, reviewed, and coordinated the design work of nearly 40 other related disciplines.
大部分室内场馆反映出朴素的工业美感。这既是对成本限制的呼应,更是“返璞归真”的主观愿望牵引,剔除一些可有可无的装修,做到少费而多用,回到为运动创造空间的本质。简上体育综合体是CCDI境工作室所有主持设计的项目之中难度系数最大、覆盖范围最广、控制深度最高的一个项目。如果以文学写作类比,简上体育综合体的创作相当于写一部长篇小说。在长达五年六个月的持久战中,我们监督绘制了数千张技术图纸,数百次深入工地查看进度及质量,数十次参与各种技术、管理协调会议。除了建筑专业的工作之外,我们还进行了室内、景观、幕墙、标识、灯光等专业的设计,并对其余近40个相关专业的设计工作进行监督审核和统筹协调。

© 夏至

© 张超
As the Jianshang Sports Complex, embodying the hard work of countless people, stands on the land awaiting the test of time, if someone can discern a spark of the pure heart creating beauty within it, and if citizens, while enjoying the pleasure of sports, can also feel the open and inclusive cultural spirit conveyed by this building, it will be the greatest commendation and encouragement for us.
当凝聚了无数人辛劳的简上体育综合体屹立在大地上,等待时间的检验时,如果有人能从中看出一点点创造美的赤子之心,如果市民在享受运动带来的愉悦时,亦能感受到这座建筑传递的开放、包容的文化精神,将是对我们莫大的嘉奖和激励。

© 张超