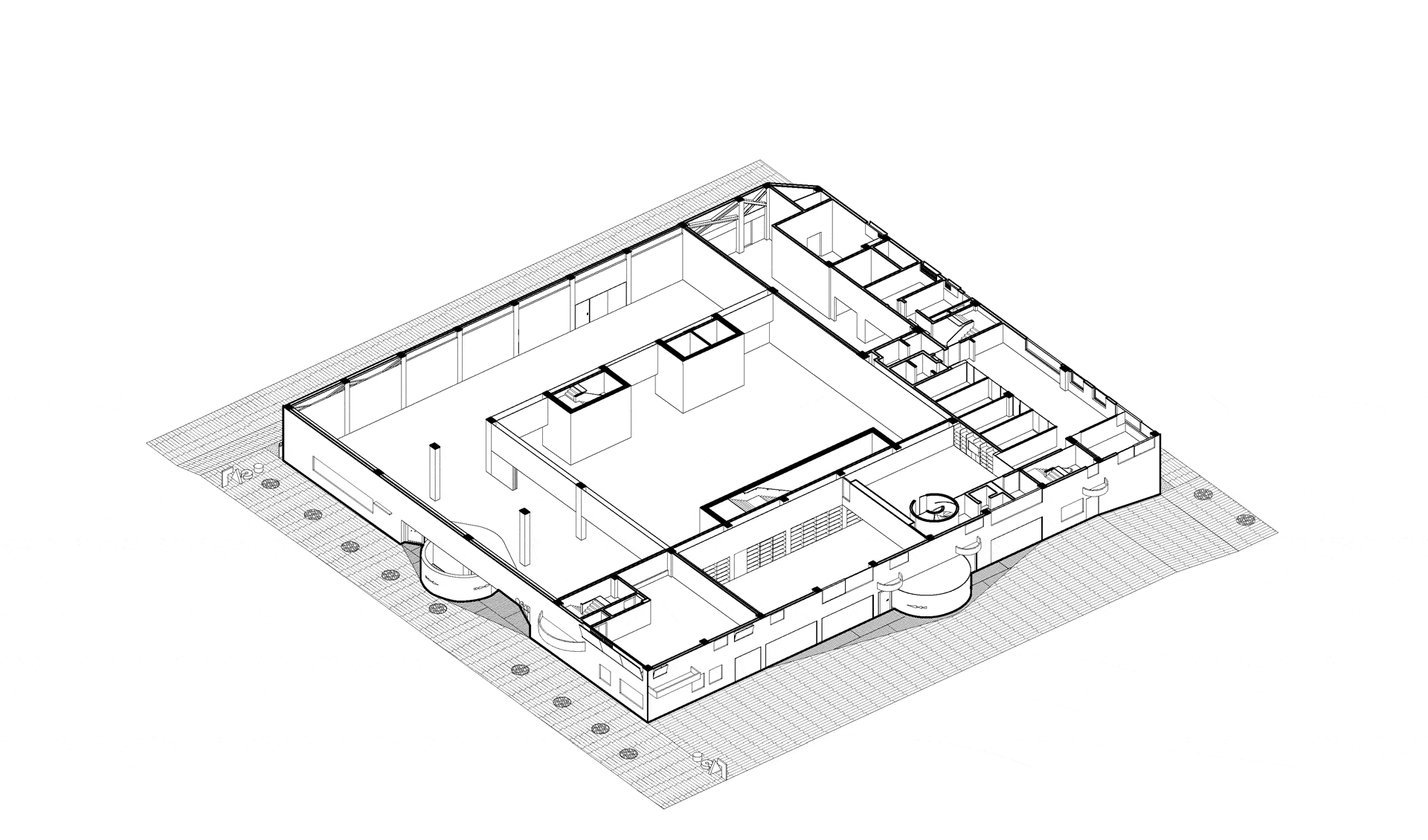
适应性再利用中的空间叙事与流线设计:该项目成功的关键在于对现有工业建筑体量的尊重与精准的内部重构。建筑师通过拆除中间部分并植入新的核心体量,巧妙地打通了原有封闭的层级关系,实现了空间的垂直贯通。三组楼梯(两个旋转楼梯和一个L型大楼梯)的精心布局,不仅强化了结构稳定性,更重要的是引导了观众的观展动线,将地面的参观体验自然延伸至屋顶平台,形成了一个完整的、富有层次感的空间叙事旅程。
“容器”与“留白”的当代艺术空间哲学:设计者成功地将一座旧厂房转译为一个谦逊而灵活的当代艺术“容器”。展厅内部通过可移动的门/墙系统,实现了最大的空间灵活性和路径的多样性。建筑语言上,新旧元素的融合尤为精妙:保留的工业柱网、以及用抽象的白色覆盖后保留的盲窗和圆盘符号,都在暗示工业遗存的记忆。这种“留白”的处理方式,使得建筑主体成为一个背景,为未来艺术的介入和再创造提供了无限的可能性。
屋顶的激活与场所精神的升华:最引人注目的设计亮点是将三层屋顶改造为一个高达8.4米的露天展厅。通过掀开屋顶并使用双层拉伸金属网作为外围墙体,设计实现了空间与环境的微妙渗透。这种处理既过滤了城市杂乱,又通过景窗“裁剪”了远山近树,创造了一个独特的、面向天空的观展环境。观众拾级而上,实现从“现实抽离”到“身心放空”的精神升华,极大地激发了当代艺术在地生产与开放性呈现的新潜力。
From the architects. OCAT (Overseas Chinese Town Contemporary Art Center) was established in 2005 and is a well-known avant-garde art institution in China, long dedicated to the exhibition and theoretical research of contemporary art. In 2003, Urbanus designed and renovated a furniture warehouse in the eastern industrial zone of OCT Shenzhen into the OCAT, while simultaneously undertaking the overall planning and design for the transformation of the industrial complex into a creative cultural park. The first OCAT venue was completed in 2005, and since then, the OCT OCAT has developed into a series of venues across the country. In 2022, the new OCAT venue, transformed from the former B10 two-story factory building in the northern area of the creative park which used to produce floppy disks, was completed and is referred to as OCAT-B10.
来自建筑师。OCT当代艺术中心(简称OCAT)成立于2005,是中国著名的先锋艺术机构,长期致力于当代艺术的展览和理论研究。2003年都市实践将深圳华侨城东部工业区的一座家具库房设计改造为OCT当代艺术中心,同时进行工业厂区向创意文化园转型的总体规划设计。首个OCAT展馆于2005年建成,之后华侨城OCAT发展为系列馆群遍及全国。2022年,由创意园北区原生产磁碟的二层厂房B10改造而来的OCT当代艺术中心新馆落成,简称OCAT-B10。

© TAL

© TAL
<>
© TAL
The renovation design for OCAT-B10 began in 2007, enduring various changes including early research and planning, the 2011 international design invitation exhibition, adjustments to project positioning, lengthy approval processes, and changes in the responsible leadership. It was implemented with difficulty fifteen years later under tight funding. During this period, the renovation schemes proposed by Urbanus responded to constantly changing external conditions, and B10's positioning shifted from a design center to a contemporary art center, with its external image evolving from radical avant-garde to modest and introverted.
OCAT-B10的改造设计始于2007年,经历了早期的研究策划、2011年国际设计邀请展、项目定位调整、漫长的项目审批、决策主管领导更换等各种变故,十五年后在资金紧缺的情况下艰难实施。其间都市实践推出的数版改造方案回应不断变化的外部条件,B10的定位从设计中心改为当代艺术中心,外部形象也从激进前卫转向谦逊内敛。

© TAL

© TAL
<>
© Right Angle Image
<>
© Right Angle Image
The final implementation retained the original building volume and main structure, with the central part demolished and a new volume inserted to connect the upper and lower floors. A rotating staircase was inserted at both the north and south ends, connecting the first and second floors, and the second and third floors, respectively. Together with the L-shaped grand staircase running straight through to the third floor in the center, these elements guide the audience's exhibition circulation, extending the entire exhibition experience from the ground to the rooftop platform. The three concrete cores become the new main structure.
最终实施方案保留了原建筑体量及主体结构,中间部分拆除,上下贯通植入一个新的体量。南北各插入一个旋转楼梯,分别连通一二层和二三层,与中部直通三层的L型大楼梯一起,引导观众的观展动线,把整个展览体验从地面延伸至屋顶平台。三个混凝土核心筒成为新的主体结构。

© TAL
<>
© TAL
The exhibition hall is a simple, standard factory space, achieving maximum spatial flexibility through a series of movable doors/walls, which also offers visitors diverse viewing paths and the pleasure of chance encounters during the exhibition. The main entrances on the south and west sides of the ground floor adopt ceremonial circular and semi-circular spaces, one solid and one void. The design language borrows from the vocabulary of the original building, with circular spaces of different scales—new and old—running through the interior and exterior of the square building, echoing each other.
展厅是简洁、标准的厂房空间,通过一系列可移动的门/墙取得最大限度的空间灵活性,也带给人们多样的观展路径与观展中偶遇的乐趣。建筑一层南侧与西侧主入口采用了富于仪式感的圆形和半圆形空间,一实一虚。设计语言采集自原有建筑的语汇,新与旧不同尺度的圆形空间贯穿于方形建筑的内外,且相互呼应。

© TAL
<>
© TAL
<>
© TAL
The structural column grid of the original building retains the legacy of the industrial era. The ground floor of OCAT-B10 is the main exhibition hall. The cafe and art shop on the south side can be independently open 24 hours a day and can also host exhibitions and lectures. The core space on the second floor is a multi-functional exhibition hall; the west side is fully enclosed as a climate-controlled exhibition hall; the north side is a children's art education space; and the south side with a terrace is reserved for the library and art salon.
原建筑的结构柱网保留着工业时代的遗韵。OCAT-B10首层是主展厅,南侧的咖啡厅及艺术品店,可24小时独立开放,也能够举办展览和讲座。二层的核心空间是多功能展厅,西侧全封闭作为恒温恒湿展厅;北侧为儿童艺术教育空间;带露台的南侧留给图书馆和艺术沙龙。


© TAL
The third floor features a series of exhibition halls with a height of 8.4 meters, and the roof has been removed to create an open-air exhibition hall. The outer walls are constructed with double-layered stretched metal mesh. The transparency of the material allows the exhibition space to permeate with the surrounding environment, simultaneously isolating the clutter of the surrounding buildings while framing and collecting distant mountains and nearby trees through viewing windows.
三层设计了高达8.4米的展厅系列,掀掉屋顶使之成为露天展厅。外围墙体用双层拉伸金属网建造,材料的通透性使展厅空间与周边环境互相渗透,既隔绝了四下楼宇的杂乱,又通过景窗裁切、收纳进远山近树。

© TAL
<>
© TAL
People ascend from the main grand staircase on the lower two floors to the "Rooftop Art Museum," gradually detaching from reality until their minds and bodies are empty. Here, people encounter each other, being both within and outside the space; here, people encounter artworks, and the viewing experience directly facing the sky presents the greatest degree of openness, thereby stimulating new possibilities for the local production and presentation of contemporary art.
人们从下面两层的展厅大拾阶而上,来到屋顶的“露天美术馆”,一步步从现实中抽离,直至身心放空。在此人与人相遇,既身处其中,又置身事外;在此人与作品邂逅,直接面向天空的观展体验呈现出最大程度的开放,并以此激发当代艺术在地生产与呈现的全新可能性。

© TAL
<>
© TAL
The exterior appearance of the existing industrial building is entirely preserved and painted white throughout. Most of the exterior windows are filled in to meet the needs of the museum's interior space, transforming into recessed blind windows that serve as molds for industrial heritage and urban memory; the original magnetic disk platters are retained on the facade, subtly hinting at the former function. The symbols and traces of the industrial era are sealed beneath the abstract white, becoming a container for contemporary art. The white space of the building brings infinite possibilities for artistic intervention. OCAT-B10 stands amidst the dappled shadows of the creative park's trees, welcoming future artistic intervention and recreation with the humble posture of a blank canvas.
现状工业建筑外观被全然保留,通体刷白,大部分外窗为满足美术馆内部空间需要而填实,转变为凹入的盲窗,成为工业遗存和城市记忆的铸模;外立面保留了原磁碟圆盘,不动声色地暗示了昔日的功能。工业时代的符号和印迹被封存在抽象的白色之下,成为当代艺术的容器。建筑的留白为艺术的介入带来了无限可能。OCAT-B10新馆矗立在创意文化园斑驳的树影中,以一种空白画布的谦和姿态欢迎未来的艺术介入与再创造。

© TAL
<>
© TAL