空间策略与场所精神的重塑:该项目通过精妙的空间组织策略,成功地将一个位于郊区商业中心内、面临采光不足和私密性挑战的700平方米空间,转化为一个温暖、人性化的医疗环境。核心在于对光线和私密性的层级化控制,通过引入中央双层挑高体量和大型天窗,实现了柔和漫射光的均匀分布,极大地提升了空间的宏伟感和舒适度。胡桃木饰面的大量使用,不仅在视觉上锚定了空间的温暖基调,更在心理层面与外部荒凉的停车场环境形成有力对比,重塑了诊所的场所精神。
以人为本的流动性与过渡体验:设计精髓在于构建了一个流畅的、以人为本的过渡体验。通过分层布局,将主要功能区域围绕中央核心展开,并整合了员工/患者咖啡厅和化妆品精品店等公共空间。这三个区域的有机组合,创造了一个无缝衔接的公共枢纽,引导人们从外部环境平稳地过渡到私密的治疗空间。流通走廊被设计成被柔和光线沐浴的过渡带,这种处理方式巧妙地模糊了传统医疗机构的冰冷感,使其更接近于放松的水疗体验,充分体现了当代医疗设计中对患者情感体验的关注。
光线作为空间叙事与情感载体:光线在本案中不再仅仅是照明手段,而是成为空间叙事和情感营造的核心要素。大型天窗引入的柔和漫射光不仅解决了采光问题,更奠定了空间宁静、治愈的基调。设计通过控制光线的强度和性质,在入口、公共区和治疗室之间建立起清晰而敏感的空间序列。这种光线渐变的过程,深刻地影响着使用者的心理感知,将原本可能令人不安的医疗访问转化为一种沉浸式的、尊重个体感受的体验,成功实现了医疗服务人性化的设计愿景。
For a long time, medical clinics have given off a traditional impression of being cold and impersonal. Recently, however, especially in the field of cosmetic treatments, doctors are increasingly inclined to provide medical services in a warmer, more relaxed environment, reflecting a desire to humanize medical practice.
长期以来,医疗诊所一直给人以冷冰冰、缺乏人情味的传统印象。但近年来,尤其是在美容治疗领域,医生们逐渐倾向于在更温暖、更轻松的环境中提供医疗服务,这体现了医疗实践人性化的愿望。

© Alex Lesage
For Atelier Carle, this vision first materialized through a spatial organization strategy based on site constraints. Located within an ordinary and uninviting commercial center in a Toronto suburb, the 700 m² space faced the dual challenge of insufficient privacy and a scarcity of natural light. To create an atmosphere that met the client’s new needs, both conditions required reconfiguring. Thus, the core of the conceptual approach lies in the subtle use of light and privacy, establishing a hierarchy between the two that corresponds to the functional layout.
对于Atelier Carle而言,这一愿景首先通过基于场地限制的空间组织策略形成。这间 700 平方米的空间位于多伦多郊区一个普通且缺乏吸引力的商业中心内,同时面临着私密性不足和自然采光匮乏的双重挑战。为了营造符合客户全新需求的氛围,这两个条件都需要重新配置。因此,其概念方法的核心在于对光线和私密性的巧妙运用,并在二者之间建立起一种层级关系,使其与功能布局相呼应。

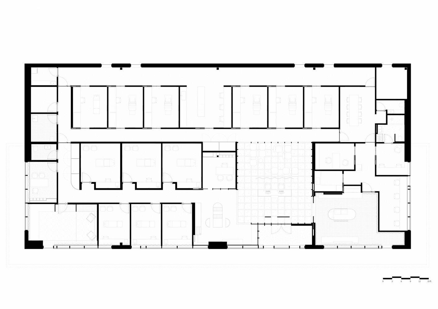
Plan
The design employs a layered spatial layout, unfolding the treatment areas around a central, double-height volume; a large skylight introduces a soft, diffused light that illuminates the entire space and enhances its sense of grandeur. Walnut veneer is the primary material, whose warm tones in the reception area offer a stark contrast to the desolate exterior landscape, predominantly composed of an endless, barren parking lot.
设计中采用了分层式的空间布局,将各个治疗区域围绕一个中央双层挑高的空间体量展开;大型天窗引入柔和的漫射光,照亮整个空间,增强了其宏伟感。胡桃木饰面是主要材料,其在接待区的温暖色调与周围荒凉的外部景观形成鲜明对比,后者主要由广袤无垠、荒凉的停车场组成。

© Alex Lesage

© Alex Lesage
Two functional areas related to the main purpose occupy the spaces on either side of this “central” zone, lending the facility more communal spaces: a café designed for staff and patients, and a cosmetics boutique with a testing counter. These three spaces collectively form a public area that ensures a smooth transition to the treatment rooms.
与主要功能相关的两个功能区域占据了这片“中心”区域的两侧空间,为该设施增添了更多公共空间:一个是专为员工和患者设计的咖啡厅,另一个是配备试用柜台的化妆品精品店。这三个空间共同构成了一个公共区域,确保人们能够顺畅地过渡到治疗室。

© Alex Lesage
These areas are accessed via circulation corridors bathed in very soft, gentle light, bringing the clinical experience closer to that of a relaxing spa rather than a traditional medical setting. Light acts as a filter between spaces dedicated to different activities: the gradual progression from the entrance to the treatment rooms creates a sensitive spatial experience that resonates with the values emerging in the design of contemporary medical and wellness environments.
这些区域通过沐浴在非常柔和、柔和光线中的流通走廊进入,使临床体验更接近放松水疗而非传统医疗环境。光线作为过滤器,介于不同活动的空间之间:从入口到治疗室的渐进过程创造了一种敏感的空间体验,与当今医疗和健康环境设计中涌现的价值观产生共鸣。

© Alex Lesage