Koi River Soup Public Bathroom/Schema Architects+Jo Nagasaka
狛江汤公共浴室 / Schemata Architects + Jo Nagasaka
设计理念的传承与创新:该项目巧妙地延续了日本传统公共澡堂的文化精髓,并在现代语境下进行了创新。设计师深刻理解了公共澡堂作为社区中心的历史意义,将其不仅仅定义为洗浴场所,而是融入了社交、休闲和文化体验。通过将澡堂、桑拿、酒吧等功能融为一体,创造了一个更具吸引力的公共空间,满足了人们对放松身心、交流互动和文化体验的多重需求。这种对传统文化的尊重和对现代生活的适应,是该项目最核心的价值所在,体现了设计师对社会责任的担当和对人本主义的关怀。
空间设计的独特性与魅力: 狛江汤的设计在空间组织上展现了极高的创造力。设计师没有简单地复制传统的澡堂模式,而是充分利用场地条件,将室内空间与室外景观巧妙地结合起来。这种内外空间的融合,使得整个建筑更具开放性和通透感,为使用者提供了丰富的视觉和感官体验。定制的绿色瓷砖以及开放的室外空间,创造了一种亲切、舒适、令人放松的氛围,增强了社区的凝聚力。更重要的是,项目打破了传统澡堂的封闭性,使其成为一个开放的、充满活力的社区中心,促进了人与人之间的交流互动。
细节设计的匠心与人文关怀: 项目在细节设计上体现了设计师对品质的极致追求。瓷砖的选择和排列方式是该项目的亮点之一,设计师通过对不同尺寸瓷砖的巧妙组合,营造出一种独特而富有韵律感的视觉效果,既是对传统澡堂瓷砖的致敬,又赋予了新的时代特色。此外,项目对历史的尊重也体现在对原有建筑元素的保留和利用上,使得新建筑与周边环境和谐共生,从而传承了当地的文化记忆。这种对细节的关注,充分体现了设计师的人文关怀,使项目更具深度和温度,也更能打动人心。

© Ju Yeon Lee

© Ju Yeon Lee
This project is the second public bathroom designed by Schema Architects. Initially, in order to improve public health, especially after World War II, public bathhouses quickly emerged in the Kanto region without family bathrooms. At that time, many bathhouses in the Kanto region had paintings of Mount Fuji on their walls, symbolizing hope. The habit of taking a bath at the bathhouse every day connects people together, and the bathhouse has become a place for the local community.
该项目是 Schemata Architects 设计的第二个公共浴室。最初,为了改善公共卫生,特别是在第二次世界大战之后,关东地区在没有家庭浴室的情况下迅速兴起了公共澡堂。当时,关东地区许多澡堂的墙上都画有富士山,象征着希望。每天去澡堂洗澡的习惯将人们联系在一起,澡堂成为当地社区的一个场所。

© Ju Yeon Lee

总平面图

© Ju Yeon Lee
More than half a century later, with every family having their own bathroom, showering in the morning became a common practice influenced by Western culture, and public bathhouses have become outdated. Of course, there are also some customers who make bathing at the bathhouse a part of their daily life even when taking a shower at home, but this is not enough to pass on the business of the bathhouse from generation to generation. Recently, bathhouses have disappeared from the city in the blink of an eye.
半个多世纪以后,随着每个家庭都有自己的浴室,早上淋浴成为了受西方文化影响的普遍做法,公共澡堂已经过时了。当然,也有一些顾客即使在家里洗澡,也会把到澡堂洗澡作为日常生活的一部分,但这并不足以让澡堂的生意代代相传,最近,澡堂转眼间就从城市中消失了。

© Ju Yeon Lee

© Ju Yeon Lee
Xiaojiang Tang is such an example, but its owner Mr. Nishikawa wishes to preserve the bathhouse and has decided to manage it as his successor. At the same time, he saw the first public bathhouse we had taken on - Xiao Jintang, so he found us. At Xiaojintang, in addition to providing bath facilities, we also offer a sauna and a "bandai" (reception desk) where you can drink beer, hoping to bring people a little extra enjoyment. This project also adopts the same concept. It takes only 30 minutes to walk or 15 minutes by train from where I live, so I designed it as a bathhouse and community that I often visit.
狛江汤就是这样一个例子,但其所有者西川先生希望保留该浴场,并决定自己作为继承人管理该浴场。与此同时,他看到了我们承接的第一个公共澡堂--小金汤,于是找到了我们。在小金汤,我们除了提供浴池设施外,还提供了桑拿浴室和可以喝啤酒的“bandai”(接待处),希望能给人们带来一点额外的享受。这个项目也采用了同样的理念。从我住的地方步行 30 分钟或乘火车 15 分钟就能到达这个地方,因此我把它当作我常去的澡堂和社区来进行设计。

© Ju Yeon Lee

© Ju Yeon Lee
Like Golden Soup, Xiaojiang Soup was originally an architectural public bathroom that was part of a reinforced concrete building, with the upper level serving as residential space. However, as the site is located in the outskirts of Xiaojiang and there are many open spaces nearby, we have decided to use these open spaces to build a public bathroom. We imagined how the open space would intertwine with the underground channels that have turned into green spaces over time, and decided to combine these green spaces with comfortable saunas and bars to create a public bathroom. We have customized original green tiles from Duozhijian City to create a friendly atmosphere with the green space.
与黄金汤一样,狛江汤最初也是一座建筑型公共浴室,是钢筋混凝土建筑的一部分,上层是居住空间。但是,由于场地位于狛江市郊,附近有许多空地,我们决定利用这些空地建造一个公共浴室。我们想象了空地如何与随着时间推移而变成绿地的暗渠交织在一起,并决定将这些绿地与舒适的桑拿房和酒吧结合在一起,打造一个公共浴室。我们定制了多治见市的原创绿色瓷砖,以营造与绿地的亲和氛围。

© Ju Yeon Lee

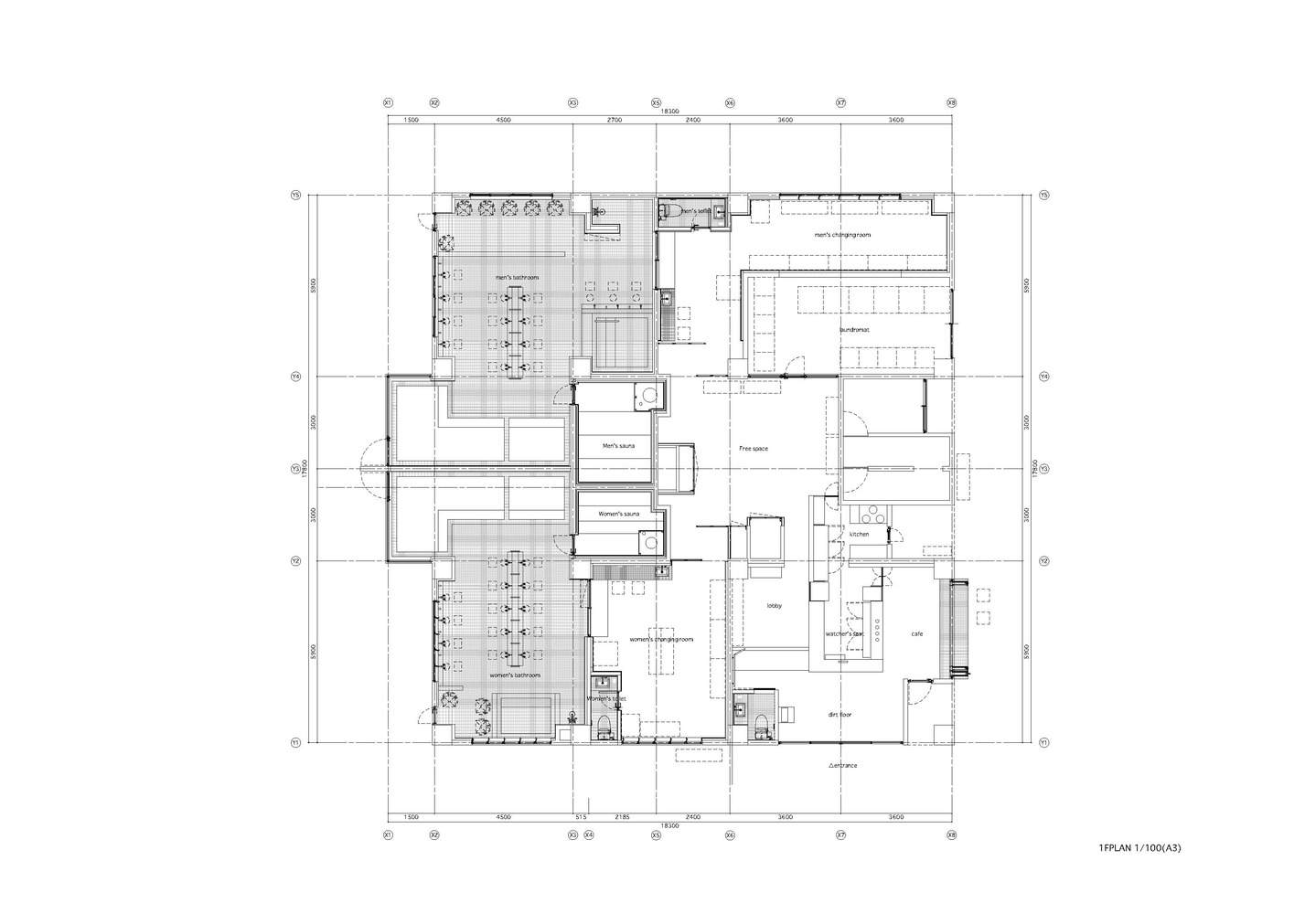
平面图

© Ju Yeon Lee

© Ju Yeon Lee
I once vaguely saw tiles pieced together in old public bathhouses in Kyoto and other cities, gradually feeling a sense of dissonance. When I recognized the patterns of different tiles, the moment I said 'Aha', I wanted to do something similar. We have customized three sizes of square tiles: 47x47mm, 97x97mm, and 47x97mm, and arranged them alternately as cleverly as possible.
我曾在京都和其他城市的旧公共澡堂里隐约看到拼凑在一起的瓷砖,逐渐感受到一种不协调感,当我认出不同瓷砖的图案时,“啊哈”的那一刻,我想做一些类似的事情。我们定制了 47x47mm、97x97mm 和 47x97mm 三种规格的正方形瓷砖,并尽可能巧妙地交替排列。

© Ju Yeon Lee

© Ju Yeon Lee
In the past, there was a bar run by the owner's aunt in front of this building, and a public bathhouse behind it. The new bathhouse connects the bathroom and dining area with Fuji Mountain tiles on the wall, surrounded by bars and reception desks. The open space next to the bathhouse has become a gathering place where people can enjoy drinks while watching Mount Fuji after taking a shower. In less than a month since its opening, Xiaojiang Tang has gradually become a community center, once again playing an indispensable role as a public bathhouse in the local community.
过去,这座建筑的前面有业主的姑姑经营的酒吧,后面是公共澡堂。新的澡堂通过墙上的富士山瓷砖将浴室和餐饮区域连接起来,周围是酒吧和接待台。澡堂旁边的空地已经变成了一个聚会场所,人们可以在洗澡后一边看着富士山一边享受饮品。自开业以来不到一个月的时间里,狛江汤逐渐成为一个社区中心,重新发挥了公共澡堂作为当地社区不可或缺的角色。

© Ju Yeon Lee