Kagoshima Old House Renovation/atelier SALAD
鹿儿岛老宅改造 / atelier SALAD
设计理念的升华与在地精神的呼应: 本项目最令人印象深刻之处在于其对设计理念的深刻理解和对当地环境的精准回应。设计师从米其林星级主厨对本土文化与传统的热爱中汲取灵感,并通过建筑语言传递出相似的地域认同感与文化延续性。 银色钢板的运用,并非单纯的材料选择,而是对阿久根渔港鱼箱及当地渔业文化的象征性回应,也预示着建筑在严酷环境中对自身的一种保护。这种设计手法将建筑与周边环境、文化背景紧密结合,赋予了建筑深厚的内涵与生命力,而非仅仅停留在形式的堆砌,是建筑师对在地精神的精彩诠释。
新旧融合的创新手法与空间叙事的巧妙: 项目的核心在于对原有木质结构的保留和新金属表皮的运用,这种“包裹”手法创造了一种引人入胜的视觉效果。透过银色钢板,依然可见的木结构,构成了一种“新旧对话”的独特叙事,将建筑的历史感和现代感巧妙地融为一体。 这种设计不仅体现了对历史的尊重,更象征着保护与变革之间的和谐统一。 此外,对传统“玄关土间”的重新诠释,将空间向室内延伸,创造了室内外空间的流畅过渡,打造出灵活的半公共场所,反映了渔村的社群特质,将建筑的社会功能发挥到极致。
可持续性与社会价值的完美结合: 该项目在可持续发展方面展现出卓越的实践,通过对原有建筑的再利用,有效地减少了建筑垃圾和隐含碳排放,体现了对环境的尊重和对资源的节约。更为重要的是,该项目在社会层面的贡献也令人赞叹。 它将一座废弃的住宅改造成一个聚会场所,促进了社区的凝聚力,为人口减少的村庄注入了新的活力。这种设计理念超越了纯粹的建筑范畴,体现了对社会责任的担当。 项目通过实际行动,为传统建筑在当代语境下的发展提供了新的思路,并为乡村振兴注入了积极的推动力,堪称典范。

© Kenta Hasegawa

© Kenta Hasegawa
A Michelin starred chef has moved to a traditional wooden house with a 90 year history in a small fishing village in the southern city of Ajugan, Japan. The chef cherishes local materials and traditions, upholds a unique worldview, and his philosophy deeply inspires us. We attempt to convey a similar sense of regional identity and cultural continuity through architectural language.
一位米其林星级主厨迁居至日本南部阿久根市一座小渔村内的 90 年历史传统木屋。主厨珍视本土材料与传统、秉持独特世界观,其理念深深启发了我们。我们试图通过建筑语言,传递出相似的地域认同感与文化延续性。

© Kenta Hasegawa

© Kenta Hasegawa
The rough silver steel fish boxes stacked at Agugen Fishing Port left a deep impression on us. Inspired by these fish boxes and the black carp schools such as bamboo pod fish and sardine that abound in the nearby waters, we imagine to wrap the old house with silver steel plates. This bold architectural move not only resists the harsh coastal climate for the building, but also symbolizes the dialogue between protection and change, allowing for a harmonious blend of old and new.
阿久根渔港堆叠的粗犷银色钢制鱼箱,给我们留下了深刻印象。受这些鱼箱及附近海域盛产的竹荚鱼、沙丁鱼等青鱼群的启发,我们设想用银色钢板包裹老宅。这一大胆的建筑举措,不仅为建筑抵御了严酷的海岸气候,更象征着保护与变革之间的对话,让新旧和谐交融。

© Kenta Hasegawa

© Kenta Hasegawa
We carefully preserved the original wooden structure, making it still clearly visible under the new metal skin. This layered design constructs a dialogue between the past and present in both visual and tactile aspects, reflecting the spiritual core of the local fishing community and triggering people's thoughts on change and continuity.
我们精心保留了原有的木质结构,使其在新金属表皮下依然清晰可见。这种分层设计,在视觉与触觉上构建起过去与现在的对话,既体现了当地渔民社区的精神内核,又引发了人们对变迁与延续的思考。

© Kenta Hasegawa

© Kenta Hasegawa
The traditional "foyer earth room" (a mud floor entrance space that once served both reception and kitchen functions) has been reinterpreted, with its spatial continuity extending into the interior. This design creates a smooth transition between indoor and outdoor spaces, creating a flexible semi public space that reflects the community characteristics of the fishing village.
传统的“玄关土间”(曾兼具接待与厨房功能的泥土地面入口空间)被重新诠释,其空间连续性向室内延伸。这一设计创造了室内外空间的流畅过渡,打造出一个灵活的半公共场所,反映了渔村的社群特质。

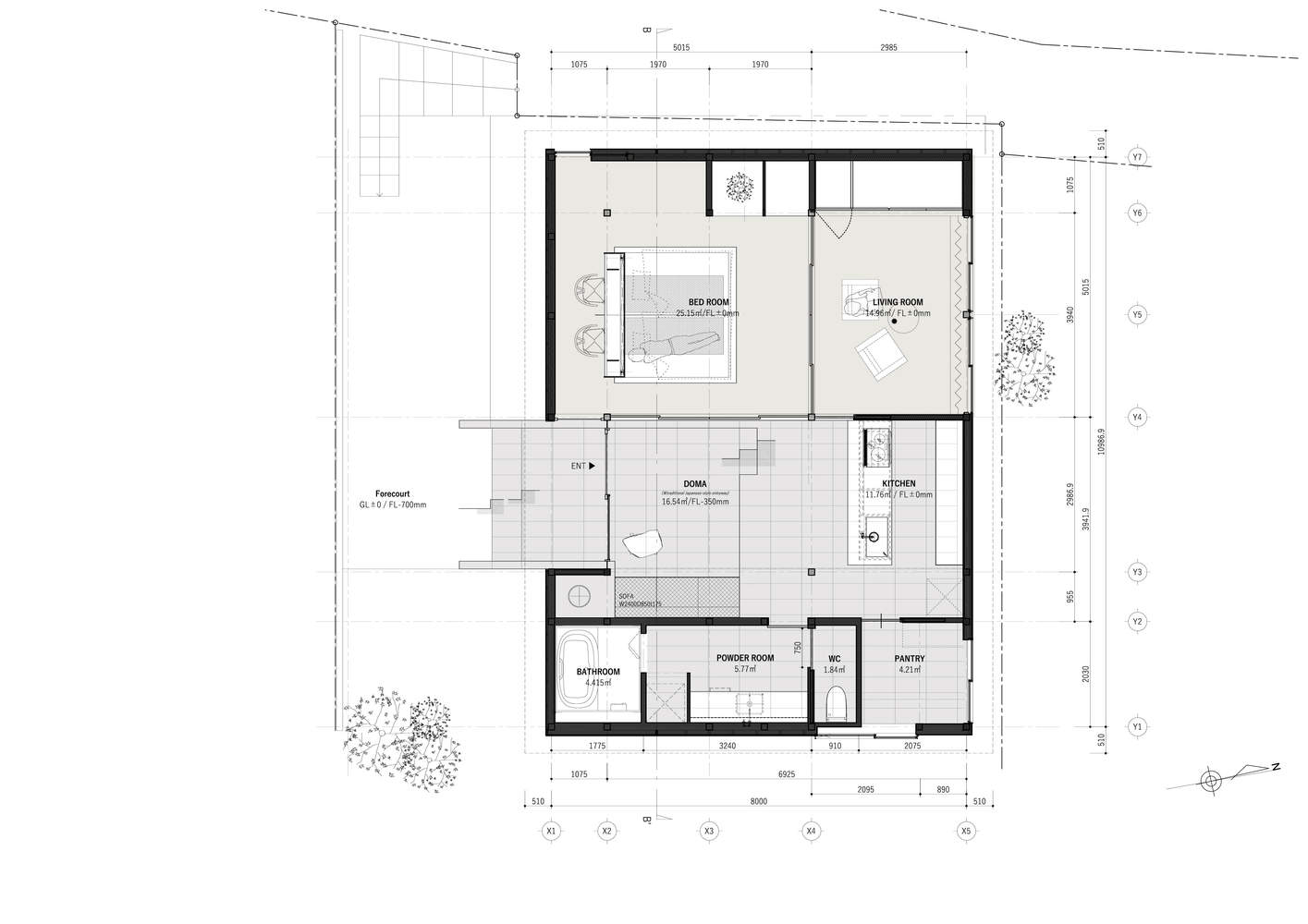
平面图
Sustainability and social impact are the core of design. The project significantly reduces construction waste and hidden carbon emissions by reusing existing buildings instead of demolishing and rebuilding them. At the same time, this house has become a social catalyst, revitalizing a once abandoned residence into a gathering place and promoting community cohesion in the village with declining population.
可持续性与社会影响是设计的核心。项目通过再利用现有建筑而非拆除重建,大幅减少了建筑垃圾与隐含碳排放。同时,这座房屋还成为社会催化剂,将一座曾被遗弃的住宅重新激活为聚会场所,在人口减少的村庄中促进了社区联结。

© Kenta Hasegawa
This building aspires to become a vibrant phenomenon rooted in the local people's livelihoods, connecting the past, present, and future. It demonstrates a keen and poetic exploration of rural revitalization, providing a new paradigm for how traditional architecture evolves in inheritance.
这座建筑立志成为扎根于当地民生的鲜活现象,连接过去、现在与未来。它展现了对乡村复兴的敏锐而富有诗意的探索,为传统建筑如何在传承中演变提供了新范式。

© Kenta Hasegawa