Sa_Yu Home/FATHOM
Sa_Yu 之家 / FATHOM
空间重塑与时间对话:该项目最令人印象深刻的在于其对空间关系的创新性探索。建筑师巧妙地将70年历史的旧木屋改造与社区功能翼楼的扩建相结合,通过“修缮”与“扩建”两个维度的时间叠加,创造了一种全新的居住体验。核心在于对原有建筑结构的解构与重组,插入钢筋混凝土中空结构,将私密空间与公共空间有机分割,又通过光线、气流和动线的巧妙设计,实现空间的相互渗透和融合。这种既尊重私密性又鼓励交流的设计,体现了对当代生活方式的深刻理解和对建筑本质的独特思考,打破了传统住宅的固有模式。
细节设计中的功能美学:在细节设计方面,该项目展现了对功能与美学的完美结合。例如,LDK区域的定制木钢复合外罩巧妙地隐藏了大型家电,既保证了功能性,又消除了视觉干扰。用餐区通过悬挂的黑色线性灯具,将裸露的原始屋梁与新建吊顶连接,突显了新旧结构的对话和时间流逝的痕迹。起居空间地面微微下沉,创造出一种舒适的围合感,同时,西向低位固定窗的设计,则将街巷的声响柔和地引入室内。这些细节设计,无不体现了建筑师对生活方式的细致观察和对建筑语言的精准把握,实现了功能性与美学价值的统一。
材质与光影的诗意呈现:建筑外立面是该项目的又一亮点,银色涂装的纤维水泥板和百叶窗的设计,赋予了建筑动态的生命力。通过保留接缝的裸露状态,并巧妙地将排水槽融入其中,既解决了技术问题,又凸显了材料的层次感。南侧的斜向墙体,随光线变化而呈现出不同的色调,为建筑增添了时间的流逝感。百叶窗的灵活调节,不仅改变了光线的强度,还在墙面上投下了细腻的阴影,营造出宁静的氛围。这种对材质、光影的巧妙运用,使得建筑不再是冷冰冰的物体,而是充满了诗意和情感,体现了建筑师对建筑本质的深刻理解。

© Tatsuya Tabii

© Tatsuya Tabii
This project is located in a hilly area of Wu City, Hiroshima Prefecture, Japan. It is an architectural practice that redefines the concept of living by overlaying two time dimensions of "repair" and "expansion". The project starts with the renovation of a 70 year old single story wooden residential building, followed by the addition of a new community functional wing at the back of the site, achieving a transformation from a private residence to a "relational building" - where people, space, and time are gently intertwined.
该项目坐落于日本广岛县吴市的一处丘陵地带,是一项通过叠加“修缮”与“扩建”两个时间维度,重新定义居住概念的建筑实践。该项目以一栋拥有 70 年历史的单层木造住宅的修缮为起点,随后在场地后方增建了一座新的社区功能翼楼,由此实现了从私人住宅向“关系建筑”的蜕变 —— 在这里,人、空间与时间温柔交织。

© Tatsuya Tabii
In the renovation process, the project team first traced and interpreted the layered history formed by multiple expansions and renovations of the existing residential buildings. By selectively dismantling these historical layers at key nodes and vertically inserting a reinforced concrete (RC) hollow structure, the courtyard and entrance space are vertically connected, achieving bold spatial segmentation. In this layout, private bedrooms, living and dining (LDK) areas, reinforced concrete hollow structures, and newly added community functional wing buildings are each separated into separate areas, but are organically connected through light, airflow, and flow lines. This segmentation is not simply functional zoning, but proposes a new way of life - one that respects the psychological sense of distance while allowing private and shared moments to naturally continue and seamlessly interweave.
在修缮环节,项目团队首先对现有住宅历经多次扩建与改造所形成的分层历史进行了追溯与解读。通过在关键节点选择性拆除这些历史层积后,垂直插入一个钢筋混凝土(RC)中空结构,将庭院与入口空间纵向贯通,实现了大胆的空间分割。在此布局中,私密卧室、起居餐饮(LDK)区域、钢筋混凝土中空结构以及新增的社区功能翼楼各自独立成区,却又通过光线、气流与动线实现有机联结。这种分割并非单纯的功能分区,而是提出了一种全新的生活模式 —— 既尊重心理层面的距离感,又让私人时光与共享时刻得以自然延续、无缝交织。

© Tatsuya Tabii

© Tatsuya Tabii
As the core area of the family, the LDK region has become a practical platform for rethinking the framework of daily life. Large household appliances such as refrigerators, televisions, and range hoods are all equipped with customized wood steel composite covers that blend seamlessly into the overall building, maintaining functionality while eliminating visual interference. In the dining area, the exposed original roof beams are connected to the newly made ceiling through black linear lamps hanging from two points. The lamps outline the trajectory of time like brushstrokes, highlighting the quiet dialogue between the old wood and the newly built structure.
作为家庭的核心区域,LDK 区域成为重新思考日常生活框架的实践平台。冰箱、电视、抽油烟机等大型家电均采用定制木钢复合外罩,如量体裁衣般融入建筑整体,在保持功能性的同时消解视觉干扰。用餐区中,裸露的原始屋梁与新制作的吊顶通过两点悬垂的黑色线性灯具实现衔接,灯具如笔触般勾勒出时光的轨迹,凸显出老旧木材与新建结构之间的静谧对话。

© Tatsuya Tabii

© Tatsuya Tabii
The living space floor sinks slightly, allowing people to naturally sit along the continuous edges of the floor. The subtle change in the height of this line of sight creates a quiet and enclosed atmosphere, while the low fixed windows facing west softly transmit the sounds of the streets and alleys. From the perspective facing the inner courtyard, lush green plants seem within reach - this inward openness contrasts sharply with the enclosed exterior facade. Looking at it from a sitting position, the interweaving of outdoor bright light and indoor shadows gradually merges, giving rise to a comfortable atmosphere unique to this place.
起居空间地面微微下沉,使人可自然地沿连续的地面边缘落座。这一视线高度的微妙变化营造出静谧、围合的氛围,而西向低位固定窗则柔和地传递着街巷的声响。从朝向内庭的视角望去,葱郁绿植仿佛触手可及 —— 这种向内的开放感与封闭的外立面形成鲜明对比。以坐姿观之,室外明光与室内暗影的交织渐次融合,衍生出独属于此处的舒适意境。

© Tatsuya Tabii
The reinforced concrete hollow layer is set between the LDK area and the private space wing, serving as the core hub to organically connect the entire residential building. Two frameless skylights and a large opening facing the courtyard introduce soft diffuse sunlight, which is lightly reflected on the exposed concrete surface and contrasts with the wooden system.
该钢筋混凝土中空层设置于 LDK 区域与私密空间翼楼之间,作为核心枢纽将整座住宅有机串联。两处无框天窗及面向庭院的大型开口引入柔和的漫射日光,光线在裸露的混凝土表面轻盈反射,与木构体系形成对比。

© Tatsuya Tabii
At certain specific moments, the acrylic bench at the entrance, which is as thick as 65 millimeters, captures light from the skylight slit, turning the space into a quiet shelter and gently reminding residents of the passage of time. This hollow layer is neither a corridor nor a courtyard, but a transitional "edge zone" that dissolves binary oppositions - it blurs the boundaries between indoor and outdoor, solitude and coexistence, stillness and flow.
在某些特定时刻,入口处厚达 65 毫米的亚克力长凳会捕捉到来自天窗狭缝的光线,空间随之化作静谧的庇护所,温柔地提醒着居住者时光的流转。这一中空层既非走廊也非庭院,而是一个消解二元对立的过渡性“边缘地带” —— 它模糊了室内与室外、独处与共处、静止与流动的界限。

© Tatsuya Tabii

© Tatsuya Tabii
Each segmentation boundary is equipped with movable partitions, allowing for flexible adjustment of residential layout according to seasonal changes or activity needs. For example, when the entrance and courtyard area are fully opened, each functional wing building is independent of each other and forms a semi open and coherent experience with the external space; On the contrary, closing these partitions can integrate the interior into a continuous overall space, making the hollow layer a connecting buffer zone between different areas. This adaptability breaks through the fixed framework of traditional floor plans and reflects contemporary architectural concepts - allowing residents to dynamically edit their living scenes based on their own lifestyles.
每个分割边界均配有可移动隔断,使住宅布局能随季节更迭或活动需求灵活调整。例如,完全打开入口与庭院区域时,各功能翼楼彼此独立,同时与外部空间形成半开放式的连贯体验;反之,关闭这些隔断则可将室内整合为一个连续的整体空间,令中空层成为不同区域间的衔接缓冲带。这种适应性突破了传统平面图的固定框架,体现了当代建筑理念 —— 允许居住者根据自身生活方式对生活场景进行动态编辑。

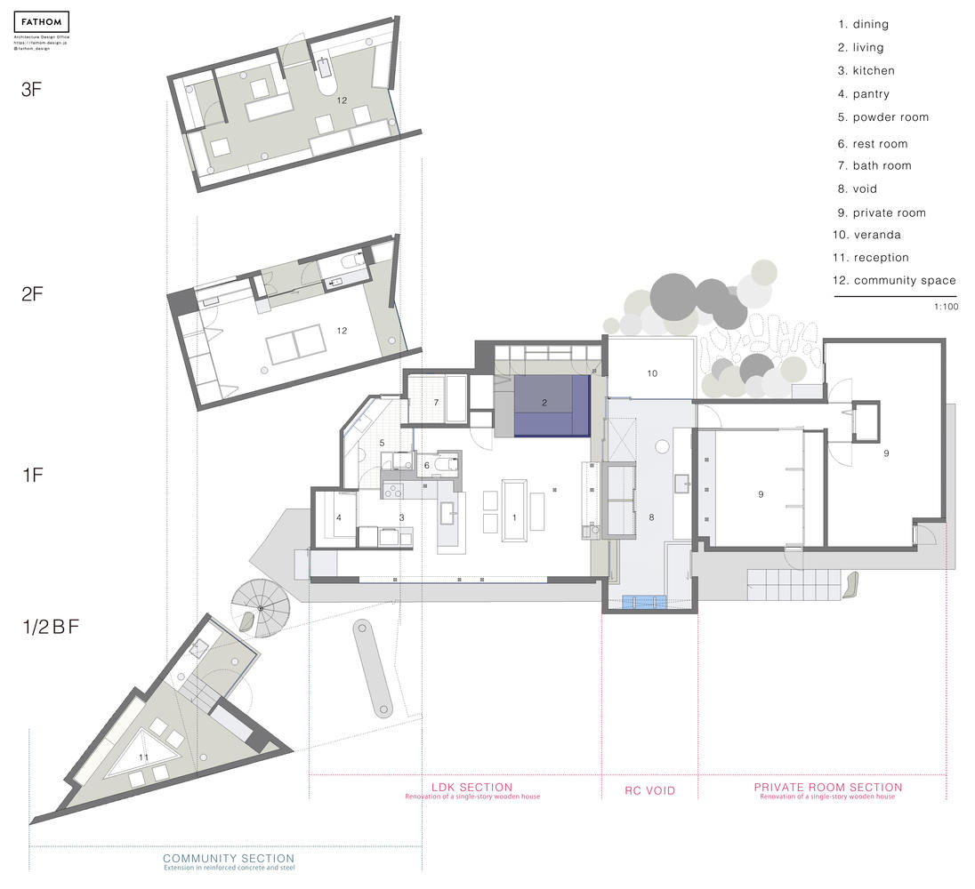
平面图
The community functional wing building is constructed with reinforced concrete foundations and steel structural frames, extending the new family core space outward to a wider world. The wing tower replaced the original barn, and the site was excavated into a triangle that conforms to the contour of the mountain, forming a semi underground structure that naturally blends into the terrain.
社区功能翼楼采用钢筋混凝土基座与钢结构框架建造,将新的家庭核心空间向外延伸至更广阔的世界。该翼楼取代了原有的谷仓,场地被挖掘成顺应山体轮廓的三角形,形成一处半地下结构,自然地融入地形之中。

© Tatsuya Tabii

© Tatsuya Tabii
Entering the interior, a large reception desk extends along the concrete wall, accompanied by carved benches that welcome visitors with architectural elements. Climbing up the spiral staircase, one can reach a community activity space that is two stories high. Various activities are spread out vertically on the upper level, where terrain, structure, light, and human movement intersect, allowing daily life to naturally penetrate and extend into the external space.
步入内部,一张大型接待长桌沿混凝土墙延展,与之相配的雕刻长凳以建筑元素本身迎接访客的到来。沿着螺旋楼梯拾级而上,可抵达两层通高的社区活动空间,此处各类活动在垂直维度上层层铺展 —— 地形、结构、光线与人的动线在此交织,令日常生活自然地向外部空间渗透延展。

© Tatsuya Tabii
The exterior of the building is made of silver coated fiber cement board, deliberately preserving the exposed state of the joints. Not using sealant to fill the joint, but cleverly integrating the drainage groove into the board joint, not only solves the drainage problem, but also highlights the layering of the material. A diagonal wall inserted on the south side - serving as a boundary marker between the old and new parts - refracts different light rays as the sunlight angle changes, causing the color tone of the facade to change with the weather and time. This dynamic skin endows the inorganic structure with a sense of breathing, allowing the newly built part to naturally connect and blend seamlessly with the renovated old house.
建筑外立面采用银色涂装的纤维水泥板,刻意保留了接缝的裸露状态。未用密封胶填缝,而是将排水槽巧妙融入板缝之中,既解决了排水问题,又凸显了材料的层次感。南侧插入的一道斜向墙体 —— 作为新旧部分的交界标识 —— 随日照角度变化折射出不同光线,使立面色调随天气与时间流转而变幻。这一动态表皮赋予无机结构以呼吸感,令新建部分与修缮后的旧宅自然衔接、浑然一体。

© Tatsuya Tabii
The louvers embedded in the wall can flexibly adjust the opening size and line of sight, changing the intensity of light and shadow every day. The tilt angle of the blinds casts delicate shadows on the smooth gypsum wall, giving the facade a sense of rhythm and tranquility. This diagonal design echoes the sloping walls of the newly built community functional wing building, visually integrating buildings from different eras and construction methods.
嵌入墙体的百叶窗可灵活调节开口大小与视线范围,每日变换着光影的浓淡。百叶窗的倾斜角度在平滑的石膏墙面上投下细腻阴影,为立面赋予韵律感与宁静气质。这一斜向设计呼应了新建社区功能翼楼的斜墙,将不同时代与建造方式的建筑在视觉上融为一体。

© Tatsuya Tabii

© Tatsuya Tabii
Private life and public life intersect here; Indoor and outdoor spaces, as well as personal and public areas, are interconnected through gradual transitions rather than rigid boundaries. Its spatial composition presents a new possibility for architecture - both segmented and coherent. By reconstructing existing structures and embedding new spaces, human activities and time are woven into the architectural texture.
私密生活与公共生活在此交汇;室内与室外、个人空间与公共领域通过渐变过渡而非生硬界限彼此连通。其空间构成展现了建筑的新可能 —— 既分节又连贯。通过重构既有结构并嵌入新空间,人的活动与时间被编织进建筑肌理之中。

© Tatsuya Tabii
Through the two independent and intertwined stages of renovation and expansion, this residence has surpassed its original role as a protective shell for the family. It transforms into a gentle tool for deconstruction and reconstruction, reorganizing and weaving the relationships between people, space, and time. Ultimately, this building aspires to go beyond the realm of containers - to become a medium for editing personal lifestyles.
通过修缮与扩建这两个既独立又交织的阶段,这座住宅超越了其作为家庭保护外壳的原有角色。它化身为一种温和的解构与重构工具,重新梳理并编织起人与人、空间与时间之间的关系。最终,这座建筑渴望超越容器的范畴 —— 成为一种编辑个人生活方式的媒介。

© Tatsuya Tabii