J Residential/Left to Right Architectural Studio
J 住宅 / 左通右达建筑工作室
空间与自然的诗意对话: 项目最令人印象深刻的在于其对“花园空间”的理解和实践。设计巧妙地利用了场地高差,将建筑与周围环境融为一体,创造了多维度的花园体验。室内外空间的界限被模糊,阳光、植物、景观无缝渗透,营造出一种“居于山水之间”的诗意氛围。悬浮的客厅、内向生长的植物、连接内外花园的餐厅等,都体现了设计对空间层次和人与自然关系的深刻思考。这种设计不仅满足了居住功能,更唤醒了人们内心对自然的向往和对精神家园的追寻,展现出设计师对生活美学的独特理解。
结构与功能的巧妙融合: 建筑师在改造旧有房屋的基础上,通过结构调整,实现了对空间功能的重新定义。悬浮客厅的设计是整个项目的点睛之笔,它不仅提供了开阔的视野,也为室内花园创造了条件,实现了建筑的通透性和采光最大化。开放式厨房的设计,以及贯穿整个住宅的视线穿透,都体现了对家庭成员互动和生活方式的细致考量。这种功能与形式的完美结合,使得J Residence不仅是一个居住场所,更是一个能够促进交流、激发灵感的活力空间。结构不再是限制,而是成为塑造独特空间体验的工具。
材料与细节的精湛运用: 项目对材料和细节的处理体现了建筑师对品质的极致追求。设计保留了场地原有的元素,如红砖外墙、斑驳的金属表面,这些都承载着历史的记忆,与新建筑形成对话。同时,通过精心的空间布局、光影设计以及植物的巧妙搭配,营造出一种内外呼应、层次丰富的视觉效果。材料的运用不仅考虑了视觉效果,更注重了使用的舒适性和耐久性。这些细节上的精雕细琢,使得J Residence在整体上呈现出一种简约而精致、内敛而隽永的风格,也使得项目能够历久弥新,经受住时间的考验。

© 朱雨濛

© 朱雨濛
From the architect. J Residence is located in the western part of Beijing, with the entire building situated at a high point in the mountains, facing Xiangshan to the north and Yuquan Mountain to the east, offering a wide range of scenery and views. The homeowner has lived overseas for over a decade. The flowers and trees planted in the courtyard are still lush, and together with the long neglected weeds, red brick exterior walls, and mottled metal surfaces of the sunroom, they solidify fragments of that era.
来自建筑师。J 住宅位于北京西部,整栋建筑坐落在山地高处,北靠香山、东望玉泉山,拥有开阔的风景和视野。住宅主人十几年间旅居海外。院中当年栽下的花木依然葱郁,与久未打理杂生的野草、红砖外墙、阳光房斑驳的金属表面一起,凝固了那个时代的片段。

© 朱雨濛
The house on the original site is located on the north side of the garden, and the disproportionate central hall inside the building occupies most of the area, compressing the bedroom and living space on the second and third floors. The prominent balcony is wrapped in a sunroom, blocking a lot of light; The excessive depth trapped the above ground area of the house in shadow.
原有场地的房屋位于花园北侧,建筑内部不成比例的中厅占据了大部分面积,压迫了二层和三层的卧室和起居空间。突出的阳台被包裹成的阳光房,遮挡了大量的光线;过大的进深让房屋地上面积被困在阴影之中。

© 朱雨濛
The structure of the host family has changed over the past decade, and the children have grown up to be independent. The functional layout of the old house is no longer suitable for the current lifestyle. A family's daily life is almost scattered across different countries, and several generations also yearn for a state of reunion where fallen leaves return to their roots. The owner therefore yearns for a space that is both well lit and enclosed, and relatively independent, while also yearning for the romantic scene of "living surrounded by mountains and having an inch of garden".
主人家庭结构十年间发生了变化,孩子们都已长大独立,旧屋的功能格局已不适配现在的生活方式。一家人日常几乎分散在不同国家生活,而几代人之间也向往落叶归根的聚合状态。主人因此渴求既有充足光线和包裹感,又能相对独立的空间,同时也憧憬“居群山环抱之中,拥有一寸花园”的浪漫图景。

© 朱雨濛

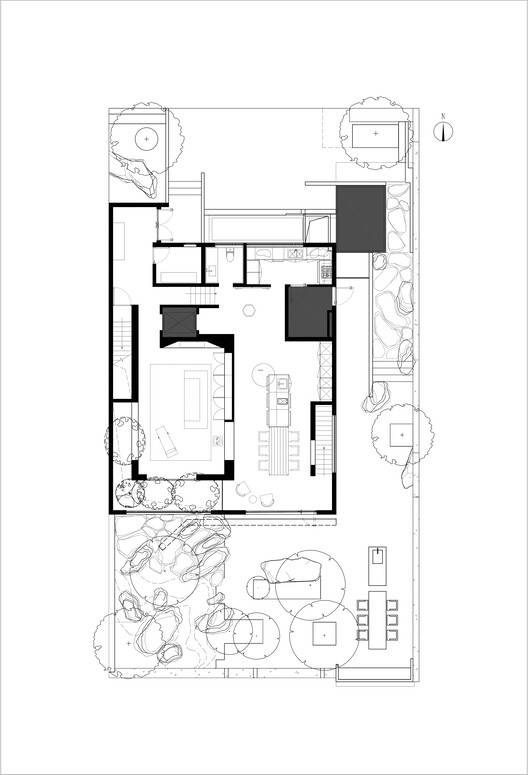
一层平面图

© 朱雨濛
The north side of the site is adjacent to a road, with a maximum elevation difference of 1.5 meters from the south side. The lateral garden on the east side slopes down more than half a meter from north to south. In terms of planning, the overall strategy focuses on utilizing this subtle but continuous variation in elevation, corresponding to different shapes, scales, light and shadow, and people's dynamic needs of life, to create differentiated spaces and reflect new forms into new spaces.
场地北侧临路,与南侧标高最大高差 1.5 米。东边的侧向花园,又由北至南缓坡下降了半米有余。规划上,整体策略着重利用这种细微但连续的高差变化,对应不同形状,尺度,光影和人们的生活动态需求,创造差异化的空间,将新的形态反映到新的空间中。

© 朱雨濛
On the facade, in addition to prominent balconies and sunrooms, a coherent sense of scale is formed by enlarging or reducing the size of the original house and resetting the height of each floor slab. Sunlight flows from the skylight window into the double layered high entrance, then through the low hallway, and reaches the living room space enclosed by inward looking plants. After structural adjustment, the box that accommodates the living room is suspended in the center of the building, facing the dining room and the basement garden on the basement level that are half a meter away from it. The concrete structural beam is flipped up to form an indoor garden column free large space at the bottom of the suspended living room, allowing sunlight to flow naturally. As various plants become increasingly prosperous, the suspended box in the living room will be wrapped in tree branches, echoing the outdoor courtyard flowers and trees inside and outside, surrounded by greenery and overlapping layers. The tall atrium on the second floor leads to a passage for three bedrooms.
立面上去除了突出的阳台和阳光房,通过扩大或者缩小原始房屋的大小、重置各层楼板的高度形成连贯的尺度感。阳光从天顶开窗流入双层通高的玄关,再经过低矮的过厅,抵达被内向植物围合的客厅空间。经过结构的调整,容纳客厅的盒子被悬挑在建筑的正中心,望向与它错动半米的餐厅和负一层地下花园。混凝土结构梁上翻,形成在悬浮客厅底部的室内花园无柱大空间,让阳光自然流淌。随着各类植物日渐繁盛,客厅的悬浮盒子将会被树梢包裹,与室外庭院花木内外呼应,绿意环绕,重重叠叠。挑高的中庭在二层是去向三间卧室的通道。

© 朱雨濛

© 朱雨濛
The corridor surrounds a suspended living room, and the movement of space makes the paths to each bedroom different. During the return journey, the line of sight can penetrate both indoors and outdoors, looking back at the courtyard wrapped in double green. This series of spatial adjustments also includes an open kitchen facing the living room and indoor/outdoor gardens for the culinary savvy hostess at home. The female host's meal preparation and the male host's reading do not disturb each other, but communication can take place through silent gaze interaction.
走廊环绕着悬浮的客厅,空间的错动让抵达每间卧室的路径都不尽相同。回游之间,视线可以穿透室内和室外,回望这双层绿色包裹的庭中之庭。这一系列的空间调整,同时为精于厨艺的家中女主人设置了面向客厅和室内外花园的开放厨房。女主人的备餐与男主人的阅读各不打扰,交流却可以在无声的视线中交互中进行。

© 朱雨濛

© 朱雨濛
The restaurant is connected to an outdoor garden in terms of space and materials, and the plants planted back then are still in place. Guided by the rocks, the east garden serves as an independent entrance, allowing visitors to directly reach the overlapping interior space from the courtyard wrapped in distant mountains.
餐厅在空间和材料上都连接了户外的花园,当年种下的植物依旧安守在原位。在山石的引导下,东侧花园作为独立的入口,让访客可以从远山包裹的庭院直接抵达空间重叠的室内。

© 朱雨濛

分析图

© 朱雨濛
This is a multi-dimensional overlapping garden space: sunlight flows into indoor, outdoor, and semi outdoor spaces along people's activity paths, until it fills every corner. These corners provide rich spatial information due to different situations. On a physical or spiritual level, everyone has their own garden. Perhaps it's the overlap between indoors and outdoors, or perhaps it's the overlap between reality and ideals. The important thing is that they do not lead to the outside, but to the dwelling place of inner memory, spirit, and soul.
这是一个多维度重叠的花园空间:阳光随着人的活动路径流入室内,室外,半室外,直至充满各角落。这些角落因为不同的处境,提供了丰富的空间信息。在物理层面或是精神层面上,每个人都拥有属于自己的花园。也许是室内和室外的重叠,也许是现实与理想的重叠。重要的是,他们并不通向外部,而是通往内心记忆、精神和灵魂的栖身之所。

© 朱雨濛