Florida House/Di Marco - Robles arquitectos
佛罗里达之家 / Di Marco - Robles arquitectos
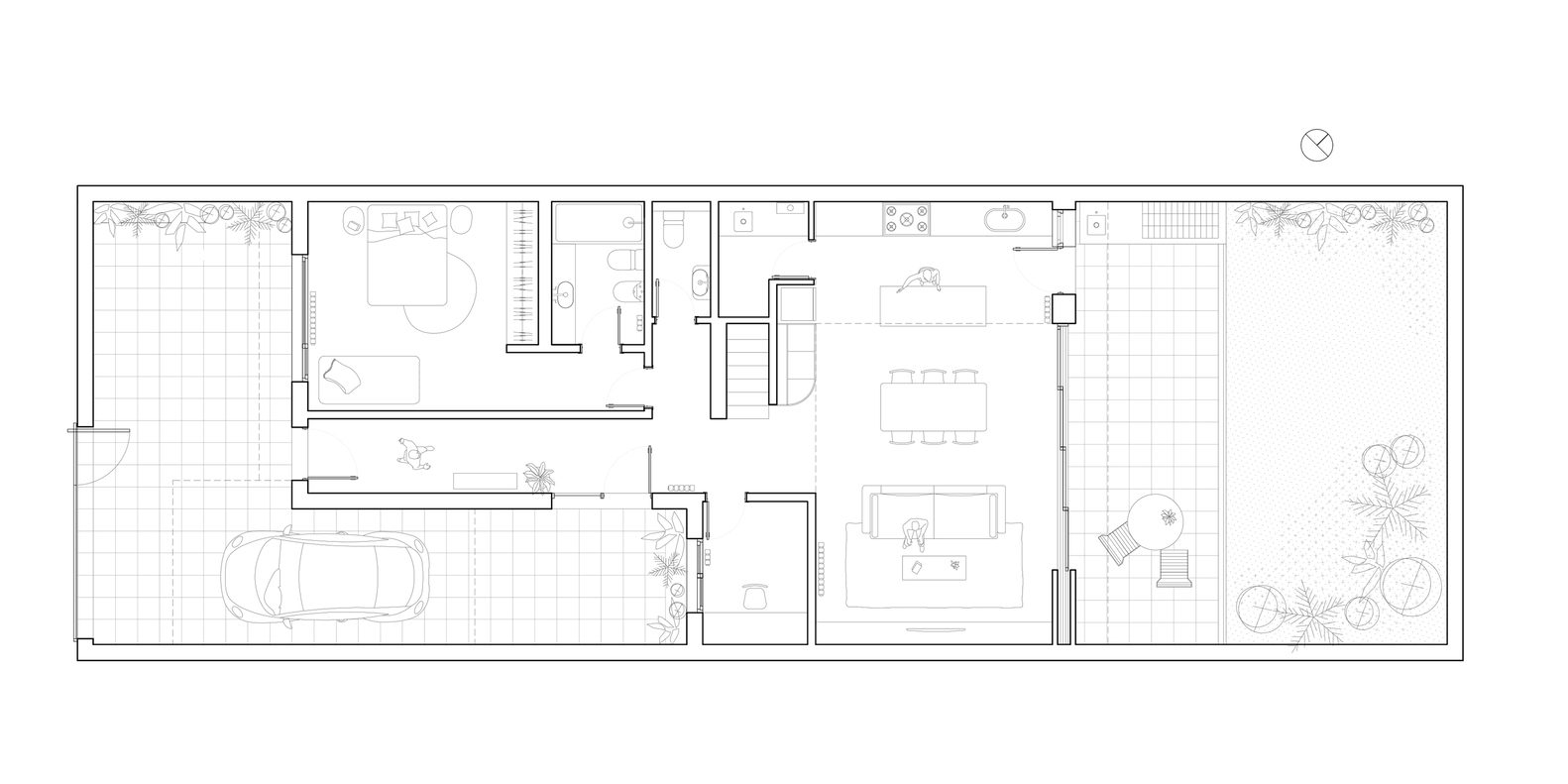
空间再生的精妙策略:该项目最引人入胜之处在于其对原有建筑结构的巧妙改造,尤其体现在对空间功能的重新定义上。设计师并未拘泥于传统的结构和布局,而是通过结构加固和移除多余元素,巧妙地在不改变外观的前提下,彻底颠覆了内部空间的使用逻辑。通过调整楼梯位置、增设入口和优化动线,项目成功地将原本封闭、缺乏层次感且与外部环境脱节的内部空间,转化为一个开放、流畅、充满活力的居住环境。这种对旧有结构的尊重与创新,体现了建筑师对空间本质的深刻理解和对居住者需求的精准把握。
内外环境的和谐统一:项目在设计中尤为注重室内外空间的融合,这既体现在对原有殖民风格的瓦片屋顶的保留,也体现在对室内外视线通透性的极致追求上。建筑师通过在房屋后部设置大窗户,将社交空间无缝连接到花园,实现了室内外空间的互动和延伸。此外,建筑正面设计的白色墙体,配以隐藏式滑动门,不仅恢复了建筑与周围环境的和谐,更在视觉上创造了开放与私密的巧妙平衡。这种对内与对外、传统与现代的融合,使得Florida House在保留地域特色的同时,展现出独特的现代魅力。
材料与细节的精致呈现:项目的成功离不开对建筑材料和细节的精心把控。无论是对原有结构进行加固改造,还是对新增元素的精心设计,都体现了建筑师对建筑品质的极致追求。白色墙体和隐藏式滑动门的设计,不仅提升了建筑的整体美感,也赋予了建筑更多的现代感。通过对材料的合理运用和细节的精雕细琢,设计师成功地将一个原本布局不合理的旧建筑,改造成为一个既保留了历史文化底蕴,又满足现代生活需求的居住空间。这种对品质的执着追求,使得项目在整体上达到了一个卓越的高度。

© Bruto Studio

© Bruto Studio

© Bruto Studio
The project is located in a community in Florida, in the Vicente L ó pez district, a low-density residential area characterized by detached cottage style houses with brick walls and tiled roofs. This is a single story detached residential building with setback spaces in both front and back, and attached land.
该项目坐落于佛罗里达(Florida)社区,位于比森特·洛佩斯(Vicente López)区,这是一个低密度住宅区,以带有砖墙和瓦片屋顶的独立式小屋风格房屋为特色。这是一栋单层独栋住宅,前后均设有退台空间,并附带相连的土地。

© Bruto Studio

分析图
This project completely subverts the functionality of the original floor plan layout without changing the surface or appearance of the colonial style tile roof. The original layout of the house was unreasonable, with a series of enclosed spaces lacking a sense of hierarchy, unrelated to the external environment, obstructed internal flow, and poor ventilation in the rooms.
该项目在不改变殖民风格瓦片屋顶的表面或外观的前提下,彻底颠覆了原有平面布局的功能。原先的房屋布局不合理,一系列密闭空间缺乏层次感,与外部环境毫无关联,内部动线受阻,且房间通风不良。

© Bruto Studio

平面图
此次改造聚焦于公共空间与私人空间的重新分配、动线规划的优化、空间环境的整合,以及焕新它们与户外环境的关系。

© Bruto Studio

© Bruto Studio
To support the roof and remove unnecessary structural elements, structural modifications are required. The position of the stairs has been adjusted, and a new entrance has been opened. The space layout is clearly divided and organized through a central corridor, making the entire house seamless. At the back of the house, a large window seamlessly integrates the social space with the garden, bringing the project to a successful conclusion.
为支撑屋顶并移除不必要的结构元素,需要进行结构改造。楼梯的位置被调整,同时新开了一个入口,通过一条中央走廊清晰划分并有序组织了空间布局,使整个房子浑然一体。在房子的后部,一扇大窗户将社交空间与花园融为一体,为项目画上了圆满的句号。

© Bruto Studio
Finally, on the front of the building, a white wall with hidden sliding doors restores the contour lines that echo the neighboring houses, while allowing people to glimpse the ancient tiled roof above, indicating a harmonious blend between the modern language used in this renovation and the preservation of surrounding environmental features.
最后,在建筑正面,一面带有隐藏式滑动门的白色墙体恢复了与邻近房屋相呼应的轮廓线条,同时让人得以一窥上方古老的瓦片屋顶,预示着此次改造所采用的现代语言与周边环境特色元素的保留之间的和谐交融。

© Bruto Studio