Malvern Residence/Studio Ceravolo
马尔文住宅 / Studio Ceravolo
保留与革新的平衡: Malvern Residence 项目最引人注目的亮点在于其对原有联邦风格建筑的尊重与创新。设计师巧妙地保留了场地原有的独特特征,如均衡的空间比例和精致的细节,同时通过对材料、色彩和空间层次的精心运用,赋予了建筑新的生命力。这种“修旧如新”的设计理念,不仅是对历史文脉的尊重,更是对客户生活方式转变的积极回应。项目改造并没有破坏原有建筑的灵魂,反而在延续历史的基础上,注入了现代生活的需求和审美,实现了建筑与居住者的和谐共生。
空间叙事与感官体验: 项目的核心在于创造一种与日常生活节奏同步的“仪式感”。设计师将建筑空间分解为一系列相互关联又相对独立的区域,每个区域都承载着特定的功能和情感。例如,健身房和洗衣区与葱郁的绿地相连,步入式淋浴间沐浴在阳光之中,起居室则被打造成宁静的休憩之所。这种精心的空间布局和细节设计,旨在提升居住者的感官体验,营造出一种舒适、放松和充满仪式感的氛围。这种以人为本的设计理念,体现了建筑师对客户生活方式的深刻理解和对空间叙事的独特见解。
材质与色彩的精妙运用: Malvern Residence 项目的另一大亮点是其对材料和色彩的巧妙运用。设计师精心挑选了各种饰面,如暖色调的纹理、柔和的黄色瓷砖、精美的玻璃马赛克等,营造出宁静祥和的氛围。色彩的搭配也别具一格,通过色块地毯、对比鲜明的蓝色镜子等元素,为每个空间赋予了独特的色调,并巧妙地在相邻区域之间建立色彩联系,增强了空间的凝聚力。这种对材质和色彩的精细把控,不仅提升了项目的视觉美感,更赋予了建筑一种独特的个性和情感,使其成为一个充满魅力和生命力的居住空间。

© Sean Fennessy

© Sean Fennessy
The Malvern Residence is a renovation and interior design project that preserves the unique features of the site - balanced space, exquisite federal details, and a peaceful and mature north facing garden. The residence is located on a beautiful, moderately sized and tree lined street in Malvern, Melbourne, Australia. The area is renowned for its well preserved single family residential buildings from the federal era.
马尔文住宅是一个改建和室内设计项目,它保留了场地现有的独特特征——均衡的空间、精致的联邦式细节,以及一个宁静而成熟的朝北花园。住宅位于澳大利亚墨尔本马尔文一条规模适中、绿树成荫的美丽街道上。该地区以其保存完好的联邦时期独栋住宅建筑而闻名。

© Sean Fennessy
The task of Studio Ceravolo is to reimagine the client's long-term residential home, making it a space that intuitively aligns with the client's new chapter in life. As their adult children move out, these spaces need to adapt to a luxurious, peaceful, and sensory lifestyle.
Studio Ceravolo 的任务是重新构想客户长期居住的家庭住宅,使其成为一个能够直观地与客户人生新篇章相契合的空间。随着他们成年子女的搬离,这些空间需要适应奢华、宁静和感官的生活方式。

© Sean Fennessy

© Sean Fennessy

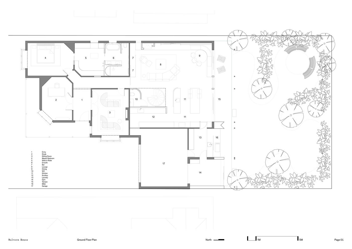
Ground Floor Plan

© Sean Fennessy

© Sean Fennessy

© Sean Fennessy
The Malvern Residence emphasizes a sense of ceremony and daily activities, with a series of spaces synchronized with the owner's daily life rhythm, harmonizing its traditional essence in a relaxed form, and cultivating intuitive and necessary connections with the outside world.
马尔文住宅注重仪式感和日常活动,其一系列空间与主人的日常生活节奏同步,以轻松的形式协调其传统精髓,并培养与外界的直观和必要的联系。

© Sean Fennessy

© Sean Fennessy
The traditional front has been stripped away, revealing unique federal style details and impeccable proportions, which are reinforced through the layered use of colors and the sense of hierarchy of physical elements - decorative lighting, customized fine woodworking products, and soft movable furniture. The rear connected to the garden is experienced as a series of independent yet interconnected areas, where the intricate woodworking elements provide suggestive functionality and sufficient spatial definition in a larger and more cohesive spatial environment connected to the outside. This design cleverly enhances the experience of daily life: the gym and laundry area overlook lush green spaces, the walk-in shower room is filled with sunlight through a 6-meter-high skylight above, and the front living room is dedicated to creating a peaceful sanctuary, a place for stress relief, contemplation, and gatherings.
传统的正面被剥离,展现出奇特的联邦风格细节和无可挑剔的比例,这些特征通过色彩的层次运用和实体元素的层次感——装饰照明、定制细木工制品和柔软的可移动家具——得以强化。与花园相连的后部被体验为一系列独立而又相互连接的区域,细木工元素在与外部相连的更大、更具凝聚力的空间环境中,提供了暗示性的功能和足够的空间定义。该设计巧妙地提升了日常生活的体验:健身房和洗衣区俯瞰着郁郁葱葱的绿地,步入式淋浴间透过上方6米高的天窗洒满阳光,前部的起居室致力于营造宁静的庇护所,是减压、沉思和聚会的场所。

© Sean Fennessy

© Sean Fennessy
Taking full advantage of the seasonal visual effects of the garden, new full height glass and pavilions are integrated into the north facade, following passive solar design principles while creating a boundary space between the interior and exterior.
充分利用花园随季节变化的视觉效果,新的全高玻璃和凉亭被融入北立面,遵循被动式太阳能设计原则,同时在内部和外部之间打造一个界限空间。

© Sean Fennessy

© Sean Fennessy
The carefully selected finishes enhance the experiential level of the project. The warm tones and textures create a peaceful and tranquil environment, and the use of colors is also unique - soft yellow tile benches, exquisite glass mosaic dressing rooms, nutty glossy ceilings and contrasting blue mirrors, as well as color block carpets scattered throughout, paired with soft green, pink, and gold. Each space evolves into a unique color tone, and there are potential color connections between adjacent areas, creating a sense of cohesion.
精心挑选的饰面增添了项目的体验层次。暖色调和纹理营造出宁静祥和的环境,色彩的运用也别具一格——柔和的黄色瓷砖长椅、精美的玻璃马赛克化妆间、坚果光泽的天花板和对比鲜明的蓝色镜子,以及遍布各处的色块地毯,搭配柔和的绿色、粉色和金色。每个空间都演变成独特的色调,相邻区域之间也存在着潜在的色彩联系,从而营造出一种凝聚力。

© Sean Fennessy

© Sean Fennessy
The first floor abandons traditional wooden flooring and uses small-sized stone paving to create a unified cohesion based on materials, and brings a grounded feeling to residents from the moment they wake up. The final completed project is a home that easily enhances daily life experience, a cohesive, calming, and ceremonial home.
一楼摒弃了传统的木地板,采用小尺寸的石材铺装,营造出一种以材质为基础的统一凝聚力,并从居住者醒来的那一刻起就为他们带来一种接地气的感觉。最终完成的项目是一个轻松提升日常生活体验的家,一个凝聚力强、令人平静、充满仪式感的家。

© Sean Fennessy