Valencia Old Ice Shelf Renovation/Homu Arquitectos
瓦伦西亚旧冰库改造 / Homu Arquitectos
历史与现代的和谐统一: 这次瓦伦西亚旧冰库的改造项目,体现了建筑师对历史文脉的尊重和对现代生活方式的理解。项目最引人注目的亮点在于对原有建筑结构的保留与再利用。建筑师巧妙地将旧冰库的原始元素,如裸露的砖墙、木梁等,与现代设计语言相结合。这种手法不仅保留了建筑的历史印记,也赋予了空间独特的韵味。通过对原有材料的细致处理,建筑师成功地创造了一种既复古又现代的居住体验,实现了历史与现代的和谐统一,为旧建筑的改造提供了极具参考价值的范例。
空间布局的创新与功能性: 项目在空间布局上展现了极高的设计水准。建筑师将原有冰库的空间巧妙地划分为两个独立的旅游公寓,满足了不同住户的需求。底层公寓拥有私密的庭院和泳池,营造出地中海式的休闲氛围;而上层公寓则利用阁楼空间,创造出采光充足、视野开阔的居住环境。值得一提的是,浴室区域被巧妙地设计成空间的中心枢纽,连接了居住空间的不同功能区域,在视觉上保持了空间的连贯性。这种创新的布局,不仅提升了空间的功能性,也丰富了居住体验,体现了建筑师对空间利用的独到见解。
材料与光线的精湛运用: Homu Arquitectos 在材料和光线的运用上展现了高超的技艺。项目大量采用了原始材料,如砖、石和木材,并以其本真的状态呈现,与新的设计元素形成了有趣的对话。通过间接照明的设计,建筑师营造出温馨舒适的氛围,突出了空间的质感和细节。此外,项目对自然光的利用也达到了极致,阁楼空间的大面积开窗,不仅保证了室内充足的采光,也为居住者提供了开阔的视野。这种对材料、光线和空间的巧妙结合,使得项目在视觉上具有极强的吸引力,同时也为居住者带来了舒适和愉悦的感受。

© Jorge Peiró

© Jorge Peiró

© Jorge Peiró
Homu Arquitectos has transformed a 243 square meter old ice storage facility into two tourist apartments. This apartment is located in the historic Cabanyal seaside district of Valencia, injecting new vitality into this former ice rink and transforming it into two tourist accommodations that blend history, identity, and contemporary design.
Homu Arquitectos 将一座 243 平方米的旧冰库改造成两套旅游公寓。这座公寓位于瓦伦西亚历史悠久的卡巴尼亚尔海滨区,为这座曾经的冰库注入了新的活力,将其改造成两座融合了历史、身份和当代设计的旅游住宿。

© Jorge Peiró

© Jorge Peiró
The apartment fully embodies the characteristics of the community. Through this intervention, the studio restored the original materials, textures, and elements, giving them new life while highlighting the value of local architecture. The restoration carried out by Homu Arquitectos is based on the experience accumulated in architectural practice, where the original features and essence of the building are carefully protected.
公寓充分体现了该社区的特色。 通过这种干预,工作室恢复了原始材料、纹理和元素,赋予它们新的生命,同时突出了当地建筑的价值。Homu Arquitectos 进行的修复源于建筑实践中积累的经验,其中建筑物的原始特征和本质得到了精心保护。

© Jorge Peiró
In this project, the design team retained the distinctive elements of the urban structure of El Cabanyar. Intervention eliminates unnecessary details, reorganizes the space to adapt to new needs while maintaining its unique characteristics. The original facade has been restored, and the design team has also retained the original independent entrance, which is a typical feature of the community's architectural imprint.
在该项目中,设计团队保留了埃尔卡巴尼亚尔城市结构的特色元素。 干预消除了多余的细节,重新组织空间,使其适应新的需求,同时又不失其特色。 原始立面得到复,此外,设计团队也保留了原有的独立入口,这个入口是该社区建筑印记的典型特征。

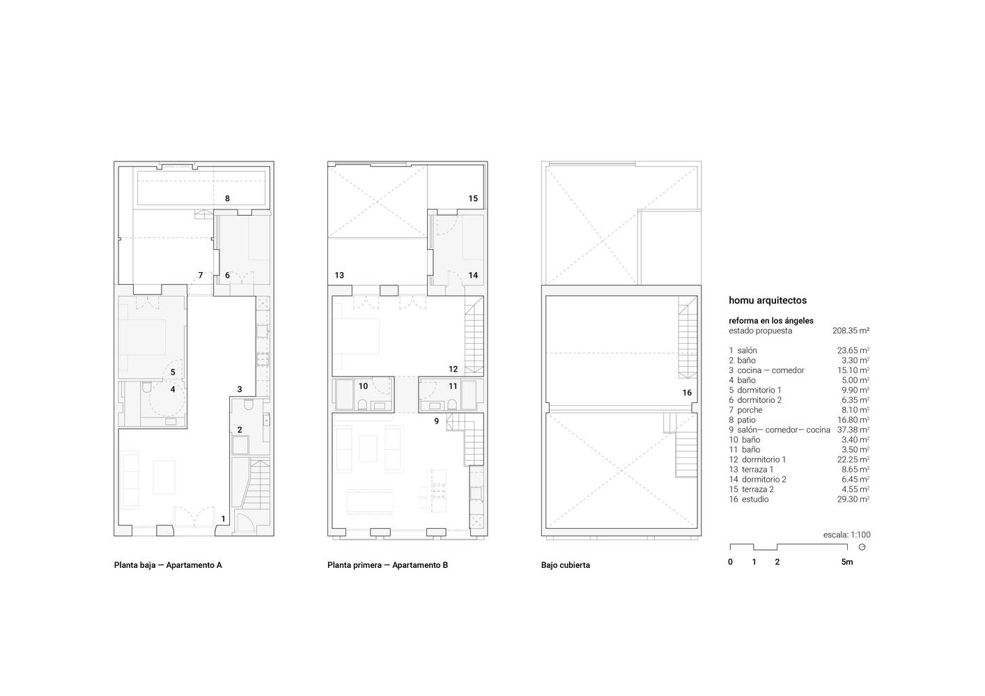
平面图

平面图
Homu Arquitectos advocates highlighting existing structures and materials. Bare bricks, stones, and wood appear in a pure state, establishing a dialogue with new interventions. In addition, the design team enhances the warmth of the space through indirect lighting.
Homu Arquitectos 主张突出现有的结构和材料。 裸露的砖块、石头和木材以纯粹的状态出现,与新的干预建立了对话。 此外,设计团队通过间接照明来增强空间的温暖感。

© Jorge Peiró

© Jorge Peiró
In terms of layout, the design team clearly divided the project into two residential areas. The ground floor includes two bedrooms, two bathrooms, a Mediterranean style terrace, and a private swimming pool. Upstairs, another apartment with a separate entrance has two terraces and a spacious attic space, with a ceiling nearly 7 meters high, where natural lighting and ventilation play a key role. Primitive structural elements, such as wooden beams, coexist with Mediterranean style interior schemes and warm, enthusiastic atmospheres.
在布局方面,设计团队将该项目明确区分为两个住宅区。 底层包括两间卧室、两间浴室、一个地中海式露台和一个私人游泳池。 在楼上,另一套有独立入口的公寓有两个露台和一个宽敞的阁楼空间,天花板近 7 米高,自然采光和通风在其中起着关键作用。 原始的结构元素,如木梁,与地中海风格的室内方案和温暖、热情的氛围共存。

© Jorge Peiró
The bathroom area becomes the pillar of the space, serving as a hub between the daytime area and the bedroom. Despite their large structural scale, their design aims to cleverly integrate without disrupting the fluidity and visual language of the apartment.
浴室区域成为空间的支柱,作为日间区域和卧室之间的枢纽。 尽管它们的结构规模很大,但它们的设计旨在巧妙地整合,而不破坏公寓的流动性和视觉语言。

© Jorge Peiró
最终,原有建筑的原始元素得到恢复,设计团队通过结合当代解决方案,得出了一个使过去和现在完美和谐地共存的方案。

© Jorge Peiró
© Jorge Peiró