Hirano Cottage/Fujiwara Muro Architects
平野小屋 / FujiwaraMuro Architects
空间利用与采光策略:这座位于大阪市住宅区的平野小屋项目,充分展现了建筑师对有限空间和特殊场地条件的巧妙应对。项目选址于一块“旗杆地”,周围被建筑物环绕,视野受限。建筑师敏锐地捕捉到“抬头可见天空”这一特点,将天窗作为核心设计元素,围绕其构建空间布局。这种策略不仅解决了采光问题,还在视觉上拓展了空间,赋予了居住者独特的体验。通过天窗引入自然光,营造出丰富的光影效果,使狭小的空间显得更加通透、舒适,体现了建筑师对光线运用和空间叙事的深刻理解。
室内布局的创新与活力:该项目打破了传统住宅的单调感,设计团队通过设置不同楼层和趣味性的角落,模拟自然地形,营造出开放、自由的氛围。这种设计理念响应了客户对于“紧凑而充满活力”居住空间的需求。建筑师巧妙地运用了高差变化,模糊了室内空间的界限,创造出多层次的居住体验,增强了空间的互动性。这种设计手法也使得每个家庭成员都能找到属于自己的私密角落,同时促进了家庭成员之间的交流。这种对于空间多样性和居住体验的关注,是该项目的一大亮点。
设计过程的协作与创新:平野小屋的设计并非一蹴而就,而是通过与客户的深入沟通和反复推敲,将客户对于“居住乐趣”的期望转化为现实。建筑师将客户对于非规则地形的想象转化为设计图纸,最终实现了独特的空间形态。这展现了建筑师在概念转化、技术实现方面的专业能力,更体现了设计团队以人为本的设计理念。项目强调了设计过程中的协作,充分尊重客户的需求,并将这些需求融入到设计中,从而创造出一个真正为使用者量身定制的、充满惊喜的居住空间,展现了建筑设计的价值。

© Toshiyuki Yano

© Toshiyuki Yano
The location is in a residential area of Osaka City. The customer purchased a piece of land and divided it into multiple plots for building ready-made houses, and the project immediately began. The land they bought is a flagpole plot.
该地点位于大阪市的一个住宅区。 客户购买了一块土地,将其划分为多个地块,用于建造现成房屋,项目随即开始。 他们买下的那块地是一块旗杆地。

© Toshiyuki Yano

© Toshiyuki Yano
客户一家五口希望房子足够紧凑,但又有足够的空间设置私人房间,满足基本的居住需求,同时还要富有活力和独特性。

© Toshiyuki Yano

© Toshiyuki Yano
The site is surrounded by buildings on all sides, making it difficult to see any scenery from the windows on the exterior walls. However, looking up, people can see the sky. Therefore, the design team first created a skylight and then conceptualized a composition around the light from the skylight.
该场地四面环绕着建筑物,因此很难从外墙的窗户看到任何景色。 然而,抬头仰望,人们可以看到天空。 因此,设计团队首先创造了一个天窗,然后围绕天窗的光线构思了一个构图。

© Toshiyuki Yano

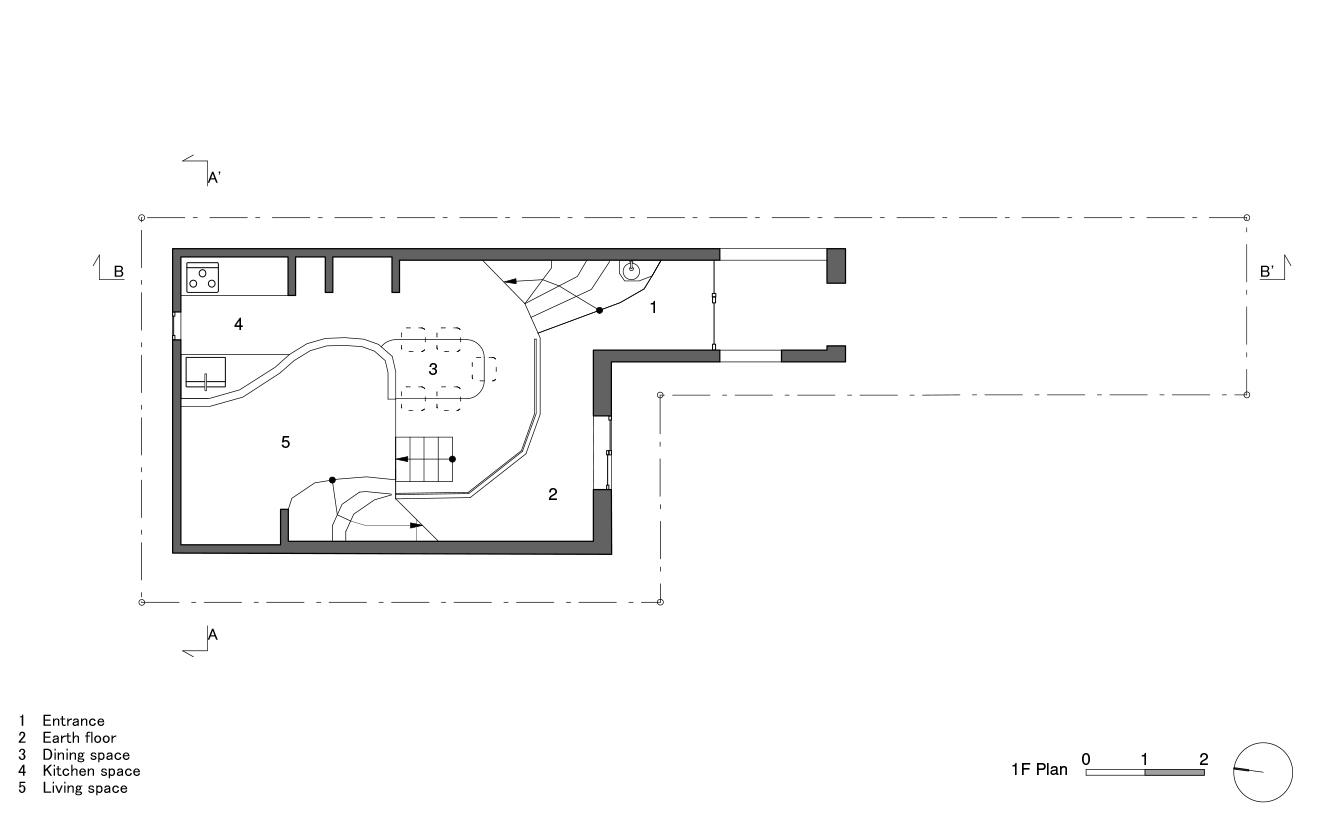
一层平面图

© Toshiyuki Yano
In order to break the traditional feeling of residential buildings, the design team first set up different floors and created various interesting corners, making people feel like they are sitting on natural terrain, thus creating an open and free atmosphere.
为了打破传统住宅的感觉,设计团队首先设置了不同的楼层,并创造了各种有趣的角落,让人感觉像坐在自然地形之上,从而营造了一种开放自由的氛围。

© Toshiyuki Yano

© Toshiyuki Yano

二层平面图
剖面图
© Toshiyuki Yano
Through a series of discussions with the client, the design team transformed irregular terrain like configurations into drawings and ultimately turned them into reality. The design team hopes that this space can provide unexpected accommodation fun for this family.
通过与客户的一系列讨论,设计团队将类似地形的非规则配置转化为图纸,最终将其变为现实。 设计团队希望这个空间能够为这个家庭提供意想不到的住宿乐趣。
© Toshiyuki Yano