Winnipeg Pumping Station Renovation Project/5468796 Architecture
温尼伯抽水站改造项目 / 5468796 Architecture
项目亮点:创新与可持续的结合:该项目最引人注目的亮点在于其对历史建筑的保护与创新设计理念的完美结合。设计师通过巧妙利用原有门式起重机的承载能力,悬挂“浮动地板”这一创新举措,最大程度地保留了泵房的工业遗址特征。同时,项目在狭长地带建造五层住宅楼,并结合更宽敞的公寓楼,实现了经济上的可行性。更重要的是,项目的墙体设计采用了钢制立柱和加固杆,不仅降低了玻璃厚度,加速了施工进程,还减少了碳排放,体现了可持续发展的设计理念。这些创新措施共同促进了建筑的复兴,赋予了项目独特的生命力。
项目精髓:历史文脉与现代生活的交融:该项目的精髓在于其对历史文脉的尊重与对现代生活的积极回应。设计团队巧妙地将新旧建筑进行错位,创造出新的步行路径,尊重了原始泵站的外轮廓,并扩大了底层商业店面,从而加强了新旧建筑之间的联系。同时,项目并未拘泥于传统的住宅设计,而是采用了露天出口和跳停配置,将原本平淡无奇的内部走廊改造成充满活力的外部通道,促进了邻里互动,并创造了对公共空间的共同拥有感。这种设计理念使得历史建筑焕发新生,并为居民带来了全新的生活体验,体现了对城市文脉的尊重与创新精神的完美结合。
项目价值:社区参与与整体性规划的典范:这个项目之所以能够取得成功,还在于其对社区的积极回应和整体性规划。项目获得了广泛社区、邻近公寓大楼以及温尼伯市历史建筑委员会的支持,这充分说明了该项目在社区内的受欢迎程度。设计师通过巧妙的设计手法,将历史建筑与现代住宅相结合,不仅提升了建筑本身的价值,也为周边地区带来了新的活力。项目在规划中,注重了开放空间与公共空间的营造,形成了独特的生活方式。这种多功能、混合用途的开发项目,为城市更新提供了有益的借鉴,也展现了设计师在恶劣环境和经济气候下的创新能力,最终成为一个典范性的复兴项目。

© James Brittain

© James Brittain
The James Avenue pumping station, which has a long history in Winnipeg, Canada, was first built in 1906. It has undergone 14 attempts at revival but all ended in failure and ultimately faced the fate of demolition. However, 5468796 Architecture designed an innovative conceptual plan, accompanied by the development of an economic calculation model, and presented this business proposal to an existing client. This action ultimately led to the preservation and revitalization of the building.
加拿大温尼伯历史悠久的詹姆斯大道抽水站始建于 1906 年,曾历经 14 次复兴尝试却均以失败告终,最终面临拆除的命运。然而,5468796 Architecture 设计了一个创新的概念方案,还配套制定了经济测算模型,并向一位现有客户提出了这一商业提案。这一举动最终促成了该建筑的保留与新生。

© James Brittain
The implementation of this project is due to two key measures: firstly, a "floating floor" was cleverly suspended above the pump room machinery using the load-bearing capacity of the existing gantry crane. Secondly, the architectural proposal was successfully approved for planning and renovation, allowing for the construction of a five story residential building in a narrow strip of land 13 meters deep between the heritage building and the street. This move aims to restore the original industrial street landscape adjacent to the old railway line. In addition, a more spacious apartment building has been constructed at the other end. These residential developments not only make the project economically feasible, but also present a unique historical narrative in this transforming region.
该项目之所以得以实施,得益于两项关键措施:首先,在泵房机械上方,利用原有门式起重机的承载能力,巧妙地悬挂了一个“浮动地板”。其次,建筑提案成功获批规划调改,得以在遗产建筑和街道之间一片13米深的狭长地带,建造了一栋五层住宅楼。此举旨在恢复与旧铁路线相邻的原始工业街道景观。此外,在另一端还建造了一栋更宽敞的公寓楼。这些住宅开发不仅使项目在经济上变得可行,还在这片正在转型的区域中呈现了一种独特的历史叙事。

© James Brittain

© James Brittain
The walls of the project are composed of steel columns and reinforcement rods, which reduce the required glass thickness by half and eliminate the need for skilled installers, thereby accelerating construction progress, reducing costs, and halving the building's hidden carbon emissions. The design language of the two residential buildings is also based on the industrial characteristics of the site. They each stand on columns that extend the grid of the gantry crane structure and create a view towards the historical building. These buildings consist of double-sided long strip apartments and use 100 year old nail laminated timber (NLT) technology as the floor and ceiling structure, which draws inspiration from warehouse buildings commonly found in exchange areas.
项目的墙体由钢制立柱和加固杆构成,这些结构将所需的玻璃厚度减半,并消除了对熟练安装工人的需求,从而加快了施工进度,降低了成本,并将建筑物的隐含碳排放量减少了一半。两座住宅建筑的设计语言也基于场地的工业特色。它们各自矗立在柱子上,这些柱子延伸了龙门起重机结构的网格,并创造了望向历史建筑的视线。这些建筑由双面长条形公寓组成,并采用已有 100 年历史的钉合层压木(NLT)技术作为地板和天花板结构,这一做法借鉴了在交易所地区普遍存在的仓库建筑。

© James Brittain

模型照片

模型照片

© James Brittain
Each residential building is misaligned with the existing building, creating new pedestrian paths that respect the outline of the original pumping station, reference human scale, and expand the lower level commercial storefronts. The overall layout plan emphasizes the connection between the old and new buildings. The accessible passage is located on the path between the facade of the historic building and the entrance of the new residential building. Internally, the moment of compression and expansion presents two outdoor open-air theaters, a public square, and a bridge, which allow residents to circulate between the residential complex and the historic building. The interweaving characteristics of these channels extend the winding streets that define the area and integrate various forms of public spaces as an important component of the project planning scheme.
每座住宅建筑都与现有建筑错位,从而创造了新的步行道,这些步行道尊重了原始泵站的外轮廓,参照了人的尺度,并扩大了底层商业店面。总体布局计划强调了新旧建筑之间的联系。无障碍通道位于历史建筑立面与新住宅入口之间的路径上,而在内部,压缩与扩展的瞬间呈现出两个户外露天剧场、公共广场和桥梁,这些设施让居民能够在住宅楼群与历史建筑之间流通。这些通道的交织特性延伸了定义该区域的蜿蜒街道,并将多种形式的公共空间整合为项目规划方案的重要组成部分。

© James Brittain
The architect abandoned the traditional efficiency goal of multi family residential buildings and adopted open-air exits and skip stop configurations. The originally unremarkable internal corridor has been transformed into a vibrant external passage, which not only promotes interaction between neighbors but also serves as an extension of the suite, creating a sense of shared ownership of the public space. In addition, the open-air staircase provides unobstructed views of the city, rivers, and parks.
建筑师摒弃了传统的多户住宅效率目标,采用了露天出口和跳停配置。原本平淡无奇的内部走廊被改造成了充满活力的外部通道,不仅促进了邻里间的互动,还成为套房的延伸,营造出一种对公共空间共同拥有的感觉。此外,露天楼梯间还提供了无遮挡的城市、河流和公园景观视野。

© James Brittain

模型照片

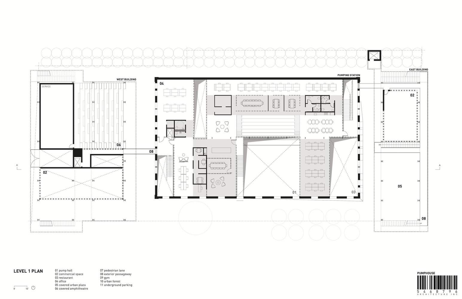
平面图

© James Brittain
This multifunctional, mixed use development project is the first proposal on the site and has received support from the broader community, neighboring apartment buildings, and the Winnipeg Historic Buildings Commission. Through simple and creative problem-solving methods, the original pump station has been revitalized, driving design decisions and achieving a contemporary understanding of the potential for design excellence in the harsh environment and economic climate of grasslands - ultimately forming an exemplary revival project.
这一多功能、混合用途的开发项目是场地上的首个提案,得到了广大社区、邻近的公寓大楼以及温尼伯市历史建筑委员会的支持。通过简单而富有创意的问题解决方法,原始的泵站被赋予了新生,推动了设计决策,并在草原恶劣的环境和经济气候中实现了对设计卓越潜力的当代理解——最终形成了一个典范性的复兴项目。

© James Brittain