The Old Byre Residence/Gianni Botsford Architects
The Old Byre 住宅 / Gianni Botsford Architects
可持续改造与肌理的对话:The Old Byre项目最显著的亮点在于其对原有建筑的巧妙改造和可持续利用。设计师并非一味追求推倒重建,而是尊重并保留了旧谷仓的原始结构,外部采用波纹水泥板包覆,既是对建筑的加固,也赋予了其现代感。内部,设计师最大程度地保留了建筑的“历史感”,这种做法不仅节约了资源,也赋予了项目独特的个性和灵魂。项目巧妙地利用了原有的建筑骨架,并融入新的元素,在尊重历史的基础上实现了创新,是可持续建筑设计理念的良好实践。
空间布局的诗意与功能性:项目在空间布局上展现出独具匠心的诗意与功能性相结合的特点。两栋建筑刻意保持分离,通过过道、庭院等连接,营造出一种独特的空间体验。这种设计不仅创造了丰富的空间层次,也让居住者在日常生活中体验到“步移景异”的乐趣。同时,设计师将生活和工作空间巧妙地结合,为来访的艺术家提供了理想的创作环境。中央庭院、大型玻璃铝门和透明聚碳酸酯外立面的运用,使得室内外空间相互渗透,增强了项目的通透性和互动性,也赋予了建筑一种开放、包容的姿态。
材料运用的质感与叙事:项目的精髓在于对材料的精准运用,以及材料背后所蕴含的叙事性。波纹水泥板、云杉胶合板、混凝土基座等材料的选择,不仅考虑了建筑的实用性,更注重其质感和与环境的融合。建筑师通过“房中之房”的设计,创造了私密与开放并存的居住体验。混凝土基座延伸至室内,成为空间连接的基础,暗示了建筑从动物栖息地到人类居住地的转变。整个项目通过材料、光影和空间的变化,讲述了一个关于改造、延续和创新的故事,充分体现了建筑师对建筑、环境和人的深刻理解。

© Schnepp Renou

© Schnepp Renou
Located on the Oxford Road Ridge in the western part of the Isle of Wight, surrounded by large pastures and close to shipyards and light industrial areas, The Old Byre is a residential building converted from two farm buildings, providing accommodation and workspace for visiting artists.
位于怀特岛西部的牛津路山脊上,周围是大片牧场,靠近船厂和轻工业区,The Old Byre 是由两座农场建筑改造而成的住宅,同时也为来访艺术家提供了住宿和工作空间。

© Schnepp Renou
项目的外部使用波纹水泥板进行包覆,旧谷仓的内部大体保持原貌,优先考虑保留而非拆除旧有结构。

© Schnepp Renou

Site Plan

© Schnepp Renou

© Schnepp Renou
From the outside, The Old Byre residence is no different from other nearby farm buildings. However, from the central courtyard, weeds grow in the gaps between the original surface and drainage ditches, presenting a complex residential facade that connects each living and working space through large glass aluminum doors and transparent polycarbonate facades, providing independent entrances for each area.
从外部看,The Old Byre 住宅与附近的其他农场建筑没有区别。然而,从中央庭院看,原来的地表和排水沟缝隙中生长着杂草,一个复杂的住宅外立面呈现出来,透过大型玻璃铝门与透明的聚碳酸酯外立面,连接着每个生活与工作空间,为每个区域提供了独立的入口。

© Schnepp Renou

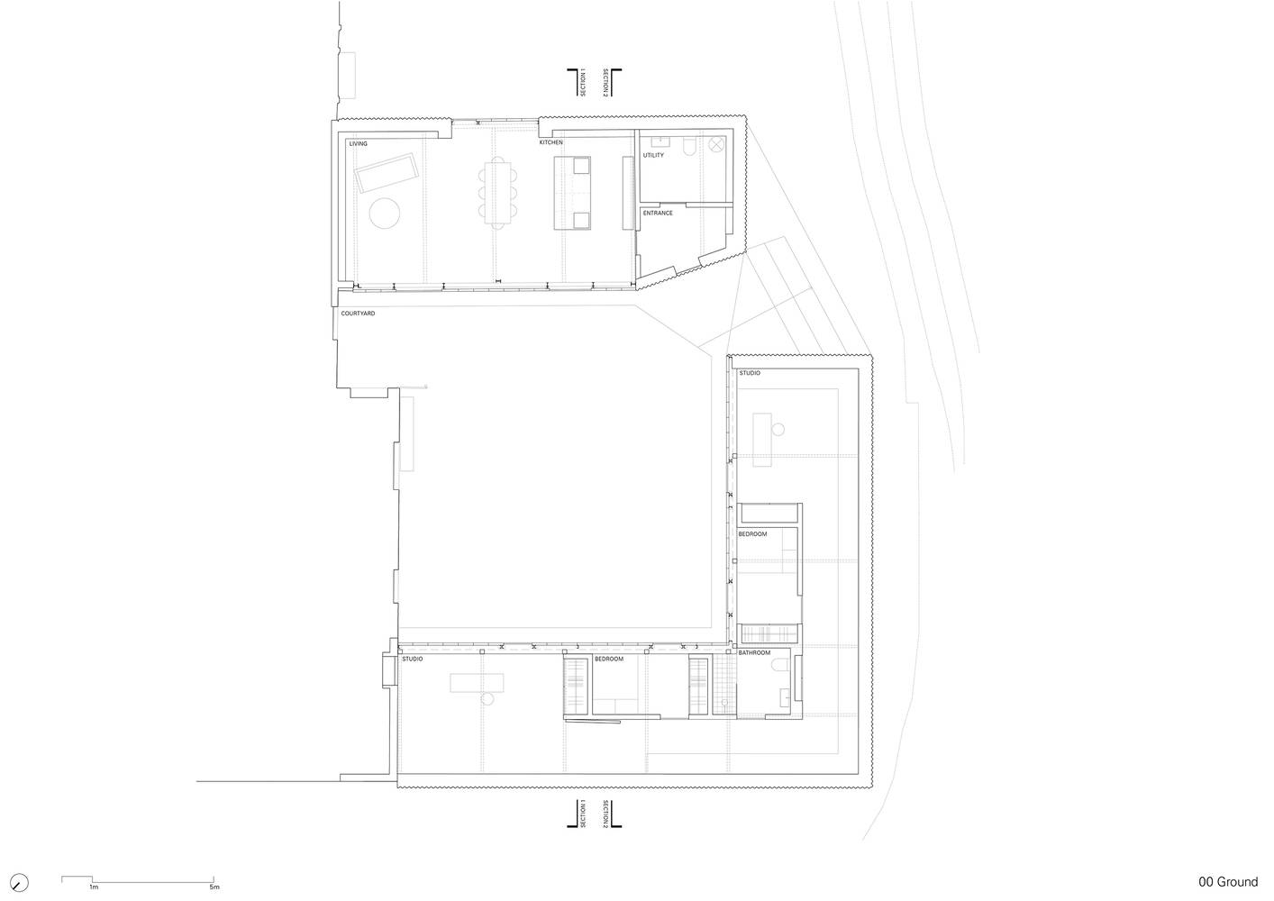
Ground Floor Plan

© Schnepp Renou
The two buildings that make up The Old Byre are intentionally kept unconnected. Daily life intertwines and interacts through corridors between private and social spaces, accompanied by the coolness of the morning, rain, and the heat of summer. At night, the exterior facade is translucent, faintly revealing indoor activities. In the older barn section, a "house within a house" made of spruce plywood was constructed, with a back alley connecting the more private interior spaces it accommodates, which are adjusted and modified through full height doors without traditional handles or locks.
构成 The Old Byre 的两座建筑被有意保持不连接。日常生活通过私密和社交空间之间的过道交织互动,伴随清晨的凉爽、雨水与夏日的炎热。在夜晚,外立面透光,隐隐约约透出室内的活动。在较老的谷仓部分,构建了一座由云杉胶合板建成的“房中之房”,一个后巷连接着它所容纳的更私密的内部空间,这些空间通过没有传统把手或锁的全高门进行调节和调整。

© Schnepp Renou

Section 1

© Schnepp Renou
The concrete pedestal supports the exterior facade, frames the courtyard, and extends into the interior, becoming the foundation for spatial connections during the renovation process. Once inhabited by animals, now it is humans. The design inspiration comes from architectural prototypes such as markets, archives, sounds of work and industry, environmental needs, social interactions, shared food, and care.
混凝土基座支撑着外立面,框定了庭院,并延伸至室内,成为改造过程中空间连接的基础。曾经这里住着动物,而今是人类。设计灵感来源于集市、档案馆、工作与工业的声音、环境的需求、社交、共享食物与关爱等建筑原型。

© Schnepp Renou