2024 Paris Olympics athlete village/TRIPTYQUE+chaixetmorel
2024 年巴黎奥运会运动员村 / TRIPTYQUE + chaixetmorel.
亮点一:可持续设计与适应性建筑:该项目最显著的亮点在于其对可持续发展的深刻实践。建筑师采用了低碳混凝土核心,并辅以木质面板,这种材料的巧妙组合不仅提供了良好的隔热性能,还降低了建筑的碳足迹。更值得称道的是,项目兼顾了主动和被动式可持续措施,例如绿植屋顶、水资源利用以及太阳能发电,这些都极大地提高了能源效率,降低了环境影响。此外,项目的适应性设计也令人印象深刻,它能够从奥运会期间的运动员村迅速转换为社会住宅,体现了对未来社区需求的深刻理解和积极适应。
亮点二:可逆性与混合功能的设计理念:该项目在建筑概念上实现了可逆性和混合使用的完美结合。运动员村在奥运会后将转化为社会住宅,这种转变不仅体现了对建筑生命周期的考量,也反映了对城市可持续发展的深入思考。每个单元都配备了私人阳台,为居民提供了额外的户外空间,促进了与自然环境的连接。更重要的是,项目强调社区融合,通过共享绿色空间和商业区,创造了一个充满活力的混合用途环境,这种设计理念将确保社区在奥运会之后也能保持活力,为居民提供丰富的生活体验。
亮点三:社区融合与合作精神:该项目将社区融合和社会纽带置于核心地位。通过共享绿色空间和商业区域,促进了社区互动。项目完成后,预计将为社区提供约 6000 个居民和 6000 个工作岗位,创造了积极的社会效益。此外,项目的成功离不开合作,Triptyque 与 Solideo 及其他国际建筑公司紧密合作,共同打造了一个具有前瞻性的城市景观。这种合作精神体现在建筑设计、模型调整等各个方面,最终促成了一个更加融合、和谐的社区,为未来的城市发展树立了典范。

© Salem Mostefaoui

© Salem Mostefaoui
From the architect. Triptyque showcased its latest projects at the Saint Denis Olympic and Paralympic Villages in Paris. The design purpose of the Space Building is to provide accommodation for 450 athletes from the United States during the 2024 Summer Olympics, and is a pioneering example of sustainable urban development and adaptive architecture. After the Olympics, the project will be transformed into social housing and become a vibrant new community in the rapidly developing area around the film city.
来自建筑师。Triptyque 展示了其在巴黎圣丹尼奥运村和残奥村的最新项目。宇宙大厦的设计目的是在 2024 年夏季奥运会期间为来自美国的 450 名运动员提供住宿,是可持续城市发展和适应性建筑的开创性典范。 奥运会结束后,该项目将转型为社会住房,成为电影城周围快速发展的地区一个充满活力的新社区的一部分。

© Salem Mostefaoui
Location and Background
The building is located in the center of the Cosmic Ecological Zone and the ZAC of the Olympic and Paralympic Villages, serving as the center of transformation in northern Paris.. In history, the region has been underdeveloped in industry and economy, and is undergoing renewal to become a model of sustainable and inclusive urban living. The main facade of the building was designed by Triptyque, forming a public square with the Film City and the 2024 Paris Olympic Athletes' Village, creating a visually recognizable and captivating urban landmark.
位置和背景
该建筑位于宇宙生态区中心和奥运村和残奥村的 ZAC,是巴黎北部转型的中心。历史上,该地区工业和经济不发达,正在经历更新,成为可持续和包容性城市生活的典范。 该建筑的主立面由 Triptyque 设计,与电影城、2024 年巴黎奥运会运动员村形成一个公共广场,创造了一个视觉上可识别且引人入胜的城市地标。

© Salem Mostefaoui

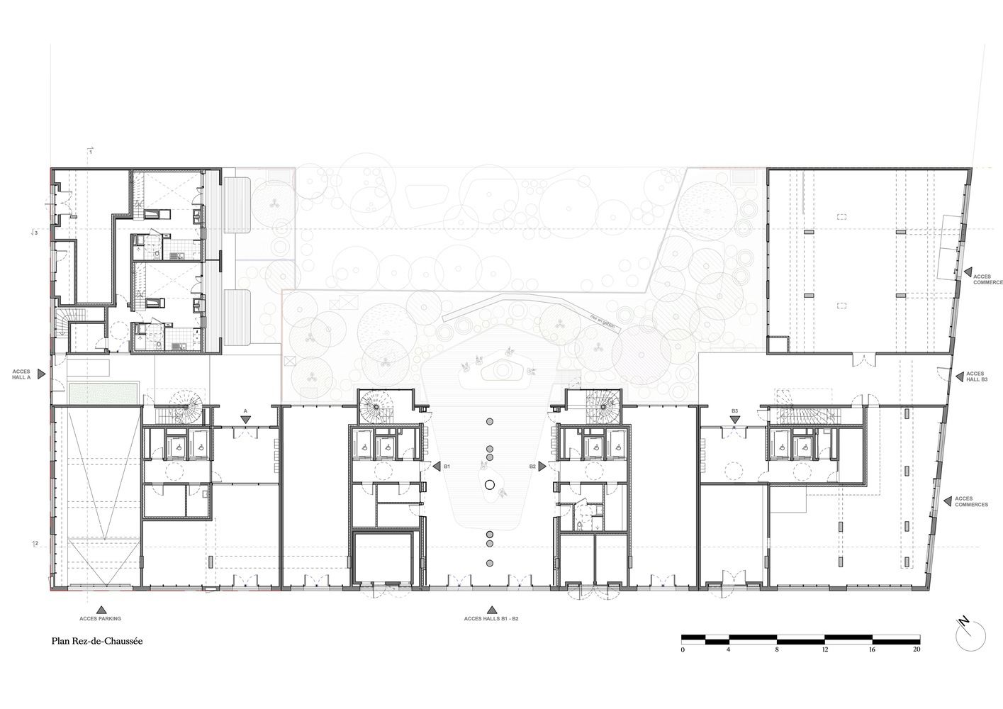
一层平面图
Architectural Concept: Reversibility and Mixed Use Design
The architectural approach of this project addresses two key contemporary challenges: reversibility and mixed use functionality.. The residences are distributed in four exhibition halls, with a layout aimed at optimizing lighting and ventilation. The public area faces outward, while the bedroom is located inside to ensure privacy and thermal comfort. The exoskeleton of the building provides a private balcony for each unit, ranging in size from 5 square meters to 21.7 square meters, creating additional outdoor space for residents to connect with nature and the surrounding environment. Our idea is not to create an athlete village, but to create a new community for the city that promotes change in less popular areas, "said Guillaume Sibaud, co-founder of Triptyque. During the Olympic Games, these 300 rooms will serve as temporary accommodations for the US delegation, with each room measuring approximately 15 square meters. After September, these units will be transformed into 125 apartments, ranging in size from 30 to 105 square meters, for long-term social housing.
建筑概念:可逆性和混合使用设计
该项目的建筑方法解决了当代两个关键的挑战:可逆性和混合使用功能。 住宅分布在四个展馆中,其布局旨在优化光线和通风。 公共区域朝外,卧室位于内部,以确保隐私和热舒适性。 该建筑的外骨骼为每个单元提供了一个私人阳台,面积从 5 平方米到 21.7 平方米不等,为居民创造了额外的户外空间,让他们与自然和周围环境联系起来。 Triptyque 的联合创始人纪尧姆·西博(Guillaume Sibaud)说:“我们的想法不是要创建一个运动员村,而是要为这座城市创造一个新的社区,促进那些不太受欢迎的地区的改变。”。 奥运会期间,这 300 间客房将作为美国代表团的临时住房,每间客房约 15 平方米。 9 月之后,这些单元将被改造成 125 套公寓,面积从 30 到 105 平方米不等,用于长期社会住房。

© Salem Mostefaoui
Sustainable Design Features
The Universeine project is seeking E3C1 certification under the French E+C - (Energy+Carbon) label, which recognizes buildings with positive energy and low carbon emissions.. The low-carbon concrete core of the building is wrapped in wooden panels for insulation and cladding. This layered structure reduces temperature fluctuations, minimizes the need for artificial cooling, and promotes cross ventilation, thereby further improving energy efficiency. Active and passive sustainability measures include: active green roofs that promote biodiversity.
Using water as a resource for urban cooling.
Install solar panels for renewable energy generation.
Adequate natural light and careful solar positioning to reduce energy consumption. Bicycle storage capacity and electric vehicle charging stations can promote sustainable mobility.
可持续设计特点
Universeine 项目寻求法国 E+C-(能源+碳)标签下的 E3C1 认证,该认证认可具有正能量和低碳排放的建筑。 建筑的低碳混凝土核心包裹着木质面板,用于隔热和覆层。 这种分层结构减少了温度波动,最大限度地减少了人工冷却的需求,并促进了交叉通风,从而进一步提高了能源效率。 主动和被动可持续性措施包括:
• 活跃的绿色屋顶,促进生物多样性。
• 将水作为城市降温的资源。
• 安装太阳能电池板,用于可再生能源发电。
• 充足的自然光和仔细的太阳能定位,以减少能源消耗。 自行车存放容量和电动汽车充电站可促进可持续的机动性。

© Salem Mostefaoui
Community Integration and Social Bonds
The design of the project promotes community interaction and social bonds by sharing the underlying green space and commercial area.. The shops and offices will create a vibrant mixed use environment, ensuring the community's vitality after the Olympics. After the Olympics, the community will have around 6000 residents and create 6000 job opportunities with the support of three hectares of parks and seven hectares of gardens. The modular and reversible design of the apartment will provide flexibility to adapt to the needs of the community over time.
社区融合与社会纽带
项目的设计通过共享底层绿色空间和商业区,促进社区互动和社会纽带。 商店和办公室将创造一个充满活力的混合用途环境,确保该社区在奥运会之后的活力。 奥运会结束后,该社区将拥有约 6000 名居民,并将在三公顷的公园和七公顷的花园的支持下创造 6000 个工作岗位。 公寓的模块化和可逆设计将提供灵活性,以适应社区随时间推移的需求。

© Salem Mostefaoui
Collaboration and Innovation
The Universe project reflects the spirit of collaboration, which defines the entire development of the Olympic Village.. Triptyque works closely with Solideo (the company responsible for building villages) and other international construction companies to create a cohesive and forward thinking urban landscape. Each company showcased its architectural models and made adjustments based on group discussions, resulting in a more integrated and harmonious community.
合作与创新
Universeine 项目反映了合作精神,这种精神定义了奥运村的整个发展。 Triptyque 与 Solideo(负责建设村庄的公司)和其他国际建筑公司密切合作,创造了一个有凝聚力和前瞻性的城市景观。 每家公司都展示了其建筑模型,并根据小组讨论进行了调整,从而形成了一个更加融合、和谐的社区。

剖面图
Sibaud said, "The Olympic Village is a major project and a pioneering community in terms of sustainable development goals and material use. It is inspiring to learn that the building for the US delegation was designed by a joint law firm, Faba, and will serve as a model for future development
西博(Sibaud)表示:“奥运村是一个重大项目,在可持续发展目标和材料使用方面是一个具有开创性的社区。得知美国代表团的大楼是由一家法巴联合事务所设计的,并将作为未来开发的典范,这令人备受鼓舞。”

© Salem Mostefaoui
Heritage of Sustainable Urban Living
In addition to its role in the Olympics, the Space Building also embodies Triptyque's commitment to environmental responsibility and community centered design.. By combining cutting-edge sustainable development practices with flexible, people-oriented architecture, this project will have a lasting impact on the Paris metropolitan area for many years to come.
可持续城市生活的遗产
除了在奥运会中的作用外,宇宙大楼还体现了 Triptyque 对环境责任和以社区为中心的设计的承诺。 通过将前沿的可持续发展实践与灵活、以人为本的建筑相结合,该项目将在未来许多年对巴黎大都市地区产生持久的影响。

© Salem Mostefaoui