Corner Cottage/KOMINORU Design
街角小屋/ KOMINORU Design
空间利用的极致与创新:这是一项在极小地块上进行的设计实践,其核心在于对有限空间的极致利用。项目巧妙地利用了角地优势,通过满足防火规范来最大化建筑覆盖率,这体现了设计师对法规的深刻理解和灵活运用。更令人印象深刻的是,设计师在内部空间布局上的创新。他们没有拘泥于传统的平面布局,而是充分利用了倾斜的屋顶和墙体空间,将储藏、浴室等功能巧妙地嵌入其中,实现了空间利用的最大化。这种设计理念不仅提升了房屋的实用性,也为居住者创造了独特的空间体验,是值得借鉴的亮点。
结构与美学的和谐统一:该项目在结构设计方面展现了精湛的技艺。设计师选择了半防火建筑,并通过加宽柱子和横梁来部分暴露木结构,这在确保防火安全的同时,赋予了建筑独特的视觉美感。这种设计手法巧妙地融合了结构与美学,使得建筑的内部空间充满了自然、温馨的氛围。此外,通过将天花板置于横梁之上,设计师还在视觉上提升了空间高度,克服了坡度带来的局限,进一步优化了空间感。这种对结构元素的巧妙运用,不仅提升了建筑的品质,也体现了设计师对材料和建造工艺的深刻理解。
对自然元素的巧妙融入:该项目最令人称道之处在于其对自然元素的巧妙融入。通过在屋顶安装通风窗,设计师创造了类似风塔的重力通风系统,使得建筑内部空气流通,居住者可以随时感受到微风。此外,设计师还将花园从地面抬升至二楼,为居住者提供了室内绿植,弥补了小地块上难以拥有花园的缺憾。这种设计手法不仅提升了居住的舒适度,也体现了设计师对可持续发展和健康居住环境的关注。这种对自然元素的尊重和运用,使得这座小房子充满了生机和活力,创造了令人向往的生活方式。

© Katsumasa Tanaka

© Katsumasa Tanaka
This is a three story wooden house built on limited land of only 9 ping (approximately 30 square meters). Due to its location in a corner, if the fire resistance performance is met, the building coverage can reach 80%, and we can obtain more building area than expected.
这是一栋三层木制房屋,建在只有 9 坪(约 30 平方米)的有限土地上。 由于它位于一个角落,如果满足耐火性能,建筑覆盖率可以达到 80%,我们能够获得比预期更多的建筑面积。

© Katsumasa Tanaka

© Katsumasa Tanaka

剖面图

© Katsumasa Tanaka
In the semi fireproof area, we chose a semi fireproof building, which was introduced in the revised Building Standards Law in 2019, instead of a semi fireproof building. By making some columns and beams 120 centimeters wide or wider, we can partially expose the wooden structure while ensuring fire resistance. Therefore, by placing the ceiling on the crossbeam to make it higher, even though the slope is steep, we can still ensure the necessary floor area.
在半防火区域,我们选择了一座半防火建筑,该建筑在 2019 年修订的《建筑标准法》中引入,而不是半防火建筑。 通过将一些柱子和横梁做成 120 厘米宽或更宽,我们能够在确保防火性的同时部分暴露木结构。 因此,我们通过将天花板放置在横梁上,使其高度更高,尽管坡度很陡,我们仍然能够确保必要的占地面积。

© Katsumasa Tanaka

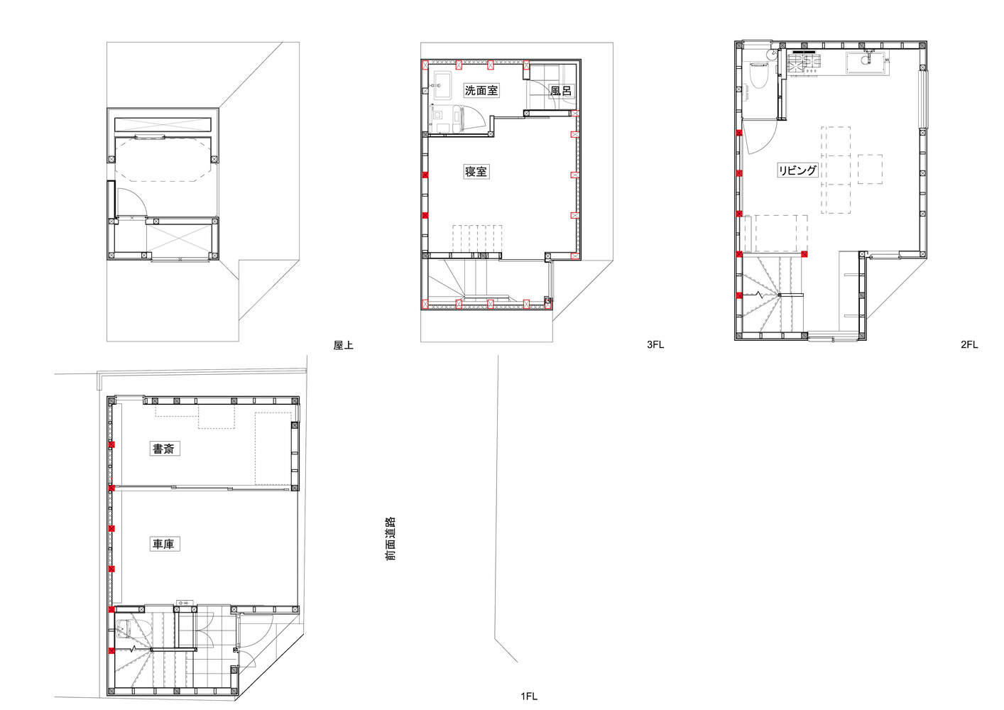
平面图

© Katsumasa Tanaka

© Katsumasa Tanaka
As for the shape, we can create a small rooftop terrace by using the sky exposure of the southern road slope. As the shape of the north side is determined by a slope of 1: 1.25, the key is how to fully utilize the sloping wall.
至于形状,我们可以通过使用南侧道路坡度的天空曝光率来创建一个小的屋顶露台。 由于北侧的形状是由 1:1.25 的坡度决定的,因此关键是如何充分利用斜坡墙。

© Katsumasa Tanaka
After careful consideration, we have decided to place the bathroom on the north side of the third floor as it is relatively less used and has ample storage space. The tilted area will be used for storage. The design of the bathroom is as simple as possible, with the bathtub tucked into the space between the sloping walls, approaching from two directions.
经过深思熟虑,我们决定将浴室放在三楼的北侧,因为浴室使用相对较少,而且有大量的储物空间。 倾斜区域将用于存储。 浴室的设计尽可能地简单,浴缸被塞进倾斜的墙壁之间的空间,从两个方向靠近。

© Katsumasa Tanaka
We utilized a long vertical space and installed a ventilation window on the roof, allowing the entire building to use gravity ventilation like a wind tower, creating a house where you can feel the breeze at any time. We planted trees on the eaves and elevated the ground garden (which is difficult to achieve due to its size) to the second floor, allowing you to enjoy a small amount of green plants indoors.
我们利用长长的垂直空间,在屋顶上安装了一个通风窗,让整个建筑像风塔一样利用重力通风,创造了一个可以随时感受到微风的房子。 我们在屋檐上种了树,并将地面花园(由于其面积的原因,很难做到)提升到二楼,让您可以在室内享受少量的绿色植物。

© Katsumasa Tanaka