VPA townhouse/Tout Va Bien architecture
VPA 联排别墅 / Tout Va Bien architecture
项目亮点:对城市肌理的尊重与创新:该项目最显著的亮点在于其对城市肌理的深刻理解与巧妙回应。建筑师在遵循当地城市规划(PLU)的基础上,对一栋20世纪50年代的联排别墅进行修复和加高,这本身就体现了对历史文脉的尊重。同时,项目通过悬挑部分和退缩空间的设计,巧妙地适应了街道的尺度变化,并为建筑注入了现代感。更值得称道的是,设计师将规划限制转化为机会,创造了与居住区域无缝连接的南向户外空间,既保证了私密性,又提升了居住舒适度,实现了城市景观与居住体验的和谐统一。
精髓所在:可持续设计与材料创新:项目的精髓在于其对可持续设计的实践和材料的创新运用。为了减轻对现有结构的负荷,建筑师选择了木框架结构,并与当地木匠和专业工程公司合作,共同研发。这种设计理念不仅体现了对环境保护的关注,也促进了当地建筑行业的合作与发展。此外,项目大胆采用了传统上用于普罗旺斯农舍的雪松木,并通过实验室测试评估其机械性能,这为建立可持续的本地供应链提供了可能性。立面预制技术的运用,也最大限度地降低了施工对城市环境的影响,是可持续设计理念的又一体现。
技术特点:预制化、本土化与舒适性:该项目在技术层面展现出多个突出特点。首先是立面预制化,这不仅缩短了施工周期,还降低了施工对周边环境的干扰。其次是本土化材料的选择,雪松木的使用是对普罗旺斯地区建筑传统的回应,同时也考虑了材料的可持续性和当地供应链的潜力。最后,设计者在细节上注重居住的舒适性,例如受“马赛露台”启发的立面设计,在保证隐私的同时,有效提升了夏季的通风和遮阳效果。这些技术特点共同促成了该项目在可持续性、美学和功能性上的完美结合,为城市更新项目提供了有益的借鉴。

© Matthieu Petiard

© Matthieu Petiard
This project involves the restoration and re elevation of a townhouse that was already elevated in the 1950s. The villa is located in the center of the block, with a cantilevered section and a setback space on one side of the street, which is in line with the development changes of the local urban planning (PLU). Following the current urban planning regulations, the layout on one side of the courtyard has been expanded and the building sequence on the street side has been restored.
该项目涉及对一栋 20 世纪 50 年代已加高的联排别墅进行修复与再次加高。该别墅位于街区中心,具有悬挑部分,且街道一侧设有退缩空间,这符合当地城市规划(PLU)的发展变化。遵循现行城市规划规定,加高部分扩展了庭院一侧的布局,并恢复了街道一侧的建筑序列。

© Matthieu Petiard

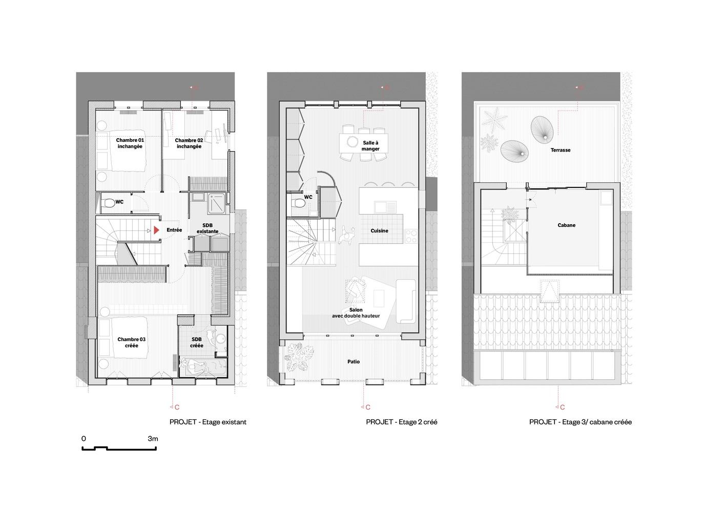
平面图

© Matthieu Petiard
This restriction is used as an opportunity to create a southbound outdoor space that seamlessly connects with the residential area. Inspired by the 'Marseille Terrace', the new 'dramatic' facade retains privacy while enhancing summer comfort, while maintaining the harmony of the city landscape.
这一限制条件被用作创造南向户外空间的机会,该空间与居住区域无缝连接。受“马赛露台”启发,新的“戏剧性”立面既保留了隐私,又提升了夏季舒适度,同时保持了城市景观的协调性。

© Matthieu Petiard

剖面图

© Matthieu Petiard
To reduce the load on the existing structure, a wooden frame was chosen, which was developed in collaboration between a local carpenter and a professional engineering company. The project focuses on using cedar wood traditionally used in Provence farmhouses, and evaluates its mechanical properties through laboratory testing to explore the possibility of establishing a sustainable local supply chain.
为减轻对现有结构的荷载,选择了木框架,该框架由当地木匠和一家专业工程公司合作开发。项目重点采用了传统上用于普罗旺斯农舍的雪松木,并通过实验室测试评估其机械性能,探索建立可持续的本地供应链的可能性。

© Matthieu Petiard
Prefabrication of facades in the workshop helps minimize the impact of construction on dense urban environments. Therefore, this project provides an innovative model for sustainable encryption in the center of Marseille, addressing contemporary housing challenges.
立面在车间进行预制,有助于将施工对密集城市环境的影响降至最低。因此,该项目为马赛市中心的可持续加密提供了一个创新模型,解决了当代住房挑战。

© Matthieu Petiard