Nightingale Apartment/Kennedy Nolan Architects
Nightingale 公寓 / Kennedy Nolan Architects
项目亮点:可持续与经济的平衡: Nightingale 公寓项目最显著的亮点在于其对可持续发展的全面践行。项目不仅在建筑材料和能源使用上体现环保理念,例如采用7.5星NatHERS热性能评级、100%无化石燃料运营,以及共享汽车模式,更重要的是,项目在设计之初就考虑了经济可行性,目标是提供高性价比的住宅。这种将环境、社会和经济效益相结合的理念,使其在众多住宅项目中脱颖而出,为未来住宅设计提供了可贵的参考,尤其是在城市高密度住宅领域。
设计精髓:色彩与材质的对话:该项目的精髓体现在对色彩与材质的巧妙运用。建筑师通过将预制混凝土构件染成温暖的赭色,搭配橙红色窗户、门、金属制品和土黄色FC板,与裸露的混凝土形成鲜明对比,赋予建筑独特的视觉魅力。同时,外墙采用19世纪墨尔本常见的红砖,与周边环境相协调。这种对色彩和材质的精细把握,不仅提升了建筑的美学价值,也强化了建筑的地域性和文化底蕴,创造出令人印象深刻的视觉体验,并与周围环境建立联系。
社区营造:多元与互联的理念: Nightingale 公寓项目的另一个核心精髓在于其对社区营造的关注。项目的设计出发点即是构建一个多元、团结且互联的社区。通过预留部分公寓给经济适用房提供商,并优先考虑关键服务人员、残疾人以及原住民等群体,项目促进了社会公平。此外,建筑本身的设计也注重舒适性、愉悦感和功能性,旨在为居民提供一个温馨、宜居的居住环境,从而增强社区的凝聚力和活力。这是一种超越建筑本身,对社会责任的积极回应。

© Tom Ross

© Tom Ross
From the architect. The Nightingale development project aims to create medium density residential buildings that are environmentally, socially, and financially sustainable. The ultimate goal of the Nightingale project is to provide cost-effective housing by simplifying the development process and the building itself.
来自建筑师。Nightingale 这一开发项目旨在打造环境、社会和财务上均可持续的中密度住宅。Nightingale 项目的最终目标是,通过简化开发流程和建筑本身,提供高性价比的住宅。

© Tom Ross

© Tom Ross

© Tom Ross
Kennedy Nolan's work on single and multi family residential projects; Our exploration of indoor and landscape; Our experience in traditional product development, as well as our investments in other Nightingale projects, led us to obtain the Nightingale license in 2016. The following year, we purchased a site in an area shared with six other architects. We are working with contemporary professionals to create an exciting urban village next to the Upfield train line in Brunswick, Melbourne's inner north district.
肯尼迪·诺兰(Kennedy Nolan)在单户和多户住宅项目上的工作;我们对室内和景观的探索;我们提供传统开发产品的经验,以及我们在其他 Nightingale 项目上的投资,促使我们在 2016 年获得了 Nightingale 许可。次年,我们在一个与其他六位建筑师共享的区域购买了一块场地。我们与当代专业人士一道,正在墨尔本内北区布伦瑞克(Brunswick)的 Upfield 火车线旁,打造一个令人兴奋的城市村庄。

© Tom Ross

© Tom Ross

© Tom Ross
One innovative approach we adopted is to dye the gray prefabricated components into a warm reddish brown color, and based on this, construct a color palette that includes orange red windows, doors, metal products, and earthy yellow FC panels, which create a sharp contrast with the exposed concrete. The walls and floors of the building, which are the main locations for intimate interaction on the street, are made of red pressed bricks commonly seen in 19th century Melbourne. All elements are arranged in a fun way, especially our west facade, whose oversized biomimetic dynamic design gives the building a friendly personality. The west facade of this building can be seen from a distance in Brunswick, and in the afternoon, when the sunlight from the west shines on it, it emits a warm and friendly glow.
我们采用的一种创新手法是,将灰色的预制件染成温暖的赭色,并以此为基础,构建了一个包含橙红色窗户、门、金属制品和土黄色 FC 板的色调调色板,这些元素与裸露的混凝土形成了鲜明对比。建筑的墙壁和地面,即街道上亲密互动的主要位置,都采用了 19 世纪墨尔本常见的红色压制砖块。所有元素都采用了趣味性的排列方式,尤其是我们的西立面,其超大尺寸的仿生动感设计赋予了建筑友好的个性。从布伦瑞克很远的地方就能看到这座建筑的西立面,下午当西边的阳光照在它上面时,它会散发出温暖而友好的光芒。

© Tom Ross

© Tom Ross

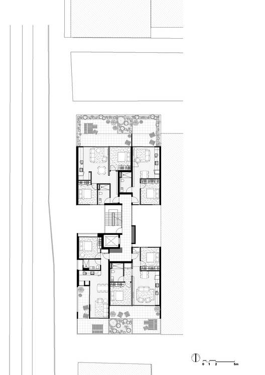
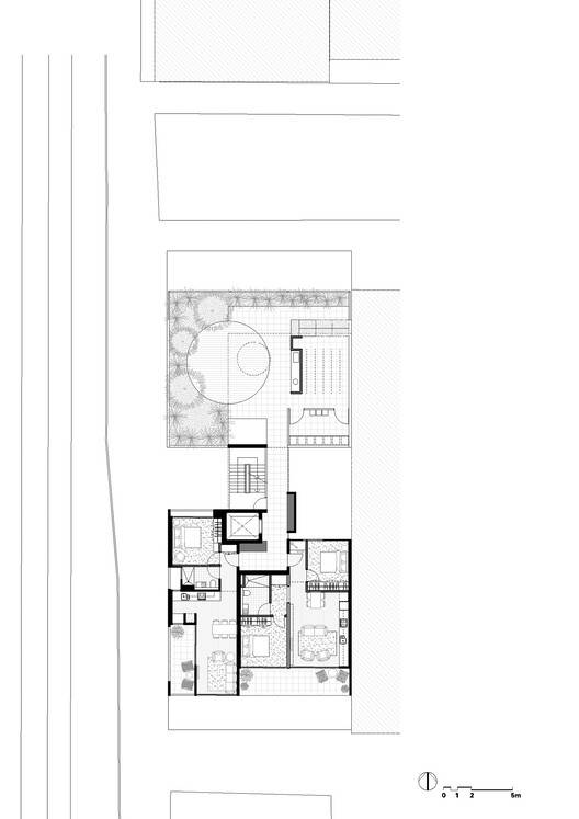
平面图

© Tom Ross
The building has a total of 27 apartments, ranging from small 34 square meter (one bedroom) apartments to spacious 80 square meter two bedroom apartments. The building is a model in terms of sustainable design, including a 7.5 star NatHERS thermal performance rating, 100% fossil fuel free operation, no private parking spaces, and access to 15 shared cars.
该建筑共有 27 套公寓,从小巧的 34 平方米(一室户)公寓到宽敞的 80 平方米两室公寓不等。该建筑在可持续设计方面堪称典范(包括获得 7.5 星 NatHERS 热性能评级、运营中 100% 无化石燃料、无私人停车位,并可使用 15 辆共享汽车)。

© Tom Ross

平面图

© Tom Ross
20% 的公寓已自愿预先分配给经济适用房提供商,并优先考虑为关键服务人员、残疾人以及原住民和托雷斯海峡岛民提供购买机会。

© Tom Ross
This is a building designed with a community as its starting point, which is diverse, united, and interconnected. We offer 27 residential units that combine comfort, pleasure, and functionality.
这是一座以社区为设计出发点的建筑,这个社区是多元、团结且互联的。我们提供了 27 套住宅,这些住宅同时具备了舒适性、愉悦感和功能性。

© Tom Ross