DaLa Residence/NAW Studio
DaLa 住宅 / NAW Studio
立面设计的精妙之处:DALA 住宅项目最显著的亮点在于其对立面设计的巧妙运用。面对西晒问题,NAW Studio 巧妙地设计了水平混凝土百叶系统,有效阻挡了强烈阳光的直射,从而降低了室内温度,提升了居住舒适度。更令人赞叹的是,百叶后方立面朝西南倾斜,这一设计不仅是对被动式设计的积极响应,更是对当地气候特征的深刻理解。这种设计能够捕捉凉爽的西南风,增强室内通风,创造出宜人的微气候环境,展现了建筑师对可持续设计和居住体验的深度思考。
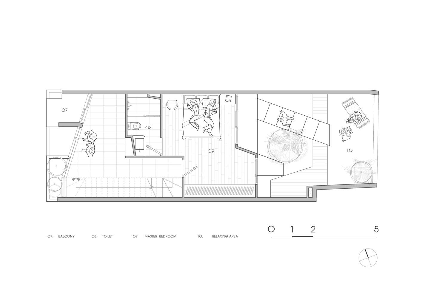
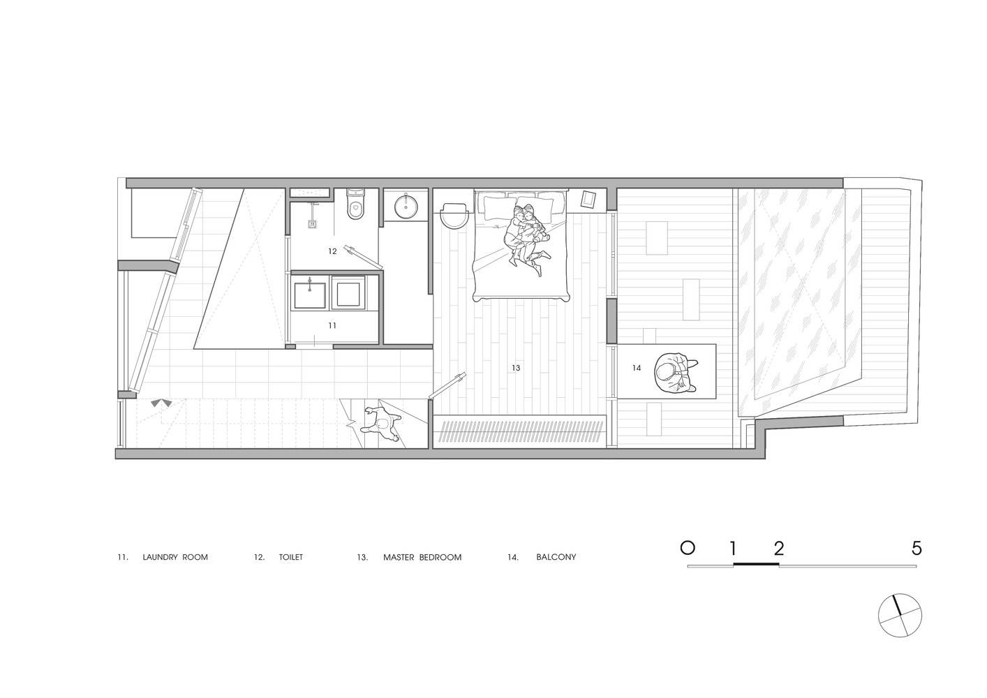
空间布局的创新与实用:项目的精髓在于对空间布局的精细规划。面对后部略微倾斜的场地,设计师并未因此妥协,反而充分利用地形,将功能空间沿庭院和阳台布置,并通过混凝土阶梯巧妙连接。这种设计手法不仅解决了场地限制,更创造了流畅的垂直空间体验,增强了视觉连贯性。开放式的空间布局,搭配精心选取的材料,使得自然光能够最大程度地进入室内,营造出明亮通透的居住氛围。同时,这种布局也兼顾了家庭成员的隐私需求,并为家庭互动提供了更多可能,真正实现了居住功能与情感交流的和谐统一。
设计理念的融合与升华:DALA 住宅项目体现了建筑设计与自然环境的完美融合。设计师在极简主义风格的基调下,注重舒适性、通风性和采光,并通过细节的精心雕琢,营造出一种亲近自然的居住体验。材料的选择、通风口的设置以及大面积玻璃门窗的应用,无不体现了设计师对居住者生活品质的关注。项目不仅是一个居住空间,更是一种生活方式的体现,它强调了建筑与环境的和谐共生,让居住者在享受现代生活便利的同时,也能感受到自然带来的宁静与美好,这正是该项目最值得称赞的地方。

© D i n h R

© D i n h R
From the architect. DALA Residence is a modern residential building located at 141 To Hien Thanh Street in Da Nang, Vietnam. The residence covers an area of 78 square meters, with three floors facing west. It includes three bedrooms, a connected living room and kitchen, as well as multiple shared living spaces. The owners of the house are a young couple and their two young children. Due to the house facing west, NAW Studio adopted a horizontal concrete louver system in the facade design to reduce intense sun exposure. At the same time, in order to fully utilize the natural wind, the facade behind the louvers tilts southwest to capture the cool breeze and improve the natural ventilation effect indoors.
来自建筑师。DALA 住宅是一座位于越南岘港市 To Hien Thanh 街 141 号的现代住宅。该住宅占地 78 平方米,共三层,面向西侧,包含三间卧室,一个连通的客厅与厨房,以及多个共享的生活空间。房屋的主人是一对年轻夫妻和他们的两个年幼孩子。由于房屋朝西,NAW Studio 在立面设计中采用了水平混凝土百叶系统,以减少强烈的日晒。同时,为了充分利用自然风,百叶后方的立面向西南倾斜,以便捕捉清凉的风,改善室内的自然通风效果。

© D i n h R

© D i n h R

Section Perspective

© D i n h R

© D i n h R
The DALA residence is built on a piece of land that is noticeably tilted towards the rear. To overcome this terrain disadvantage, NAW Studio arranged the functional spaces along the courtyard and balcony at the back of the house, and connected them through concrete steps spanning the courtyard, creating a smooth spatial experience between different areas while bringing rich visual effects and effectively adjusting the microclimate inside the building.
DALA 住宅建在一块后方略显倾斜的土地上。为克服这一地形劣势,NAW Studio 将功能空间沿着房屋后方的庭院和阳台布局,并通过横跨天井的混凝土阶梯进行连接,从而在各个区域之间创造了流畅的空间体验,同时带来了丰富的视觉效果,并有效调节了建筑内部的小气候。

© D i n h R

Second Floor Plan

© D i n h R

Third Floor Plan

© D i n h R
The entire residence is designed in a minimalist style, emphasizing comfort and ventilation. The indoor materials are carefully selected, ensuring functionality while maintaining a soft and modern aesthetic. The open space layout, ventilation openings, and glass doors and windows allow natural light to fully penetrate the interior, creating a comfortable and pleasant living atmosphere. The spatial planning not only ensures the privacy of each family member, but also creates more opportunities for family interaction.
整个住宅采用极简风格设计,注重舒适性与通风性。室内选材精心考究,既保证了功能性,又保持了柔和且现代的美感。开放的空间布局、通风口以及玻璃门窗,让自然光充分洒入室内,营造出舒适且宜人的居住氛围。空间的规划既确保了每位家庭成员的隐私,同时也创造了更多家人互动的机会。

© D i n h R
DALA Residence is a residential project that integrates aesthetics, functionality, and nature. Every detail in the design is full of ingenuity, making this house not only a living space, but also a complete living experience close to nature, allowing the homeowner to enjoy every peaceful and beautiful moment at home.
DALA 住宅是一座集美学、功能与自然于一体的住宅项目。设计中的每一处细节都充满巧思,使这座房子不仅是一个居住空间,更是一种亲近自然的完整生活体验,让屋主在家中享受每一个宁静而美好的时刻。

© D i n h R