t.house / ogawaa design studio
t.house / ogawaa design studio
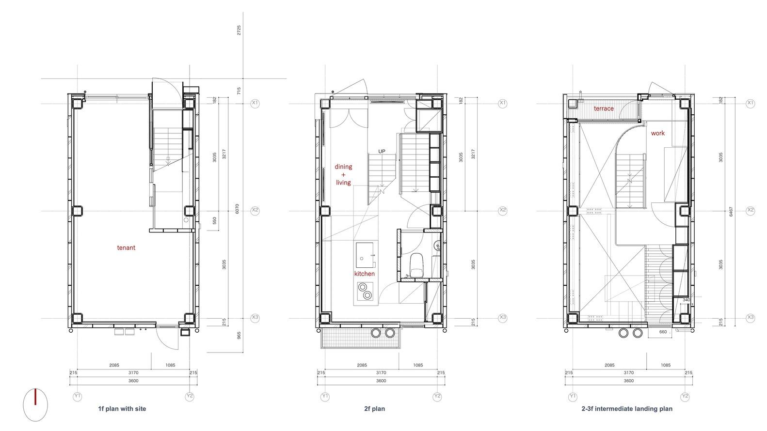
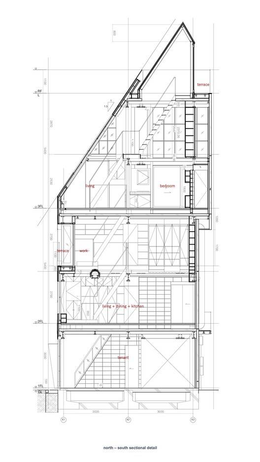
空间策略的巧妙运用:该项目最显著的亮点在于其对空间策略的极致运用。在仅30平方米的狭小基地上,设计师巧妙地通过将二、三层改造为两层通高的中庭,并设计了可维护的露台,成功地在视觉上扩大了空间感,同时巧妙规避了法规限制。这种设计手法不仅提升了建筑的通透性,也创造了垂直方向上的视觉连接,使得整个建筑在紧凑的体量中展现出丰富的层次感。此外,楼梯被置于建筑中心,成为连接各个楼层的重要枢纽,也使得空间布局更为灵活和流畅。
对城市文脉的尊重与回应:该项目并非孤立于环境之外的个体,而是对大阪当地城市文脉的深刻理解和回应。设计者敏锐地捕捉到当地社区居民对小镇的特殊情感,并将其融入到设计之中。通过保留原有建筑的结构,并采用能够传达历史感的材料,建筑与周围环境形成了一种自然的对话。同时,开放的立面设计和与街道的直接连接,使得建筑具有了公共性,模糊了室内与室外的界限,营造出一种“秘密基地”般的独特氛围,增强了居民与社区之间的互动。
人性化设计与生活方式的融合: 项目的精髓在于其对居住者生活方式的深刻洞察和人性化设计。设计师将楼梯设计成生活空间的一部分,赋予其更多功能,体现了对细节的关注。建筑内部的私密性随着楼层的升高而逐渐增加,屋顶露台则重新连接了建筑与城市景观。这种设计理念鼓励居民与社区互动,并为居民提供了灵活的使用空间,比如将二楼出租。通过这种方式,建筑不仅仅是居住的场所,更成为了一个充满活力、承载情感的社区空间,体现了设计师对“家”的深刻理解。

© Akira Ito

© Akira Ito
In Osaka, there are usually chaotic yet comfortable towns. Many people born and raised there have a deep attachment to their small town. To be precise, they are not very fond of this small town, but just accustomed to the unchanging life there for many years. The daily scenery of these small towns has no academic value and contains many illegal elements, but the residents push the towns forward with a spontaneous sense of responsibility, which creates a sense of ordinariness or security in noisy environments, giving the city a unique sense of unity.
在大阪,通常有着杂乱而又舒适的城镇。许多在那里出生长大的人对自己的小镇有着深深的依恋。确切来说,他们并不是非常热爱这个小镇,而只是习惯了多年来那里一成不变的生活。这些小镇的日常景象并无学术价值,且包含许多非法元素,但居民们以一种自发的责任感推动城镇向前发展,这种力量在嘈杂环境中营造出一种平凡感抑或安全感,赋予这座城市一种奇特的团结感。

© Akira Ito
We have designed a plan for a resident who has lived in a small town for many years to transform their old home into a residence with shops. This nearly 50 year old building has been renovated except for the foundation, steel structure, and exterior walls that are semi integrated with neighboring houses on both sides, which have been preserved. Although the location is extremely convenient, it only covers an area of 30 square meters. The original building had five floors, but in order to eliminate spatial constraints and reduce regulatory burden, we have converted the second and third floors into a two-story atrium, making it a three story building. However, we designed a maintenance friendly terrace between the floors, giving it the appearance of a five story building.
我们为一位在小镇生活多年的居民设计了一座将旧居改造为带商铺的住宅的方案。这栋近 50 年的老建筑,除了基础、钢结构和东西两侧与邻屋半结合的外墙得以保留外,其余部分均进行了翻新。尽管该地位置极为便利,但占地面积仅 30 平方米。原建筑为五层,但为了消除空间局促感并减轻法规负担,我们将二、三层改为了两层高的中庭,使其变为三层建筑。然而,我们在楼层间设计了一个可用于维护的露台,使其外观上看似五层建筑。

© Akira Ito

© Akira Ito

Floor Plan 1F, 2F, and 2/3F

© Akira Ito
Considering that the stairs required for vertical movement are also part of the living space, we plan to place them in the center of the residential floor. The entire building is loosely connected through stairs and atrium, but from the bottom to the top, privacy gradually increases, and at the rooftop terrace level, it is reconnected with the town landscape. If residents have a trustworthy relationship, the second floor can be rented out. The blurring of spatial boundaries and the integration of facade design have established a unique relationship between residents, shops, and small towns.
考虑到垂直移动所需的楼梯也是生活空间的一部分,我们计划将其设置在住宅楼层的中央。整栋建筑通过楼梯和中庭松散地连接在一起,但从底层到上层,私密性逐渐增加,到了屋顶露台层,又与小镇景观重新相连。如果居民有可以信赖的关系,二楼可以出租。空间边界的模糊和立面设计的融合,在居民、商店和小镇之间建立起了一种独特的关系。

© Akira Ito

© Akira Ito

Section

© Akira Ito
We directly connected it to the town environment, creating a luxurious sense of openness that makes this house special to residents, like a 'secret base', even though passersby pass by nearby.
我们使之与小镇环境直接联系,创造了一种奢侈的开阔感这使得这所房子对居民来说变得特别,就像一个“秘密基地”,尽管路人就在附近经过。

© Akira Ito
We combined materials that convey a sense of antiquity, creating unexpected sequences around the stairs and some clever uses of the space. This allows true attachment and nostalgia to develop over time. We believe that as residents continue to enjoy the pleasure of collecting items and life experiences, this house will be filled with various "sounds" and become more familiar with the town.
我们结合了能传达老旧感的材料,围绕楼梯创造出意想不到的序列,以及一些空间的妙用。这使得随着时间的推移,真正的依恋感和怀旧感得以发展。我们相信,随着居民继续享受收集物品和生活经历的乐趣,这所房子将充满各种“声音”,并且与小镇变得更加熟悉。

© Akira Ito
Even though it may seem like a garbage house to others, it is an irreplaceable space for its users. Our goal is to create a building that showcases publicness, cultivating a common but rich urban landscape through private spaces loosely connected to the town, and instilling trust and attachment in people.
即使对他人来说这只是看起来像垃圾的房子,对使用者而言却是一个不可替代的空间。我们的目标是实现一种展现公共性的建筑,通过与小镇松散连接的私密空间,培养一个普通但丰富的城市景观,让人们对它充满信任和依恋。

© Akira Ito