Indo Avellanas House/Garton Group建筑
Indo Avellanas House / Garton Group Architecture
项目概念与社区营造:Indo Avellanas项目的核心在于其对社区营造的关注。设计理念围绕着“亲密社区”展开,这在豪华住宅项目中尤为重要。项目通过提供一居室和两居室别墅,满足了客户对生活方式、旅行和健康的需求,营造了宜居的氛围。开放式的设计,例如开放式的生活空间无缝通往私人露台和跳水池,促进了住户之间的互动,增强了社区的凝聚力。这种设计手法超越了单纯的建筑设计,更像是一种对生活方式的提炼和呈现,为住户提供了更丰富的生活体验。
环境友好与可持续性:该项目在设计上展现出对环境的尊重和可持续发展的理念。在别墅的安置过程中,设计师小心翼翼地保留了场地内现有的成熟树木,体现了对自然环境的保护。建筑材料的选择也体现了可持续性原则,采用轻质钢框架系统和当地采购的柚木。这种材料选择不仅降低了对环境的影响,也赋予了建筑独特的地域特色。这些举措表明,该项目不仅仅关注建筑本身,还关注建筑与环境之间的和谐共生,这在当今的建筑设计中非常重要。
空间设计与材料运用:项目在空间设计上注重开放性和流畅性。开放式的生活空间与私人露台和跳水池的无缝连接,模糊了室内外空间的界限,使住户能够充分感受热带花园的魅力。设计也巧妙地利用了当地的自然元素,例如成熟的硬木。材料的选择也体现了对当地文化的尊重,柚木的使用赋予了建筑温暖、质朴的质感。这种材料的运用不仅美观,也体现了对当地资源的合理利用。整体而言,项目通过开放的设计和材料的巧妙运用,创造了宜人的居住环境,提升了项目的品质。

© Andres Garcia Lachner

© Andres Garcia Lachner
建筑师提供的文字描述。Indo Avellanas是位于Avellanas的豪华住宅区,拥有一系列一居室和两居室别墅,距离太平洋仅几步之遥。Indo-Avellanas的目标是创建一个亲密的社区,满足在哥斯达黎加这个特殊地区度过更多时间的客户的生活方式、旅行和健康愿望。
Text description provided by the architects. Indo Avellanas is a luxury residential enclave located in Avellanas with a collection of one and two-bedroom villas just steps from the Pacific Ocean. The objective of Indo Avellanas is to create an intimate community that fulfills the lifestyle, travel, and wellness aspirations of the clientele spending more time in this special region of Costa Rica.

© Andres Garcia Lachner

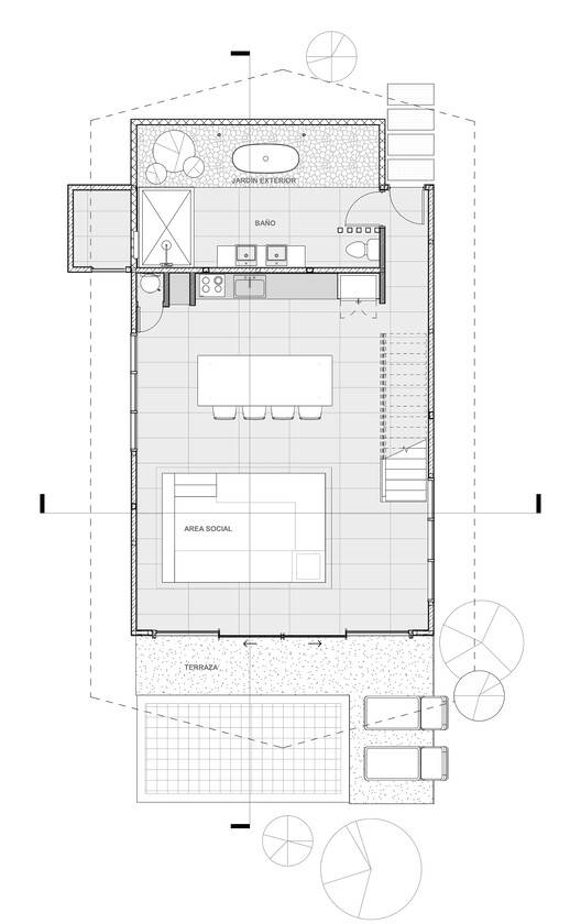
Plan - Level 01

© Andres Garcia Lachner
这6栋别墅由两种不同的设计组成,一套两居室和一套一居室。这两个设计都围绕着一个开放式的生活空间,无缝地通往私人露台和跳水池,拥抱着该地的成熟硬木和热带花园。
The 6 villas are made up of two different designs, a two-bedroom unit and a one-bedroom unit. Both designs are centered around an open-plan living space opening seamlessly to a private terrace and plunge pool, embracing the mature hardwoods and tropical gardens of the site.

© Andres Garcia Lachner

Axo

© Andres Garcia Lachner
在安置别墅时,已注意确保整个场地现有的成熟树木都没有被触及。别墅采用轻质钢框架系统和当地采购的柚木,确保开发项目在郁郁葱葱的场地上轻松进行。
Care has been taken to ensure that none of the existing mature trees throughout the site have been touched in the placement of the villas. The villas use a lightweight steel frame system and locally sourced teak, ensuring the development treads lightly on its lush site.

© Andres Garcia Lachner