乔治之家/嗨!建筑师
Georges House / hé! architectuur
空间重塑与光线引入:这个项目最引人注目的亮点在于对狭窄房屋的空间重塑和对自然光的巧妙利用。建筑师通过拆除旧附属建筑,垂直重组生活空间,并重新分配白天和夜晚的区域,极大地提升了房屋的通透性和实用性。 移除厨房上方的房间,创造了对角线连接,使得来自前方的光线能够更深入地渗透到房子里,这是一种非常巧妙的设计手法。 项目还注重了对楼梯间的改造,让一楼感觉更宽敞,改善了运动的流畅性,这些都体现了设计师对空间感和居住体验的深刻理解。
材料的再利用与“未完成”美学:项目的精髓之一在于对材料的再利用以及“未完成”美学的运用。 建筑师保留并重新利用了旧附属建筑的横向钢梁,用于支持户外照明、攀爬植物和遮阳棚,这种设计不仅环保,还为建筑赋予了独特的工业美感。 再利用的理念贯穿整个项目,例如从布鲁塞尔北站回收的大理石板被用于浴室和厨房的工作台。 暴露的砖砌体和石灰水处理也体现了建筑师对原始、未完成质感的追求,这种设计语言在预算允许的条件下,营造出一种独特而富有魅力的氛围, 凸显了设计干预的独特性和深度。
开放式设计与垂直连接:项目将开放式设计和垂直连接作为核心策略,以应对狭窄房屋的局限性。 设计师通过移除部分楼板,打通了楼层之间的视觉联系,使得光线和空气得以自由流通,大大提升了居住的舒适度。 建筑师将厨房和餐厅置于高架一层,客厅则位于二层,这种空间布局策略巧妙地分隔了功能区域,同时又通过视觉的连接,增强了空间的整体感。 这种设计手法不仅改善了采光,也促进了家庭成员之间的互动,创造了一种更加开放、温馨的居住环境,反映了对现代生活方式的深刻思考。

© Tim Van de Velde

© Tim Van de Velde
建筑师提供的文字描述。Kaat修复艺术品,Thomas为VRT工作。他们在布鲁塞尔安德莱赫特郊区为一家三个孩子买了一栋典型的窄小房子。房子里堆满了几栋小外屋和一个小花园。主要资产是后面的清晰视野,让自然光在上午和下午涌入。视觉轴的尽头是前兽医学院的景色,这是一座19世纪的纪念性建筑群。
Text description provided by the architects. Kaat restores artworks, and Thomas works for the VRT. They bought a typical, narrow house in the Brussels sub-municipality of Anderlecht for their family of three children. The house was cluttered with several small outbuildings and a tiny garden. The main asset was the clear view towards the back, allowing natural light to flood in during the morning and afternoon. The visual axis ends in a view of the former Veterinary School, a monumental complex from the 19th century.

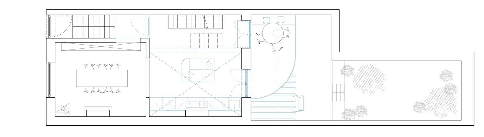
Ground Floor Plan

© Tim Van de Velde

1st Floor Plan

© Tim Van de Velde
客户的要求是重新组织和连接生活区。在最低的两层,他们想引入更多的自然光,开放空间,并为Kaat提供一个工作室。由于喜欢联排别墅和原始的“未完成”美学,他们已经有了清晰的愿景。尽管如此,他们还是欢迎新的建筑观点和材料建议。hé的提议!包括拆除旧附属建筑,垂直重组生活空间,创造更多的户外空间。建筑师还将白天和夜晚的区域更均匀地重新分配到房子的五层。
The clients' request was to reorganize and connect the living areas. On the two lowest floors, they wanted to bring in more natural light, open up the space, and provide a studio for Kaat. With a fondness for townhouses and a raw 'unfinished' aesthetic, they already had a clear vision in mind. Still, they welcomed new architectural perspectives and material suggestions. The proposal by hé! involved demolishing the old annex to reorganize the living spaces vertically and create more outdoor space. The architects also redistributed the day and night zones more evenly across the house's five levels.

© Tim Van de Velde
“belétage”(高架一楼)现在是厨房和餐厅,而二楼是客厅。通过完全移除厨房上方的房间,在生活空间之间形成了一种对角线连接,使来自前方的傍晚光线能够更深入地渗透到房子里。一些结构性干预打开了楼梯间,使一楼感觉更宽,改善了运动的流动性。前附属建筑的横向钢梁被保留了下来。哈!重新利用它们来支持户外照明、攀爬植物和遮阳棚。这种方法启发了hé!以同样的方式建造露台。一根横向钢梁现在承载着在拆除一楼时回收的木梁。穿孔钢板形成露台地板,让光线穿过花园区和下面的工作室。
The "bel étage" (the elevated ground floor) now houses the kitchen and dining room, while the second floor is home to the living room. By completely removing the room above the kitchen, a diagonal connection is created between the living spaces, allowing the evening light from the front to penetrate deeper into the house. A few structural interventions opened up the stairwell, making the ground floor feel wider and improving the flow of movement. The transverse steel beams from the former outbuildings were preserved. Hé! repurposed them to support outdoor lighting, climbing plants, and sunshades. This approach inspired hé! to build the terrace in the same way. A transverse steel beam now carries reclaimed wooden beams, recovered during the demolition of the first floor. A perforated steel plate forms the terrace floor, letting light filter through to the garden zone and studio below.

© Tim Van de Velde

Section

© Tim Van de Velde
Kaat和Thomas立即接受了重用理念,并热情地参与了这一过程。他们在Rotor收集并储存了从布鲁塞尔北站回收的大理石板堆,后来用它们来装饰浴室和厨房的工作台。在双层高的厨房区和楼梯间,砖砌体被暴露在外,并用石灰水处理,突出了hé!的干预,营造独特氛围,同时也有利于预算。
Kaat and Thomas immediately embraced the reuse philosophy and enthusiastically took part in the process. They collected and stored stacks of marble slabs, salvaged from Brussels North Station, at Rotor, later using them to clad the bathroom and kitchen worktop. In the double-height kitchen area and stairwell, the brickwork was left exposed and treated with limewash, highlighting hé!'s intervention and creating a unique atmosphere, while also benefiting the budget.

© Tim Van de Velde