五月之家/马西夫工作室
Casa de Mayo / Massív Studio
设计理念与环境融合:从专业角度来看,Casa de Mayo项目最引人注目的地方在于其对环境的深刻理解和回应。项目位于墨西哥瓦哈卡海岸,设计师巧妙地利用内部和外部空间的对话,实现了建筑与周围环境的无缝融合。这不仅体现在建筑材料的选择上,更体现在空间布局的考量上。项目充分利用了自然光线和通风,最大程度地减少了对人工能源的依赖,体现了可持续发展的设计理念。建筑师的设计并非孤立于环境之外,而是将建筑融入自然,创造出一种和谐共生的关系,这是对场地精神的尊重,也是对建筑设计本质的深刻理解。
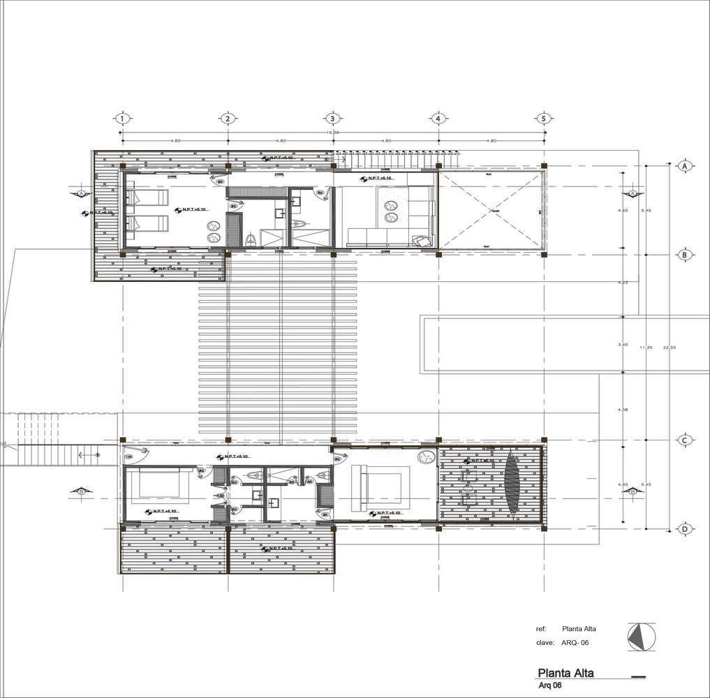
空间组织与功能布局:Casa de Mayo在空间组织方面展现出卓越的创造力。项目由6间卧室、厨房、客厅、办公室和一个连接两层体量的宽敞的palapa(墨西哥传统茅草屋顶凉亭)组成,功能分区明确,满足了居住者的多样化需求。尤其值得称赞的是,设计师通过精心设计的palapa,巧妙地连接了两个体量,创造了一个公共的、开放的活动空间,促进了人与人之间的交流。同时,建筑师还着重强调了一楼公共区域与楼上卧室之间的景观互动,使得居住者在不同的空间都能享受到独特的视野和体验。这种空间层次的丰富性,为居住者带来了极大的舒适感和趣味性。
材料选择与结构美学:建筑材料的选择和运用是Casa de Mayo的另一个亮点。设计师在材料的选取上,注重保护场地的原有风貌,体现了对当地文化和自然环境的尊重。结构木工的运用更是将建筑的结构美学发挥到了极致。木结构的支撑,在空间中形成了一种独特的韵律感,也与周围的自然环境相呼应。建筑师并没有把结构仅仅视为支撑的手段,而是将它融入到设计的语言中,使其成为建筑美学的重要组成部分。这种对材料的精湛运用,不仅提升了建筑的视觉效果,也赋予了建筑独特的性格和灵魂,让Casa de Mayo成为一个令人印象深刻的建筑作品。

© Cesar Bejar

© Cesar Bejar
建筑师提供的文字描述。这栋房子位于墨西哥瓦哈卡海岸的Playa Mermejita。这座两层楼的房子是通过内部和外部空间之间的对话设计的,在房子和周围环境之间建立了牢固的关系。
Text description provided by the architects. The house is located in Playa Mermejita on the Oaxacan coast of Mexico. This two-story house was designed through a dialogue between its interior and exterior spaces, creating a strong relationship between the house and its surrounding environment.

© Cesar Bejar

© Cesar Bejar

住宅项目Casa de Mayo诞生于对自然环境的钦佩和合作。该项目的设计及其材料都经过精心挑选,目的是保护遗址的精髓。
The residential project Casa de Mayo was born from an admiration and collaboration with the natural surroundings. The design of the project and its materials were carefully selected with the aim of preserving the essence of the site.

© Cesar Bejar
该项目由6间卧室、一间厨房、一间客厅、一间办公室和一座连接一楼两个体量的宽敞宫殿组成。该项目由两个完美和谐的信封组成,通过在每个空间中的调节,在建筑空间和包含它的结构木工之间产生协同作用。
The program consists of 6 bedrooms, a kitchen, a living room, an office, and an extensive palapa that connects the two volumes on its ground floor. The project is generated by two envelopes in perfect harmony through their modulation in each space, creating a synergy between the built space and the structural carpentry that embraces it.

© Cesar Bejar
Casa de Mayo的基本概念是构成一楼公共区域的空间与其卧室在楼上产生的景观之间的相互作用。
The fundamental concept of Casa de Mayo was the interaction between the spaces that make up the common area on the ground floor and the views generated on the upper floor from its bedrooms.

© Cesar Bejar