1640 14th St商业与办公楼/HGA
1640 14th St Commercial & Offices / HGA
项目设计理念:项目最令人印象深刻的是其对可持续性和社区福祉的深度关注。设计者不仅仅满足于建造一座商业建筑,而是将其设想为一个能够促进长期社区福祉的平台。这种以人为本的设计理念体现在多个方面,例如通过自然通风、采光和景观的整合来提升居住者的健康和生产力。此外,建筑在设计中融入了公共空间,如开放的餐厅和连接公园的通道,鼓励步行和自发聚会,从而增强了社区的活力。项目的设计体现了对环境和社会责任的深刻理解,真正体现了建筑设计的价值。
建筑语言与空间组织:该项目的建筑语言在功能性和美学之间取得了良好的平衡。建筑外观设计灵感来源于当地历史仓库的曲线屋顶,并进行了现代化的演绎,赋予了建筑独特的轮廓。内部空间则通过双层高度的办公空间和私人室外露台的设计,为租户提供了舒适和灵活的工作环境。值得称赞的是,设计师巧妙地将室内外空间融合,通过大型窗户和露台,模糊了界限,增强了空间的开放性和通透性。这种设计手法不仅改善了采光和通风,也为居住者创造了更加宜人的环境,突显了设计的实用性和美观性的统一。
可持续性与技术创新:项目在可持续性方面展现出卓越的实践,其设计超越了圣莫尼卡现有的可持续建筑标准。屋顶太阳能光伏系统是项目可持续设计中的关键组成部分,大大减少了建筑对市政基础设施的资源消耗。此外,设计师还采用了天然、区域和当地采购的材料,进一步降低了建筑的碳足迹。项目还巧妙地利用了被动式设计策略,例如自然通风和高遮阳玻璃,以减少对冷却设备的需求,同时保持了室内的采光和通透性。这些技术和策略的结合,使得该建筑不仅环保,而且在经济上也具有长远价值,为未来的可持续建筑设计提供了有益的参考。

© Eric Staudenmaier

© Eric Staudenmaier
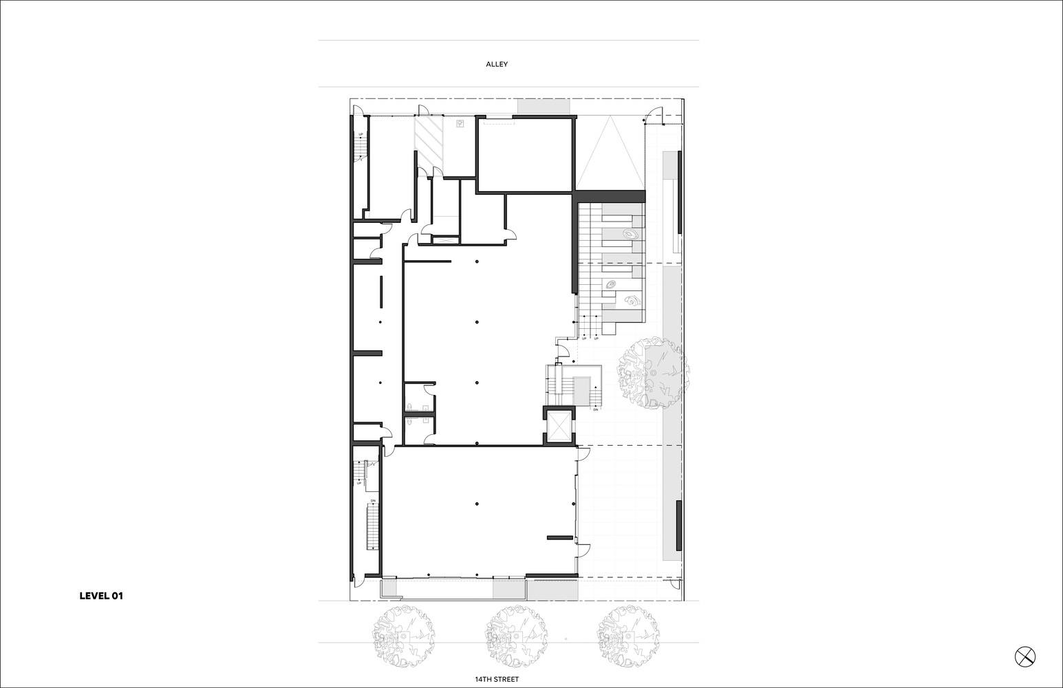
建筑师提供的文字描述。1640 14th St是一个由洛杉矶开发商Redcar有限公司委托、HGA的Santa Monica工作室设计的地面式混合用途商业综合体。该物业被设想为一个有弹性和可持续的平台,用于开展各种商业活动,重点是加利福尼亚州圣莫尼卡市中心的长期社区福祉。这个三层的城市填充项目位于一个历史悠久的工业区,位于一个前拖车场的旧址上,拥有三层创意办公空间和一个一楼的临街餐厅,所有这些都围绕着一个中央庭院。
Text description provided by the architects. 1640 14th St is a ground-up, mixed-use commercial complex commissioned by Los Angeles-based developer Redcar Ltd. and designed by the Santa Monica studio of HGA. The property was envisioned to serve as a resilient and sustainable platform for a mix of commercial activities focusing on long-term community well-being in the heart of Santa Monica, California. Located in a historically industrial neighborhood on the site of a former tow yard, the three-story urban infill project features three floors of creative office space and a ground-floor, street-facing restaurant—all organized around a central courtyard.

© Eric Staudenmaier

Plan - 1st Floor

© Eric Staudenmaier
1640 14th St的通风设计体现了客户设定的一系列目标,这些目标旨在解决居住者的健康和生产力问题,并增强当地社区可用设施的多样性。该开发项目扩大了圣莫尼卡市的城市规划目标,增加了周边地区的步行能力,成为分隔圣莫尼卡南北的州际公路上以行人为中心的连接点。花园大道将公园连接到北部,启动了一系列街区中间的通道,以支持更大的城市总体规划,旨在在公共交通范围内创建更具包容性的行人网络,并与海岸相连。
1640 14th St's airy design gives expression to a series of objectives set by the client that address the health and productivity of its occupants and enhance the diversity of amenities available to the local community. Amplifying the City of Santa Monica's urban planning objectives, the development increases the walkability of the surrounding area as a pedestrian-focused link in an area split by the interstate that divides North and South Santa Monica. A garden paseo connects a park to the north, initiating a series of mid-block passageways in support of a larger civic master plan, designed to create more inclusive pedestrian networks in the range of mass transportation and connected to the coast.

© Eric Staudenmaier
在一楼,一个2500平方英尺的餐厅空间向帕塞奥和街道开放,创造了一个吸引人的社区设施,使该场地恢复了公共用途。由此产生的共享公共空间,结合无缝融合室内和室外体验的关键设计元素,鼓励步行和自发聚会。36000平方英尺的创意办公空间占据了建筑的一楼、二楼和三楼,采用双层高度,朝北采光。它们的弯曲形状源于该地区历史仓库的弯曲条形框架屋顶,被截断,它们使建筑沿着主立面呈现出独特的轮廓,并生动地定义了屋顶景观。所有楼层均设有私人室外露台,供租户使用。
On the ground floor, a 2,500-square-foot restaurant space opens to the paseo and street, creating an inviting community amenity that revives the site for public use. The resulting shared commons, in conjunction with key design elements that seamlessly blend indoor and outdoor experiences, encourage walking and spontaneous gathering. 36,000 square feet of creative office space occupy the building's first, second and third floors in double-height environments daylit by north-facing clerestories. Their curved shape is derived from the curved stick frame roofs of historic warehouses in the area, truncated, they give the building its distinct profile along its main façade as well as animate and define the roofscape. Private outdoor terraces are integrated on all floors for tenant use.

© Eric Staudenmaier

Section 02

© Eric Staudenmaier

© Eric Staudenmaier
从人类福祉的角度考虑的弹性和可持续性全面地为建筑的设计和运营提供了信息,并通过自然通风、采光和景观的整合得到了强调。该建筑可持续设计的一个基石是屋顶平台上的格子安装太阳能光伏系统,该系统比圣莫尼卡目前的ZNE Reach Code要求高出一倍多,以减少其对市政基础设施的资源足迹负担。除了多种被动策略外,该建筑还利用天然、区域和当地采购的材料来进一步限制其碳足迹,例如当地制造的定制钢门窗。尽管安装了大量玻璃,但建筑中不需要增加冷却设备容量,并且通过使用主要面向北方的高性能、高遮阳玻璃来保持透明度。此外,建筑窗墙系统中的可操作窗户实现了交叉通风。
Resiliency and sustainability conceived through the lens of human well-being comprehensively inform the building's design and operation and are highlighted through natural ventilation, daylighting and the integration of landscape. A cornerstone element of the building's sustainable design is the trellis-mounted solar photovoltaic system on the rooftop deck that exceeds Santa Monica's current ZNE Reach Code requirements by more than double to reduce its resource footprint burden on municipal infrastructure. Along with multiple passive strategies, the building utilizes natural, regional and locally sourced materials to further limit its carbon footprint, such as locally fabricated custom steel windows and doors. Despite extensive glazing, increased cooling equipment capacity is not needed in the building, and transparency is maintained through the use of high-performing, highly shaded glass that predominantly faces north. Additionally, operable windows in the building's window wall system enable cross-ventilation.

© Eric Staudenmaier

Elevation
除了能源效率,建筑的整体可持续性还通过其促进居住者及其居住的更大的物理和文化环境的健康和福祉的能力得到了进一步的提升,因为它将私人空间归还给公众使用。这可以从建筑的paseo等元素中看出,paseo是一个中心的社会特征,经过景观美化,为聚会提供了各种机会。paseo体现了设计对自然在促进幸福感方面的重要性的强调,以及它在创造社交和社区建设环境方面的价值,该环境与建筑外部的所有主要流通路径相连。屋顶花园继续与自然环境密切合作,太阳能棚架具有双重用途,为租户提供阴凉,让他们舒适地聚集在另一个被广泛的本土植物环绕的户外场所。
Beyond energy efficiency, the overall sustainability of the building is furthered by its capacity to foster the health and wellness of both its occupants and the larger physical and cultural setting in which it resides, as it returns private space to public use. This can be seen in elements such as the building's paseo, a central social feature, landscaped to provide varied opportunities for gathering. The paseo epitomizes the design's emphasis on the importance of nature in contributing to a sense of well-being and its value in creating a setting for socializing and community building that links to all primary circulation pathways on the building's exterior. The rooftop garden continues the close collaboration with the natural environment, where the solar trellises serve a dual purpose in providing shade for tenants to comfortably gather in another outdoor location surrounded by extensive native plantings.

© Eric Staudenmaier