Grecov House/ARQBR建筑与城市设计
Grecov House / ARQBR Arquitetura e Urbanismo
场地与环境的完美融合:Grecov House 项目最令人印象深刻的特质在于其对场地环境的深刻理解与巧妙运用。建筑师充分利用了地块的自然坡度,将建筑巧妙地融入原生河岸森林的景观之中。通过两层楼的设计,建筑实现了与地形的完美融合,并在半地下层创造了直接通向景观的视野,这种设计手法不仅增强了居住体验,更实现了建筑与自然的对话。开放的北向立面,战略性地设置开口,最大程度地引入自然光线和周围的景色,使住宅成为一个观景平台,真正实现了“居住于自然之中”的设计理念。
空间布局的巧妙与功能性:项目的空间布局体现了建筑师对居住者生活方式的深刻洞察。首层采用开放式设计,将客厅、餐厅、厨房、烧烤区等功能区域巧妙地融为一体,形成一个开放的社交空间,鼓励互动和交流。同时,这个开放空间与室外露台无缝连接,创造了内外通透的居住体验。半地下层的私密空间则为居住者提供了安静的休憩场所,这种动静结合的空间布局,兼顾了社交需求与私密性,体现了建筑师对功能性与生活方式的深刻理解,创造了舒适、宜居的生活环境。
材料与细节的匠心独运:Grecov House 在材料选择和细节处理上体现了对品质的极致追求。建筑师巧妙地将手工设计的元素融入现代设计之中,如生态砖和现浇混凝土的运用,赋予了建筑独特的质感和温度。整体地板的延伸,则在视觉上统一了空间,营造出简洁流畅的氛围。客厅的横向天窗设计,不仅提供了充足的自然采光,更营造出混凝土板漂浮于空中的视觉效果,突显了建筑的现代感与轻盈感。这些细节体现了建筑师对材料、光线和空间的精准把控,赋予了建筑独特的生命力。

© Joana França

© Joana França
建筑师提供的文字描述。该地块位于DF-140郊区的住宅Alphaville II公寓内。从原生河岸森林的角度来看,房屋分为两层,利用地形的自然坡度将景观融入项目中。主入口面向公寓的内部,有一块连接两个特定体积的木板。对面的立面朝北,战略性地放置了开口,可以欣赏周围的自然风光。
Text description provided by the architects. The plot is located in the Residential Alphaville II condominium, on the outskirts of DF-140. With a view of the native riparian forest, the house is constructed on two levels, taking advantage of the natural slope of the topography to integrate the landscape into the project. The main entrance, facing the internal part of the condominium, features a wooden panel that connects two defined volumes. The opposite facade, facing north, has strategically placed openings to allow contemplation of the surrounding nature.

© Joana França

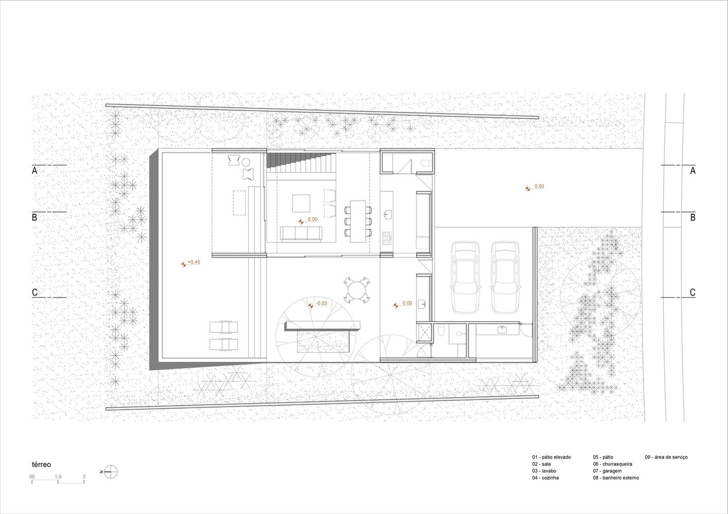
Plan - Ground floor

© Joana França

© Joana França

© Joana França
一楼的设计将客厅/餐厅、厨房、客用浴室、烧烤区和外部社交浴室融为一体。这种整合形成了一个露台,既是居民的观景台,也是他们的社交空间。在半地下层,私密区域提供了一个更为预留的空间,包括办公室和套房。这一层低于自然地面,在视线高度可以直接看到景观,将这一层与邻近的自然环境连接起来。
The ground floor is designed to integrate the living/dining room, kitchen, guest bathroom, barbecue area, and an external social bathroom. This integration forms a patio that functions as both an overlook and a socializing space for the residents. On the semi-underground level, the intimate area provides a more reserved space, including an office and suites. This level is below the natural ground level, offering a direct view of the landscaping at eye level, connecting this tier to the adjacent nature.

© Joana França

© Joana França

Section A

© Joana França

© Joana França
这座房子结合了手工设计的元素,如生态砖和现浇混凝土,而整体地板延伸到整个生活区,建立了一个空间统一。客厅的横向天窗允许自然光进入,给混凝土板一种漂浮在空间中的感觉,突显了白天的存在。
The house combines elements of handcrafted design, such as eco-bricks and in-situ concrete, while a monolithic floor extends throughout the living area, establishing a spatial unity. Lateral skylights in the living room allow natural light to enter, giving the concrete slab the sensation of floating in space and highlighting the presence of daylight throughout the day.

© Joana França