林南楼/TOOB工作室
Linh Nam House / TOOB STUDIO
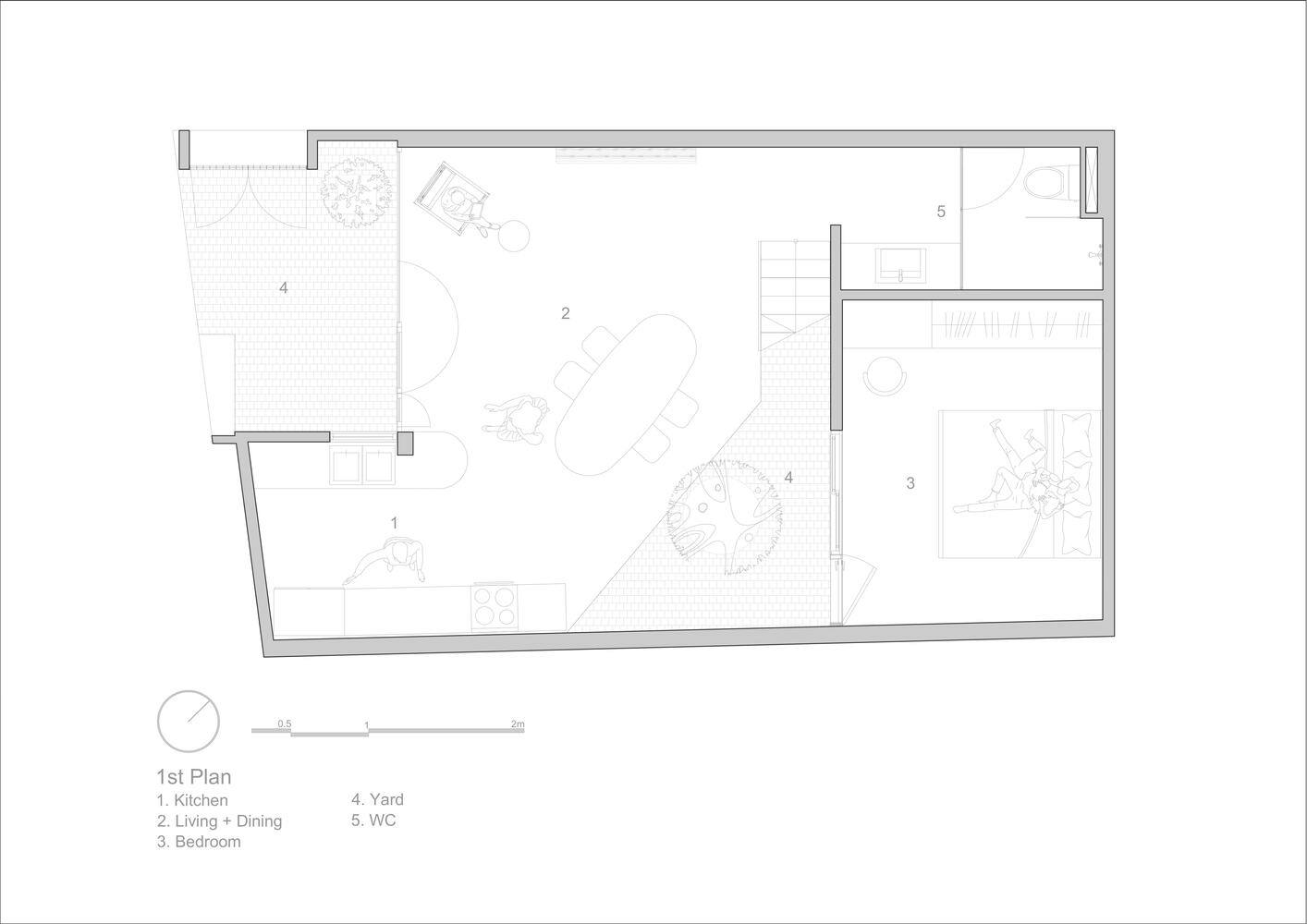
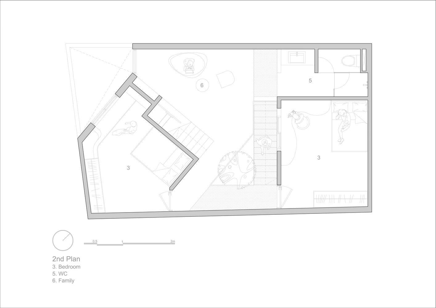
设计巧思与空间利用:林南楼项目最引人注目的亮点在于其对有限空间的巧妙利用。该项目位于密集的四层建筑之间,仅通过一条1.5米宽的小巷进入,这本身就构成了一个巨大的挑战。建筑师巧妙地将这种限制转化为优势,创造了一个独特的“城市山谷”。项目的核心在于对屋顶空间的重新定义,在城市环境中,屋顶常常被忽视,而林南楼却将其转化为一个开阔的、高架的活动空间。这种设计不仅提升了居住品质,也为居民提供了与自然光线和微风亲密接触的机会,极大地丰富了生活体验。
光影与材料的对话:林南楼项目对光线的运用堪称典范。建筑师精心设计,使自然光线能够深入渗透到建筑的每一个角落。光线穿过开放的结构,轻柔地抚摸着独特的材料表面,并在隐蔽的角落里形成迷人的光影效果。这种设计手法将光线赋予了生命,使之成为空间叙事的一部分。建筑内部仿佛变成了神秘的洞穴,阳光成为了主角,唤醒了整个生态系统,营造出一种沉思的氛围。这种对光线的精妙掌控,不仅提升了空间的视觉效果,更增强了居住者的情感体验。
和谐共生与创新解决方案:该项目展现了建筑设计在应对限制与挑战时的强大力量。林南楼通过拥抱其所处的环境,在看似矛盾的条件下找到了意想不到的解决方案。每一平方米都讲述了一个关于人、光线和城市连接的故事。这种设计理念体现了建筑师对当地环境的深刻理解和对居住者需求的精准把握。通过这种方式,林南楼不仅是一栋建筑,更是一个城市中的绿洲,一个连接人类、自然和城市肌理的桥梁。它证明了建筑设计可以在有限的空间内,通过巧妙的创意实现居住的舒适性、实用性与美观性的完美结合。

© Triệu Chiến

© Triệu Chiến
建筑师提供的文字描述。坐落在密集的四层建筑中,Linh Nam House是一个建筑之谜,只能通过1.5米宽的小巷进入。该项目与周围环境和谐融合,在不断演变的城市景观中创造了一个独特的“城市山谷”。
Text description provided by the architects. Nestled among dense four-story buildings, Linh Nam House emerges as an architectural enigma, accessible only through a 1.5-meter-wide alleyway. Harmoniously integrated into its surroundings, the project creates a unique "urban valley" within the evolving cityscape.

© Triệu Chiến
在繁忙的城市生活节奏中,屋顶往往被遗忘,但林南楼颠倒了这一逻辑。通过保持适度的高度并利用相邻的边界墙,屋顶变成了一个广阔的高架空间。沐浴在阳光和微风中,这个区域成为家庭回忆的舞台——孩子们自由探索的游乐场,父母在亲密的户外聚会中聚会的宁静环境,充满了温暖和联系。
In the bustling rhythm of urban life, rooftops are often forgotten, but the Linh Nam House reversed that logic. By maintaining a modest height and utilizing adjacent boundary walls, the rooftop transforms into an expansive elevated space. Bathed in sunlight and breeze, this area becomes a stage for family memories—a playground for children to freely explore and a serene setting for parents to gather during intimate outdoor gatherings, infused with warmth and connection.

© Triệu Chiến

© Triệu Chiến

First Floor Plan

Second Floor Plan

© Triệu Chiến
建筑空间精心打造,让自然光深入渗透。此外,白天的光线透过开放的结构,轻轻地抚摸着独特的材料表面,然后在隐藏的角落里徘徊,就好像房子里的每个空间都在告诉自己的故事。
The architectural space is meticulously crafted to allow natural light to permeate deeply. Moreover, the rays of the day seep through open structures, gently caressing unique material surfaces before lingering in hidden corners, as if each space in the house tells its own story.

© Triệu Chiến

Third Floor Plan

© Triệu Chiến

© Triệu Chiến
在想象中,当强光成为主角时,房子变成了一个神秘的洞穴。整个生态系统在其明亮的目光下觉醒,培养了一种沉思的节奏,将日常生活变成了人们与空间的对话。
In imagination, when the strong overhead light becomes the protagonist, the house transforms into a mystical cavern. Where an entire ecosystem awakens beneath its luminous gaze, fostering a contemplative rhythm, turning daily routine into people's dialogues with space.

© Triệu Chiến

Section

© Triệu Chiến

© Triệu Chiến
Linh Nam的房子是通过拥抱它的背景来接近的,在那里,看似矛盾的条件产生了意想不到的解决方案。每一平方米都讲述了一个关于人性、光线和城市连通性之间平衡的故事,这证明了建筑在协调约束和创造力方面的力量。
Linh Nam house is approached by embracing its context, where seemingly paradoxical conditions gave rise to unexpected solutions. Every square meter narrates a story of balance between humanity, light, and urban connectivity—a testament to architecture's power to harmonize constraints with creativity.

© Triệu Chiến