松山Tomo no Kai/Ogawa Nishikori建筑师事务所的“房子”
"House" for Matsuyama Tomo-no-Kai / Ogawa Nishikori Architects
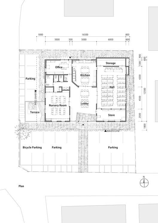
外观与空间布局:该项目的核心在于其对“大房子”形象的巧妙运用。巨大的山墙屋顶不仅赋予建筑标志性的外观,更成为组织内部空间的母题。建筑师巧妙地将空间围绕中央大厅布局,确保了流畅的动线和灵活的使用方式。这种布局兼顾了亲密聚会和大型活动的需求,在保持人性化尺度的同时,也营造出强烈的社区氛围。这种统一的形式下,各个功能区域和谐共存,形成一个富有凝聚力的整体。这种设计手法体现了建筑师对社区需求的深刻理解以及对空间利用的精湛掌控。
光线与通风设计:建筑师在屋顶设计中融入了高侧窗,通过抬升山墙结构的一部分,引入自然光线,并增强了通风效果。这些开口的位置经过精心设计,以应对盛行风向,实现柔和的气流。同时,它们在一天中投射出不断变化的光影,营造出丰富的视觉体验。深檐的设置则延伸至南侧和西侧,形成半遮蔽的室外空间,模糊了室内外的界限。这些空间既是室内的延伸,也是更为封闭舒适的区域,促进了互动和交流。这种对光线、通风以及内外空间关系的细致处理,是该项目的一大亮点。
结构与材料选择:该项目采用了一种密集的梁布局,并结合膝盖支撑,最大限度地减少了对长跨度木材的需求,从而可以使用标准材料。这种有节奏的框架在整体屋顶下定义了空间单元,视觉上打破了建筑的尺度感。光束和支架的重复使用,营造出光影的动态变化,改变了人们对空间的感知。通过平衡清晰的结构逻辑和空间丰富性,设计师创造了一个灵活而吸引人的环境,支持日常活动,并促进用户之间的联系。这种对结构与空间关系的巧妙融合,体现了建筑师对材料和建造的深刻理解。

© Nao Takahashi

© Nao Takahashi
建筑师提供的文字描述。该项目涉及重建一个以社区为基础的设施,旨在分享有关家庭事务和儿童教育的知识。这座新建筑位于爱媛县松山市郊区,可容纳从婴儿到老年人的各种用户,为旨在改善家庭生活的各种活动提供了空间。
Text description provided by the architects. This project involves the reconstruction of a community-based facility designed to share knowledge about household affairs and children's education. Located in the suburbs of Matsuyama, Ehime Prefecture, the new building accommodates a broad range of users, from infants to seniors, fostering a space for diverse activities aimed at improving family life.

© Nao Takahashi

© Nao Takahashi

Floor Plan

© Nao Takahashi

© Nao Takahashi
一个巨大的山墙屋顶定义了这座建筑的存在,使其具有熟悉的“大房子”外观。在这种统一的形式下,空间围绕中央大厅排列,确保了无缝移动和灵活使用。布局既支持亲密聚会,也支持大型活动,在保持人性化氛围的同时培养社区意识。
A large gabled roof defines the building's presence, giving it the familiar appearance of a "big house." Beneath this unifying form, spaces are arranged around a central lobby, ensuring seamless movement and flexible use. The layout supports both intimate gatherings and larger events, fostering a sense of community while maintaining a human-scaled atmosphere.

© Nao Takahashi

© Nao Takahashi

Section

© Nao Takahashi
屋顶通过提升山墙结构的一部分,引入了自然光并增强了通风,从而融入了高侧窗。这些开口的位置是为了应对盛行风向,允许温和的气流,同时在一天中投射出不断变化的光线模式。深檐向南和向西延伸,形成半遮蔽的室外空间,模糊了室内外的界限。这些空间既可以作为内部的开放式延伸,也可以作为更封闭、更舒适的区域,鼓励互动。
The roof incorporates high-side windows by lifting parts of the gable structure, introducing natural light and enhancing ventilation. Positioned in response to prevailing wind patterns, these openings allow gentle airflow while casting shifting patterns of light throughout the day. Deep eaves extend to the south and west, forming semi-sheltered outdoor spaces that blur the boundary between inside and outside. These spaces function both as open extensions of the interior and as more enclosed, comfortably scaled areas that encourage interaction.

© Nao Takahashi
该结构系统具有密集的梁布局和膝盖支撑,最大限度地减少了对大跨度木材的需求,并允许使用标准材料。这种有节奏的框架巧妙地定义了总体屋顶下的空间单元,在视觉上打破了其规模,同时保持了一个有凝聚力的整体。光束和支架的重复创造了光影的动态相互作用,根据视角改变了对空间的感知。通过平衡清晰的结构逻辑和空间丰富性,该设计创造了一个适应性强、引人入胜的环境,支持日常活动并促进用户之间的联系。
The structural system features a dense beam layout with knee braces, minimizing the need for long-span timber and allowing the use of standard materials. This rhythmic framework subtly defines spatial units beneath the overarching roof, visually breaking down its scale while maintaining a cohesive whole. The repetition of beams and braces creates a dynamic interplay of light and shadow, altering perceptions of space depending on the viewing angle. By balancing clear structural logic with spatial richness, the design creates an adaptable, engaging environment that supports everyday activities and fosters connections among users.

© Nao Takahashi