易卜生故居/Felipe Hess Arquitetos
Ibsen House / Felipe Hess Arquitetos
内敛与开放的巧妙融合:这座易卜生故居最引人注目的亮点在于其内外空间的巧妙互动。建筑师在外立面上采用了封闭的设计,与街道隔绝,营造出一种内敛的氛围,仿佛一个坚实的堡垒。然而,一旦进入内部,这种封闭性便被打破,取而代之的是流畅的路径、露台和阳台,将自然光线和空气引入室内,使得空间变得开放而通透。这种内外反差的处理手法,不仅增加了建筑的趣味性,也为居住者创造了一个私密而宜人的生活环境,实现了建筑与居住者之间的情感连接。
材料的质感与植物的生机:该项目在材料选择上展现出独特的品味,深色的、朴素的砖块与遍布整个建筑的绿色植物形成了鲜明的对比。这种对比并非简单的视觉效果,而是建筑师对材料与自然之间关系的深刻理解。砖块的坚固和内敛,与植物的生机勃勃形成了互补,赋予了建筑一种沉稳而充满活力的特质。植被不仅美化了建筑外观,还改善了室内环境,创造出一种自然而舒适的生活氛围。屋顶休闲区的设计更将城市景观融入其中,提供了开阔的视野,增强了建筑与环境的互动性。
垂直空间的精准运用:鉴于有限的土地面积,建筑师巧妙地采用了垂直解决方案。通过对不同功能区域的精心布局,如一楼的开放空间与后院花园相连,中层的套房和家庭房面向露台和阳台,以及屋顶的休闲区,实现了空间的有效利用和功能的合理分配。这种垂直布局不仅最大限度地利用了空间,还为每个区域都创造了独特的体验。整个设计体现了对空间、光线和通风的精心考量,使得这座建筑在有限的土地上,也能为居住者提供舒适、宜人的生活环境,展现了设计师卓越的空间掌控能力。

© Fran Parente

© Fran Parente
建筑师提供的文字描述。易卜生故居位于怡和,是一座密集而内省的建筑。其调整后的体积定义了一种引人注目的存在,立面与街道隔绝,在内部,露台和阳台之间有一条更流畅的路径。这种物质性强化了这种解释:黑暗、朴素的砖块与遍布整个房子的植被形成鲜明对比,从开放墙上的春天到将绿色植物引向屋顶的钢缆。
Text description provided by the architects. Located in Jardins, Ibsen House stands out as a dense and introspective building. Its adjusted volume defines a striking presence, with facades that close off from the street and reveal, internally, a more fluid path between patios and balconies. The materiality reinforces this interpretation: the dark, austere brick contrasts with the vegetation that spreads throughout the house, from the spring that rests on the open wall to the steel cables that guide the greenery towards the roof.

© Fran Parente

© Fran Parente
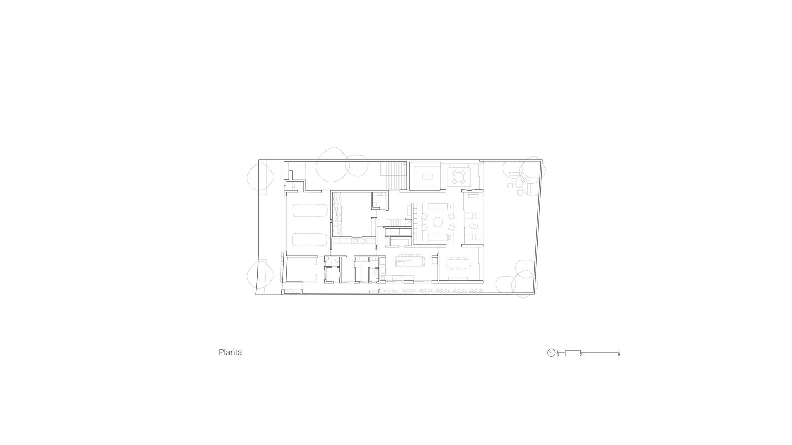
有限的土地导致了垂直解决方案,以精确的方式分配用途。在一楼,客厅、餐厅和厨房空间与后院花园相连,而酒窖和健身房则占据了更多的私人区域。在中层,四间套房和一间家庭房面向露台和小阳台,引入自然光和通风。在屋顶上,休闲区向城市景观开放,可以欣赏到城市天际线的景色。弗拉维亚的景观设计补充了这个空间,创造了一个高架露台,绿化与建筑元素融为一体。
The limited land led to a vertical solution, distributing the uses in a precise manner. On the ground floor, the living, dining and kitchen spaces connect to the backyard garden, while the wine cellar and gym occupy more private areas. On the middle level, four suites and a family room face patios and small balconies, bringing in natural light and ventilation. On the roof, the leisure area opens up to the urban landscape, taking advantage of the view of the city skyline. Flávia's landscaping complements this space, creating an elevated terrace where greenery blends with architectural elements.

© Fran Parente

© Fran Parente

Floor Plan

© Fran Parente

© Fran Parente
这座房子深受墨西哥建筑的影响,以轮廓分明的街区为结构,以凹槽和凹处为标志。然而,物质性从Barragán的鲜艳色彩中转移出来,选择了一个更清醒的调色板,与居民的形象相协调——一对有两个孩子的年轻夫妇。其结果是一个坚固的建筑,平衡了坚固性和渗透性,创造了一个城市避难所,绿地逐渐占据了空间并包围了它。
With a strong influence from Mexican architecture, the house is structured in well-defined blocks, marked by recesses and recesses. The materiality, however, moves away from Barragán's vibrant colors and opts for a more sober palette, in tune with the profile of the residents – a young couple with two children. The result is a robust architecture that balances solidity and permeability, creating an urban refuge where greenery gradually takes over the space and envelops it.

© Fran Parente