2024年巴黎奥运会运动员村/旅行+躺椅。
Athletes' Village Paris 2024 Olympic Games / TRIPTYQUE + chaixetmorel.
可持续性与适应性: 巴黎奥运会运动员村项目展现了卓越的设计理念,其核心在于对可持续性和适应性的深度考量。建筑师将可持续设计融入建筑的方方面面,例如采用低碳混凝土、木质外墙板,促进自然通风,并配置绿色屋顶和太阳能板。更值得称道的是,项目在奥运会后将转型为社会住房,这种可逆性设计不仅实现了资源的有效利用,也为社区的可持续发展奠定了基础。这种设计思路是对未来城市建筑的积极探索,体现了对环境保护和社区长远发展的深刻责任感。
混合功能与社区营造: 项目在设计中巧妙地融合了混合功能与社区营造的理念。通过在一层设置共享绿地和商业区,促进社区互动和社交联系。这种设计打破了传统建筑的单一功能,营造出充满活力的多功能环境,确保社区在奥运会后的持续活力。同时,项目的设计也考虑到不同人群的需求,提供灵活的单元布局,以适应社区的长期发展。这种对社区融合和社会联系的关注,使得建筑不仅仅是居住空间,更是连接居民、促进交流的场所,体现了以人为本的设计理念。
协作与创新: 该项目展示了建筑师在协作与创新方面的卓越能力。Triptyque与其他国际建筑事务所紧密合作,共同打造一个和谐统一的城市景观,充分体现了协作精神。同时,项目在可持续材料和建筑技术上进行了大胆创新,如低碳混凝土的应用,以及木质外墙板的运用。这种对新材料和技术的探索,以及与时俱进的设计理念,使该项目成为未来建筑的典范。这种协作精神和创新精神,使得该项目不仅仅是一个建筑项目,更是一个推动城市发展和建筑进步的重要里程碑。

© Salem Mostefaoui

© Salem Mostefaoui
建筑师提供的文字描述。Triptyque自豪地在巴黎圣丹尼斯的奥运村和残奥村推出了其最新项目。Universeine大楼旨在在2024年夏季奥运会期间容纳450名来自美国的运动员,是可持续城市发展和适应性建筑的先驱。奥运会结束后,该项目将被改造成社会住房,成为Cinéma周围快速发展的地区一个充满活力的新社区的一部分。
Text description provided by the architects. Triptyque proudly presents its latest project in the Olympic and Paralympic Village in Saint-Denis, Paris. Designed to accommodate 450 athletes from the United States during the 2024 Summer Games, the Universeine building is a pioneering example of sustainable urban development and adaptable architecture. After the Games, the project will be transformed into social housing, part of a new and vibrant neighborhood in the rapidly evolving district around the Cité du Cinéma.

© Salem Mostefaoui
位置和背景-该建筑位于Universeine生态区和奥运村和残奥村ZAC的中心,是巴黎北部转型的中心。历史上工业和经济不发达,该地区正在进行更新,成为可持续和包容的城市生活模式。该建筑的主立面由Triptyque设计,与2024年巴黎奥林匹克运动员村Cinéma城市形成了一个公共广场,创造了一个视觉上可识别且引人入胜的城市地标。
Location and Context - Situated in the heart of the Universeine eco-district and the ZAC of the Olympic and Paralympic Village, the building is at the center of the transformation of northern Paris. Historically industrial and economically underdeveloped, this area is undergoing a renewal to become a model of sustainable and inclusive urban living. The main façade of the building, designed by Triptyque, forms a public square with the Cité du Cinéma, Olympic Athletes Village Paris 2024, creating a visually recognizable and engaging urban landmark.

© Salem Mostefaoui

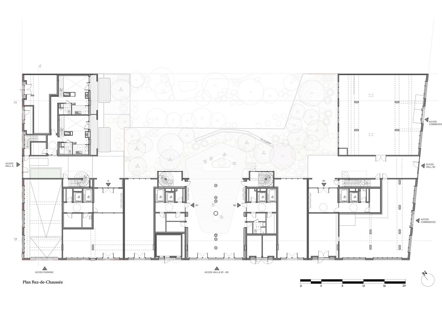
Plan - Ground Floor
建筑概念:可逆性和混合用途设计-该项目的建筑方法解决了两个关键的当代挑战:可逆性与混合用途功能。这些住宅分布在四个展馆中,其布局旨在优化光线和通风。公共区域朝外,而卧室则位于内部,以确保隐私和热舒适。该建筑的外骨骼为每个单元提供了一个私人阳台,面积从5平方米到21.7平方米不等,为居民创造了额外的户外空间,让他们与自然和周围环境联系起来。Triptyque的联合创始人Guillaume Sibaud说:“我们的想法不是创建一个运动员村,而是为城市创造一个新的社区,促进不太受欢迎地区的变革。”。奥运会期间,300个房间将作为美国代表团的临时住所,每个房间约15平方米。9月后,这些单元将被改造成125套30至105平方米的公寓,用于长期社会住房。
Architectural Concept: Reversibility and Mixed-Use Design - The architectural approach of the project addresses two crucial contemporary challenges: reversibility and mixed-use functionality. The residences are distributed across four pavilions, with layouts designed to optimize light and ventilation. The common areas face outward, while the bedrooms are positioned internally to ensure privacy and thermal comfort. The building’s exoskeleton provides each unit with a private balcony, ranging from 5 to 21.7 square meters, creating additional outdoor spaces for residents to connect with nature and their surroundings. "The idea was not to create an athletes' village, but a new neighborhood for the city, promoting change in less favored areas," said Guillaume Sibaud, co-founder of Triptyque. During the Games, the 300 rooms will be used as temporary housing for the United States delegation, each approximately 15 square meters. After September, these units will be converted into 125 apartments ranging from 30 to 105 square meters for long-term social housing.

© Salem Mostefaoui
可持续设计特征-Universeine项目寻求法国E+C-(能源+碳)标签下的E3C1认证,以表彰具有正能源和低碳排放的建筑。该建筑的低碳混凝土核心被包裹在木板中,用于隔热和覆层。这种分层结构减少了温度波动,最大限度地减少了人工冷却的需要,并鼓励交叉通风,进一步提高了能源效率。主动和被动可持续性措施包括:
•促进生物多样性的主动绿色屋顶。
•将水作为城市冷却的资源。
•用于可再生能源发电的太阳能电池板安装。
•充足的自然光和谨慎的太阳能定位,以减少能源消耗。广泛的自行车存储容量和电动汽车充电站促进了可持续的出行。
Sustainable Design Features - The Universeine project seeks E3C1 certification under France's E+C- (Energy + Carbon) label, recognizing buildings with positive energy and low carbon emissions. The building's low-carbon concrete core is wrapped in wooden panels for insulation and cladding. This layered structure reduces temperature fluctuations, minimizes the need for artificial cooling, and encourages cross-ventilation, further enhancing energy efficiency. Active and passive sustainability measures include:
• An active green roof to promote biodiversity.
• The use of water as a resource for urban cooling.
• Solar panel installations for renewable energy generation.
• Ample natural light and careful solar orientation to reduce energy consumption. Extensive bicycle storage capacity and charging stations for electric vehicles promote sustainable mobility.

© Salem Mostefaoui
社区融合和社会联系-该项目的设计通过一楼的共享绿地和商业区促进社区互动和社会联系。商店和办公室将创造一个充满活力的多功能环境,确保该社区在奥运会后的活力。奥运会结束后,该社区将拥有约6000名居民,并将创造6000个就业机会,此外还有3公顷的公园和7公顷的花园。公寓的模块化和可逆设计将提供灵活性,以适应社区的长期需求。
Community Integration and Social Ties - The design of the project promotes community interaction and social ties through shared green spaces and commercial areas on the ground floor. Shops and offices will create a dynamic mixed-use environment that will ensure the neighborhood's vitality beyond the Olympic Games. After the Games, the neighborhood will be home to approximately 6,000 residents and will create 6,000 jobs, supported by three hectares of parks and seven hectares of gardens. The modular and reversible design of the apartments will offer flexibility to adapt to the community's needs over time.

© Salem Mostefaoui
协作与创新-Universeine项目反映了定义奥运村整个发展的协作精神。Triptyque与Solideo(负责建造村庄的公司)和其他国际建筑公司密切合作,创造了一个有凝聚力和前瞻性的城市景观。每家公司都展示了自己的建筑模型,并根据小组讨论进行了调整,从而形成了一个更加融合和谐的社区。
Collaboration and Innovation - The Universeine project reflects the spirit of collaboration that defined the entire development of the Olympic Village. Triptyque worked closely with Solideo (the company responsible for constructing the village) and other international architecture firms to create a cohesive and forward-looking urban landscape. Each firm presented its building models and made adjustments based on group discussions, resulting in a more integrated and harmonious neighborhood.

Section
Sibaud说:“奥运村是一个重大项目,在可持续发展目标和材料使用方面是一个开创性的社区。”。“令人鼓舞的是,美国代表团大楼是由法国-巴西办事处设计的,将成为未来发展的典范。”
"The Olympic Village was a major project, a pioneering neighborhood in terms of its sustainability goals and material use," said Sibaud. "It is inspiring to know that the building for the United States delegation was designed by a Franco-Brazilian office and will serve as a model for future developments."

© Salem Mostefaoui
可持续城市生活的遗产-除了在奥运会中的作用外,Universeine大楼还体现了Triptyque对环境责任和以社区为中心的设计的承诺。通过将尖端的可持续发展实践与灵活的、以人为本的建筑相结合,该项目将在未来许多年对巴黎大都市区产生持久的影响。
A Legacy of Sustainable Urban Living - Beyond its role in the Olympic Games, the Universeine building exemplifies Triptyque's commitment to environmental responsibility and community-centered design. By combining cutting-edge sustainability practices with flexible, human-centered architecture, this project will leave a lasting impact on the metropolitan region of Paris for many years to come.

© Salem Mostefaoui