K2住宅/线圈Kazuteru Matumura建筑师事务所
K2 House / coil Kazuteru Matumura Architects
空间布局与私密性:该项目最突出的亮点在于其巧妙的空间布局和对私密性的精妙处理。通过错层设计,建筑师成功地在两层楼的生活空间之间创造了“距离感”,保证了居住者在共享生活的同时拥有各自的独立空间。这种设计手法不仅提升了居住体验,也巧妙地化解了住宅在紧邻环境中的隐私问题。此外,倾斜的天花板和私人阳台的设计也进一步增强了这种私密性,同时确保了良好的采光和通风,体现了设计者对细节的极致追求。建筑师将公共区域和楼梯巧妙地融入错层产生的空间,实现了结构的平衡。
光线与自然元素的巧妙运用:项目对光线和自然元素的运用堪称典范。通过朝向花园和阳台的大开口,以及精心定位的天窗,建筑师将充足的自然光引入室内,营造出通透、明亮的空间氛围。这种设计不仅提升了居住的舒适度,也有效地减少了对人工照明的依赖,体现了对可持续发展的关注。同时,以现有树木为中心的后花园设计,为居住者提供了亲近自然的场所,也为住宅增添了生机。建筑师还考虑了宠物猫的需求,设置开放式阁楼和带百叶窗的露台,将室内外空间巧妙地结合起来,营造出人与自然和谐共生的居住环境。
细节设计的个性化与趣味性:该项目在细节设计方面展现了建筑师的匠心独运和对个性化的追求。楼梯间的渐变壁纸、精美的格子、大面积的镜面运用,都为住宅注入了独特的个性和趣味性。这些细节的设计不仅丰富了空间层次,也提升了整体的美学价值。这种对材料和元素的巧妙运用,使得住宅在满足功能需求的同时,也成为了一个充满艺术气息的生活空间。此外,建筑师还考虑到猫的需求,例如开放式的阁楼空间和带百叶窗的露台,都体现了设计的人性化,使建筑更贴近居住者的生活。

© Yoshiro Masuda

© Yoshiro Masuda
建筑师提供的文字描述。我们计划在大阪南部一个安静的住宅区为两个家庭和他们的五只猫建造一个家。我们的愿景是创造一个互联的家,每个空间都保持一种距离感,而光和风可以到达房子的每个角落。
Text description provided by the architects. We planned a home in a quiet residential area of the southern part of Osaka for two families and their five cats. The vision was to create a connected home where each space maintains a sense of distance while light and wind reach every corner of the house.

© Yoshiro Masuda

© Yoshiro Masuda

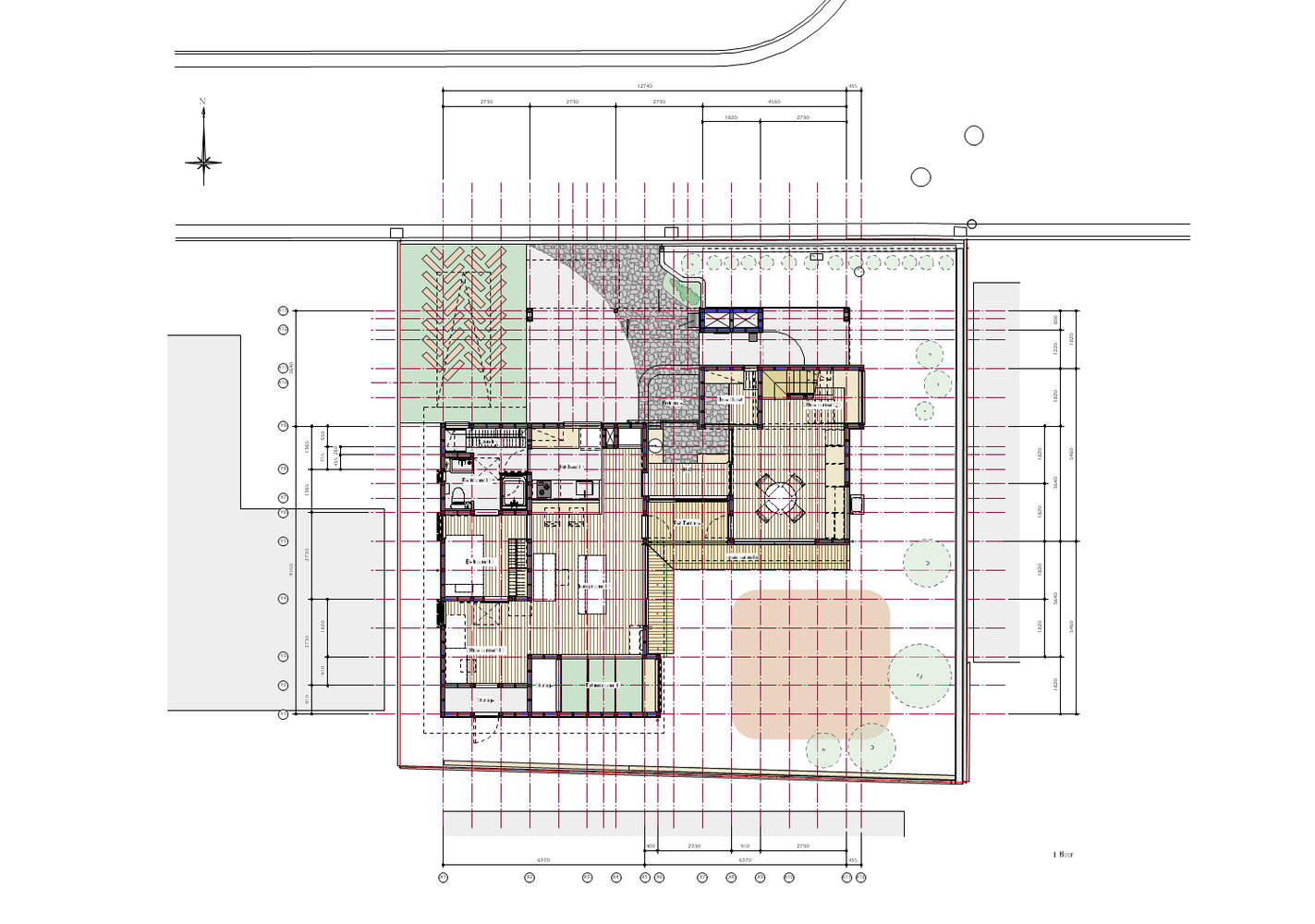
Floor Plan 1F

© Yoshiro Masuda
房子后面设计了一个新的花园,以房产东南角的一棵现有的夏橙和无花果树为中心,这是一个家庭喜欢园艺的地方。二楼设有宽敞的倾斜天花板和私人阳台,其设计确保了与邻近房屋的私密性。
A new garden was designed behind the house, centered around an existing summer orange and fig tree in the southeast corner of the property, a spot where the family enjoys gardening. The second floor features a spacious sloped ceiling and a private balcony, its design ensuring privacy from neighboring houses.

© Yoshiro Masuda
通过将两层楼的生活空间设计成相互抵消,我们为两层楼创造了距离和隐私感。公共主入口和楼梯间占据了偏移所创造的空间,为整个结构带来了平衡。
By designing the living spaces on the two floors to be offset from one another, we created distance and a sense of privacy for the two. The common main entrance and stairwell occupy the space created with the offset, bringing balance to the entire structure.

© Yoshiro Masuda

Section

© Yoshiro Masuda
朝向花园和阳台的大开口,再加上精心定位的天窗,为家里带来了充足的自然光。阁楼被设计成一个开放的存储空间,有外露的横梁,为猫创造了一个自由漫步的有趣区域,让新鲜空气流向各个楼层。在入口的后面,我们创建了一个俯瞰院子的有盖露台,其特色是百叶窗可以柔化光线,为猫提供一个安全的空间来享受外面的空气。
Large openings facing the garden and balcony, combined with carefully positioned skylights, invite plenty of natural light into the home. The attic is designed as an open storage space with exposed beams, creating a fun area for the cats to roam freely and allowing fresh air to flow to all levels. At the back of the entrance, we created a covered terrace overlooking the yard, featuring louvers that soften the light and provide a safe space for the cats to enjoy the outside air.

© Yoshiro Masuda
在整个房子里,俏皮的设计元素增添了个性,比如楼梯间WhO的渐变壁纸、Tanihata的复杂格子,以及一面覆盖在墙上的大镜子,为空间创造了开放性。在主人的精心照料下,花园将茁壮成长,我们期待着看到房子随着时间的推移变得更加舒适。
Throughout the house, playful design elements add character, such as the gradient wallpaper by WhO in the stairwell, intricate latticework by Tanihata, and a large mirror covering a wall to create openness in the space. Together with the garden, which will grow richly with the care of the owner, we look forward to seeing the house become more comfortable as time goes by.

© Yoshiro Masuda