马塔之家/Marise Calçavara建筑事务所
Casa da Mata / Marise Calçavara Arquitetura
设计理念与环境融合:马塔之家项目最令人印象深刻的亮点在于其对环境的巧妙回应。建筑师将房屋巧妙地融入森林之中,而非突兀地矗立。通过内嵌的玻璃和长露台,建筑实现了室内外空间的无缝连接,让居住者能够沉浸于自然之中。这种设计理念体现了建筑师对“根茎思维”的理解,即将建筑与周围环境紧密相连,而非孤立存在。项目利用地块的自然落差,巧妙地将功能区域分层布置,最大化地利用了空间,并创造出丰富的视觉层次和居住体验。
结构创新与空间表达:项目的精髓在于其结构设计和空间布局。建筑师通过轻盈的钢筋混凝土结构,实现了房屋的轻盈感,与周围的植被形成了和谐的对比。悬臂结构的设计,使得建筑在视觉上更加通透和开放。屋顶泳池与室内空间的巧妙结合,创造了独特的视觉体验,也解决了结构上的难题。楼梯的设计是该项目的点睛之笔,它不仅连接了各个空间,更成为一个雕塑般的元素,增添了建筑的艺术感。这种结构与空间的巧妙结合,赋予了建筑独特的韵律和诗意。
细节处理与材料运用:马塔之家项目在细节处理和材料运用方面也展现了卓越的品质。建筑师对光线的运用、材料的选择以及空间尺度的把握都非常到位。例如,泳池深度的设计巧妙地影响了电视室的天花板高度,创造了更舒适的居住体验。项目对原生植被的保护与利用,进一步强化了建筑与自然的联系。建筑师在创作过程中,始终关注如何将建筑与环境和谐统一,并最终通过精湛的工艺和对细节的执着,呈现出一个令人印象深刻的建筑作品。这种对细节的关注,使得整个项目更具深度和生命力。

© Marco Luty

© Marco Luty
建筑师提供的文字描述Three,一个位于连接视野中的数字符号。这座有三层楼的森林房屋隐藏在植被中,同时向植被敞开。通过它的嵌入式玻璃,观察者可以观察周围的环境,当他们漫步时,他们会穿过同时连接室内外的长露台。在一个12x30米的地块上,我们面临着一个挑战,这个挑战转化为意义、纹理和研究的生产,有着挫折的要求和一个包含客户整个需求计划的建筑的梦想。
Text description provided by the architects. Three, a numerical symbol that inhabits the horizon of connections. The forest house, with its three floors, hides among the vegetation while simultaneously opening up to it. Through its recessed glass, the observer contemplates the surroundings, and as they wander, they traverse long patios that connect the interior and exterior simultaneously. On a 12x30 meter plot, with setback requirements and the dream of a construction that encompasses the client’s entire program of needs, we faced a challenge that transformed into a production of meanings, textures, and studies.

© Marco Luty
在寻求房屋与土地的比例时,钢筋混凝土结构的轻盈和精致的比例与地块附近的原生植被区域建立了联系,这体现了根茎思维的努力;我们把梁凹进去,从中出现了一个技术解决方案。对于那些在外面的人来说,它提供了一种线性视图的体验,这两块板似乎出现在一个干净轻便的悬臂中。在夏天,屋顶游泳池可以欣赏到日落的景色,瞥见短暂的橙色,带着它度过一天。这个项目中可能成为障碍的问题带来了一个解决方案:游泳池的深度塑造了电视室的天花板,天花板的高度更舒适,在日常舒适中拥抱着房子。然后,在桌子上的纸上的小图表中,出现了贯穿整个地块的三个基本区域。在地下室,利用三米落差的地形:流通和车库;在房子的核心:心,向侧林开放的公共区域;矩形表示私密区域。最后,在屋顶上,休闲区与观景台、游泳池、花园和对自由的沉思相得益彰。
In seeking the proportion of the house to the land, with the lightness of the reinforced concrete structure and delicate proportions to create a connection with the area of native vegetation adjacent to the plot, the effort of rhizomatic thinking was present; we recessed the beams, from which a technical solution emerged. For those outside, it provides the experience of a linear view of the two slabs that seemingly appear in a clean and light cantilever. For summer days, a rooftop pool offers a view of the sunset, glimpsing the ephemeral orange that departs, taking the day with it. What could have become an obstacle in the project brought a solution: the depth of the pool shapes the ceiling of the TV room, with a cozier ceiling height, embracing the house in everyday comfort. Then, in small diagrams on paper on the table, the three fundamental areas that traverse the plot emerged. In the basement, taking advantage of the topography with a three-meter drop: circulation and garage; in the core of the house: the heart, the common area that opens to the side forest; and in a rectangle, the intimate area. Finally, on the rooftop, the leisure area that does justice to the lookout housing the pool, gardens, and the contemplation of freedom.

© Marco Luty

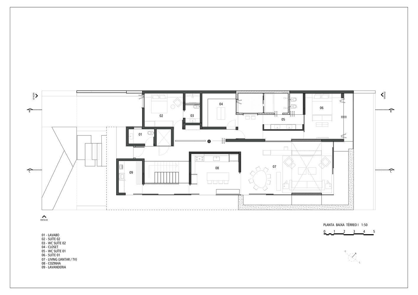
Plan - Ground floor

Sketch
如何设计出既轻盈又与自然融为一体的东西?伴随着整个创作过程的一个问题,最终,这件作品之所以成为现实,是因为它的结构设计。一个连接所有环境的楼梯,在雕塑般的来回中,在跨度之间的亲密素描中产生了混凝土的魅力。三个。自然。密封。现在,架构已经写好了,在绘图之后,在技术之后,在执行之后。诗拥抱了房子,就像拥抱了爱情。
How to design something that seems light and at the same time connects with nature? One of the questions that accompanied the entire creative process, and in the end, the work only materialized because of the design of its structure. A staircase that connects all environments, in a sculptural back-and-forth, produced a fascination of concrete, in an intimate sketch between spans. Three. Natural. Hermetic. Now, the architecture has been written, after the drawing, after the technique, after the execution. The poetry embraced the house, as one embraces a love.

© Marco Luty