伦卡住宅/住宅
Renka Residence / raumus
尊重与传承:该项目最令人印象深刻的,在于其对原有碾米厂建筑的尊重和传承。设计师没有选择推倒重建,而是巧妙地利用了现有的结构,将70年历史的建筑赋予了新的生命。这种翻修的方式不仅节约了资源,减少了环境负担,更重要的是保留了建筑的历史文脉,让它与社区的记忆紧密相连。这种对历史的尊重,使得建筑不仅仅是一个居住空间,更是一个承载着过去、连接着未来的文化载体,体现了建筑师对场地精神的深刻理解和对可持续设计的积极实践。
功能与空间的巧妙融合:项目的另一个亮点在于其对功能与空间的巧妙布局。原有的碾米厂由单层和两层建筑组成,设计师将其改造为住宅和零售空间。这种设计策略既满足了居住需求,又将建筑向社区开放,创造了互动和交流的可能。一层零售空间的设计,使得建筑不再是封闭的,而是成为了社区的一部分,促进了当地的商业活力和文化交流。两层住宅部分的设计,则充分考虑了现代生活方式的需求,在保留建筑原有特色的同时,提供了舒适宜居的居住环境。
可持续与社区的和谐统一: 项目所体现的可持续发展理念是其核心价值所在。设计师不仅关注建筑本身的可持续性,更注重其与社区之间的和谐关系。将旧建筑改造为样板房,旨在传达翻修的吸引力,并促进当地社区的参与。考虑到样板房的生命周期,设计师力求打造一个能被社区长期喜爱、并与社区共同成长的空间。这种设计理念超越了单纯的建筑设计,更体现了对社会责任的担当和对未来可持续发展的思考。项目最终呈现的,是一个融合了历史、功能、社区和可持续发展的优秀案例。

© Norihito Yamauchi

© Norihito Yamauchi
建筑师提供的文字描述RENKA是福冈县前朝仓镇中心一座有70年历史的碾米厂翻修的样板房。它经过翻修,以适应现代生活方式,并传达了翻修的吸引力和可能性。
Text description provided by the architects. RENKA is a model house for renovating a 70-year-old rice mill in the center of the former Asakura Town in Fukuoka Prefecture. It was renovated to suit modern lifestyles and built to convey the appeal and possibilities of renovation.

© Norihito Yamauchi

© Norihito Yamauchi

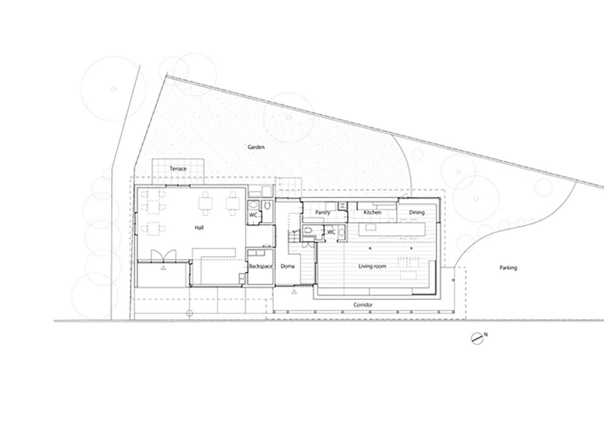
Floor Plan 1F

© Norihito Yamauchi
一座长期受到当地人喜爱和支持的碾米厂被翻修成一座现代化的住宅,在保留建筑历史和魅力的同时,最大限度地利用了这座建筑。
A rice mill that has long been loved and supported by the local people was renovated into a modern residence that makes the most of the building's history and charm while preserving it.

© Norihito Yamauchi

© Norihito Yamauchi

© Norihito Yamauchi
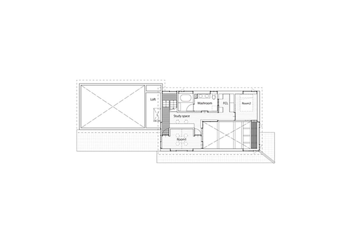
该建筑最初是一座碾米厂,由一栋用于碾米的单层建筑和一栋主要用作仓库的两层建筑组成。由于其作为独立住宅的规模很大,两层楼的部分被翻修成一栋房子,一层楼被设计成一个零售空间,向社区开放。
Originally a rice mill, the building consisted of a one-story building used for rice milling and a two-story building used mainly as a warehouse. Because of its large scale as a stand-alone residence, the two-story portion was renovated as a house, and the one-story portion was designed as a retail space, open to the community.

© Norihito Yamauchi

© Norihito Yamauchi

Floor Plan 2F

© Norihito Yamauchi
目前,日本各地都在建造许多样板房,但其中许多样板房在大约五年后重建,因为设计被消耗了,它们变得陈旧。为了应对这种情况,我们试图创建一个可持续的样板房,该样板房将受到当地社区的喜爱,并与样板房“加阿尔法”可互换
Currently, many model houses are being built all over Japan, but many of them are rebuilt after about five years because the design is consumed and they become old. In response to this situation, we sought to create a sustainable model house that would be loved by the local community and interchangeably related to the model house 'plus alpha.'

© Norihito Yamauchi