隐藏别墅/i29建筑师
Hidden Villa / i29 architects
整体概念与环境融合:“隐别墅”项目最引人注目的地方在于其对环境的巧妙回应和融合。建筑师巧妙地将别墅隐匿于茂盛的花园之中,不仅保障了居住的私密性,更最大限度地减少了建筑对周围环境的冲击。项目充分利用场地内的景观资源,如古树、开阔视野等,并将这些元素融入到设计中,形成与周围环境的和谐对话。花园的设计并非简单地围绕建筑,而是主动地开辟新的视线,创造了丰富的室外活动空间,使得室内外空间相互渗透,从而实现了人与自然之间的亲密互动。
材料运用与空间布局:项目在材料的选择和空间布局上展现了精湛的设计功底。建筑师通过木材、石材、混凝土和玻璃等多种材料的平衡运用,赋予了建筑精致而奢华的质感。特别是外墙材料的选择,如油处理过的白蜡木和轻质科伦巴砖,在保证美观的同时,也考虑了材料的耐久性和与环境的协调性。空间布局上,别墅内部的生活空间与室外紧密相连,通过双层高的绿植露台,模糊了室内外的界限,创造了通透、宽敞的视觉效果。大型檐篷的设计,既保护了建筑免受阳光直射,又加强了内外空间的联系。
细节处理与室内设计:项目的精髓还体现在对细节的极致追求和室内设计的精心打造。定制家具和内置橱柜与建筑设计融为一体,提升了整体的品质感。深色涂油橡木面板、连续的白色混凝土地板以及天然石材厨房等元素,营造出一种工艺感和温馨的氛围。照明系统的设计也充分考虑了每个空间和情绪的需求,KNX控制系统提供了可适应的氛围设置。花园与别墅的直接连接,包括游泳池、火坑、户外厨房等,进一步丰富了生活体验,构建了景观、建筑和室内设计的和谐统一,使得居住者能够充分感受到自然之美。

© Tim Van de Velde

© Tim Van de Velde
建筑师提供的文字描述荷兰海岸的一个前庄园已被改造成一个公园般的住宅区,重点是保护其文化和历史特征。纪念碑般的树木、独特的建筑和令人惊叹的景色使这个庄园成为一个宜居的好地方。
Text description provided by the architects. A former estate along the Dutch coast has been transformed into a park-like residential area, with a strong focus on preserving its cultural and historical identity. Monumental trees, distinctive architecture, and stunning views make this estate a delightful place to live.

© Tim Van de Velde

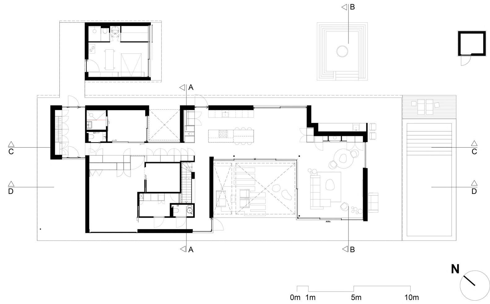
Ground Floor Plan

© Tim Van de Velde
隐别墅坐落在幽静之中,完全被郁郁葱葱的花园所环绕。这确保了隐私并减少了周围环境的影响。一旦进入,一个新的世界就会显现出来。花园的设计开辟了新的视线,并在别墅周围创造了各种可以从别墅欣赏的区域。
Hidden Villa is nestled in seclusion, entirely surrounded by a lush garden. This ensures privacy and reduces the impact of the surrounding environment. Once inside, a new world reveals itself. The garden's design opens up new sight lines and creates various areas around the property that can be enjoyed from the villa.

© Tim Van de Velde
室内的生活空间与室外紧密相连。正如花园在丰富中展开一样,别墅提供了各种各样的居住空间。远景和迷人的有利位置营造出一种透明感,双层高的绿植露台增强了宽敞感。这些露台连接了一楼的生活区,将它们融入了内外之间的流动关系中。大型檐篷加强了这种联系,让居民可以在别墅周围自由走动。顶棚的深度与太阳的路径对齐,尽管外墙大量使用了玻璃,但可以保护别墅免受过热。
The living spaces inside are deeply connected to the outdoors. Just as the garden unfolds in richness, the villa offers a diverse array of spaces to inhabit. Long views and intriguing vantage points create a sense of transparency, with spaciousness enhanced by double-height patios filled with greenery. These patios connect the first-floor living areas, integrating them into the fluid relationship between inside and out. Large canopies strengthen this bond, allowing residents to walk freely around the villa. The canopy's depth is aligned with the sun's path, protecting the villa from overheating despite the extensive use of glass in the façades.

© Tim Van de Velde

Section

© Tim Van de Velde
木材、石头、混凝土和玻璃等材料的平衡混合,使外观呈现出精致、奢华的感觉。入口、露台和上层立面覆盖着经过油处理的白蜡木,而地面和附属建筑的南立面和东立面则由轻质科伦巴砖制成。地板和天花板从室内无缝延伸到室外,白色混凝土地板环绕着房子,形成了檐篷的外边缘。天花板采用灰泥装饰,极简主义的铝框架和大玻璃窗格增强了室内与花园之间的联系。
A balanced blend of materials—wood, stone, concrete, and glass—gives the exterior a refined, luxurious feel. The entrance, patios, and upper-level façades are clad in oil-treated ash wood, while the south and east façades on the ground level and the outbuilding are made of light Kolumba bricks. The flooring and ceilings seamlessly extend from indoors to outdoors, with white concrete floors surrounding the house and forming the outer edges of the canopies. The ceilings are finished with stucco, while minimalist aluminum frames and large glass panes enhance the connection between the interior and the garden.

© Tim Van de Velde
定制家具和内置橱柜提升了室内,这些元素融入了别墅的建筑设计。深色涂油橡木面板、连续的白色混凝土地板和天然石材厨房特色等丰富材料提供了一种工艺感。浴室和厕所装饰着各种瓷砖。照明根据每个空间和情绪精心定制,KNX控制系统提供可适应的氛围设置。
Custom-made furniture and built-in cabinetry elevate the interior, with these elements integrated into the villa's architectural design. Rich materials like dark-oiled oak panels, continuous white concrete floors, and natural stone kitchen features provide a sense of craftsmanship. Bathrooms and toilets are adorned with a variety of tiles. Lighting is carefully tailored to each space and mood, with KNX-controlled systems offering adaptable ambiance settings.

© Tim Van de Velde
花园的几个区域与别墅直接相连,包括游泳池和火坑。户外厨房和遮篷下的遮蔽露台为放松提供了诱人的场所。绿植环绕着别墅,穿过露台,将自然与建筑结构融为一体,在景观、建筑和室内设计之间创造了和谐的相互作用。
Several areas of the garden are directly linked to the villa, including a swimming pool and fire pit. The outdoor kitchen and sheltered terraces beneath the canopy offer inviting spots for relaxation. The greenery wraps around the villa, weaving through the patios and blending nature with the built structure, creating a harmonious interplay between the landscape, architecture and interior design.

© Tim Van de Velde