博洛尼亚亚平宁山脉/LADO建筑中的房子
House in the Bolognese Apennines / LADO architetti
建筑与环境的和谐共生:该项目最引人注目的地方在于它成功地将建筑融入了博洛尼亚亚平宁山脉的自然环境中。设计师没有选择简单的复制,而是通过对传统建筑语言的现代演绎,巧妙地回应了当地的文脉。单色的黑色外壳是关键,它既使建筑融入周围环境,又形成了鲜明的对比,突出了其独特的存在感。这种设计选择体现了对环境的尊重和对整体景观的考量,而非仅仅是建筑本身。此外,材料的选择、开放的地面设计,都进一步强化了建筑与土地之间的联系,创造了视觉和感官上的连续性,增强了建筑与环境的对话。
可持续设计的技术与实践:项目的精髓还体现在其对可持续建筑技术的应用上。X-LAM墙体和层压木地板的运用,减轻了结构重量,适应了特殊的地形条件。木纤维隔热材料、光伏板和雨水收集系统的结合,构成了一个完整的生态系统,体现了对环境的责任感。这不仅仅是技术的堆砌,而是将可持续理念融入建筑设计的各个环节。通过这种方式,设计师创造了一个在能源效率和生态友好方面都表现出色的居住空间。这种技术与设计的结合,展示了建筑师在追求美学的同时,对环境责任的承诺,为未来的建筑项目树立了典范。
内外空间的流畅过渡:这座房子的设计还体现了对室内外空间关系的巧妙处理。室内极简主义的设计风格,配以巨大的玻璃窗,将室外的自然景观引入室内,使光线成为空间的主角。通过取消周边人行道和采用可渗透材料,建筑与土地之间的界限变得模糊,创造了一种无缝的体验。这种设计手法,不仅拓展了视觉空间,更重要的是,它将居住者与周围的自然环境紧密联系在一起,使房屋成为一个观察自然、感受自然的理想场所。这种内外空间的流畅过渡,赋予了建筑一种独特的魅力,提升了居住的品质和体验。

© Marcello Mariana

© Marcello Mariana
建筑师提供的文字描述这座房子位于博洛尼亚亚平宁山脉一个非常小的村庄的郊区,海拔750米,坐落在一片明显的农业景观中。该项目旨在在该地区的传统建筑技术和当代建筑语言之间找到平衡。
Text description provided by the architects. Located on the outskirts of a very small village in the Bolognese Apennines, at an altitude of 750 meters, the house is set within a landscape of a distinctly agricultural character. The project was conceived with the aim of finding a balance between the region's traditional building techniques and a contemporary architectural language.

© Marcello Mariana

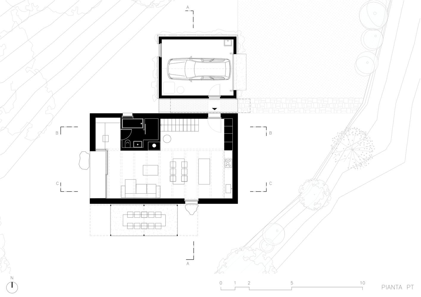
Ground Floor Plan

© Marcello Mariana
该建筑取代了20世纪70年代的一座建筑,考虑到监管限制和地形的特殊地形,其拆除和重建需要深入反思。规定的高度、规定的体积和与相邻农村道路的所需距离是严格的限制,引导设计朝着基本和功能性的解决方案发展。其结果是一个干净的几何体,现代地重新诠释了亚平宁山脉房屋的传统坡屋顶特征。剪影被分为两个不同的部分,创造了一系列形式,唤起了语境,而不仅仅是对乡土建筑的再现。
The building replaces a 1970s structure, whose demolition and reconstruction required deep reflection, taking into account regulatory constraints and the particular topography of the terrain. The imposed height, defined volume, and required distance from the adjacent rural road were strict constraints that guided the design towards an essential and functional solution. The result is a clean geometric volume that modernly reinterprets the traditional pitched roof, characteristic of Apennine houses. The silhouette is broken into two distinct volumes, creating a play of forms that evokes the context without resorting to a mere reproduction of vernacular architecture.

© Marcello Mariana
该建筑以其单色的黑色外壳而闻名,这是一种激进的选择,可以让房子融入自然环境,同时脱颖而出。车库与主空间分开,但通过门廊连接,引入了一种自然融合的元素:一个设计用于种植攀援植物的金属格架,软化了几何形状,减少了整体视觉冲击。外部路径使用可渗透材料——排水砾石和稳定土壤——避免了人工空间的刚性,并保持了房屋和土地之间的直接关系。无周边人行道:建筑直接从地面伸出,确保与地面的视觉和材料连续性。
The architecture is distinguished by its monochromatic black envelope—a radical choice that allows the house to blend into the natural surroundings while simultaneously standing out. The garage, separate from the main volume but connected via a portico, introduces an element of natural integration: a metal trellis designed to host climbing plants, softening the geometries and reducing the overall visual impact. The use of permeable materials for external paths - draining gravel and stabilized soil - avoids the rigidity of artificial spaces and maintains a direct relationship between the house and the land. No perimeter sidewalks: the building emerges directly from the earth, ensuring visual and material continuity with the ground.

© Marcello Mariana

Section AA

© Marcello Mariana
从建筑的角度来看,该项目采用了面向可持续性的技术解决方案:X-LAM墙和层压木地板减轻了结构的重量,使其更能适应地形的低承载能力。木纤维隔热材料提高了能源效率,而光伏板(为电池供电)和雨水收集系统则构成了一个完整的生态愿景。
From a construction perspective, the project embraces technological solutions geared toward sustainability: X-LAM walls and laminated wood floors lighten the structure, making it more adaptable to the terrain's low load-bearing capacity. Wood fiber insulation enhances energy efficiency, while photovoltaic panels (which power a battery) and a rainwater collection system complete an integrated ecological vision.

© Marcello Mariana
内部体现了极简主义美学。一楼通过一扇大玻璃窗向西朝向山谷,让光线成为空间的真正主角。上层的设计是为了最大限度地发挥功能:两间卧室(可以很容易地转换成三间)和一间浴室,以合理的方式排列,以增强空间感。巨大的玻璃表面消除了室内外的界限,将房子变成了周围自然的观景台。
The interiors reflect a minimalist aesthetic. The ground floor opens westward toward the valley through a large glass window, allowing light to become the true protagonist of the space. The upper floor is designed for maximum functionality: two bedrooms (which can be easily converted into three) and a bathroom, arranged in a rational way to enhance the perception of space. The large glass surfaces dissolve the boundary between indoors and outdoors, transforming the house into an observatory of the surrounding nature.

© Marcello Mariana