石头水灯/Christoph Hesse建筑师事务所
Stones Water Light / Christoph Hesse Architects
设计理念的深度解读:该项目最引人入胜之处在于其深刻的设计理念,建筑师巧妙地将埃德尔湖大坝的形态融入建筑设计中,以“象征性的切割”为概念,创造了一个既是对大坝的致敬,又是对历史文脉的延续。这种设计手法并非简单的形式模仿,而是深入挖掘大坝的内在精神,通过建筑语言表达其历史、文化和生态意义。从建筑的外部轮廓到内部空间,都体现了对大坝内部结构,如隧道和竖井的隐喻,这种设计理念使得游客中心不仅仅是一个观光场所,更是一个承载着记忆和思考的场所,能够引发人们对过去、现在和未来的思考。
空间体验的多维度构建:项目的空间设计充分考虑了游客体验的多样性。建筑师设计了多层次的参观路径,从一楼的社区互动空间,到下沉的博物馆空间,再到可步行的屋顶,为游客提供了不同的视角和体验。特别值得一提的是,博物馆空间中的沉浸式灯光装置,通过光影的变幻,生动地呈现了大坝的历史,使游客在感官上得到极大的满足。这种多维度的空间构建,不仅丰富了游客的参观体验,也使得游客中心成为一个充满活力,能够激发人们情感共鸣的场所。建筑师成功地将建筑、历史、文化和自然融为一体,创造了一个引人入胜的体验空间。
可持续发展的理念融合:“石头水灯”游客中心不仅仅是一个文化场所,也是一个生态可持续的典范。项目选址紧邻联合国教科文组织列出的Kellerwald-Edersee国家公园,体现了对环境的尊重和对可持续发展的承诺。建筑师通过设计,将建筑与周围的自然景观融为一体,最大限度地减少了对环境的影响。此外,项目还注重促进社会和生态可持续性之间的平衡,提供开放的文化空间,鼓励社区互动和教育,从而促进人们对当地文化和自然环境的理解和保护。这种对可持续发展的关注,使得该项目更具社会责任感,也为未来的建筑设计提供了重要的参考价值。

© Laurian Ghinitoiu

© Laurian Ghinitoiu
建筑师提供的文字描述埃德尔湖游客中心石头水灯-德国埃德尔湖石头水灯游客中心为当地人和游客提供了一个开放的文化空间,促进了社会和生态可持续性之间的平衡。该中心紧邻联合国教科文组织列出的Kellerwald Edersee国家公园,旨在探索再生思维和行动,同时纪念该地区丰富的历史。
Text description provided by the architects. Visitor Centre Stones Water Light at Lake Edersee - The Stones Water Light visitor centre at Lake Edersee, Germany, offers both locals and visitors an open cultural space that fosters a balance between social and ecological sustainability. Located directly adjacent to the UNESCO-listed Kellerwald-Edersee National Park, the centre is designed as a venue for exploring regenerative thinking and action while also honoring the region's rich history.

Courtesy of Christoph Hesse Architects

© Laurian Ghinitoiu
与Edersee大坝的紧密联系游客中心概念的核心是与Edersee大坝的紧密联系,这是一个深深植根于当地社区身份的标志性建筑。这座大坝象征着该地区从一个贫困的农村地区转变为一个具有国家意义的目的地,并拥有生动的历史——从100年前帝国时代的建设,到第二次世界大战期间的破坏和重建,再到如今作为绿色能源生产中心和自然和文化景观中的关键地标的作用。
A Strong Connection to the Edersee Dam. At the heart of the visitor centre's concept is its strong connection to the Edersee dam, an iconic structure deeply embedded in the local community's identity. The dam symbolizes the region's transformation from a poor rural area into a nationally significant destination and holds a vivid history - from its construction during the imperial era 100 years ago, its destruction and reconstruction during World War II, to its present-day role as a hub for green energy production and a key landmark in the natural and cultural landscape.

Courtesy of Christoph Hesse Architects

Courtesy of Christoph Hesse Architects

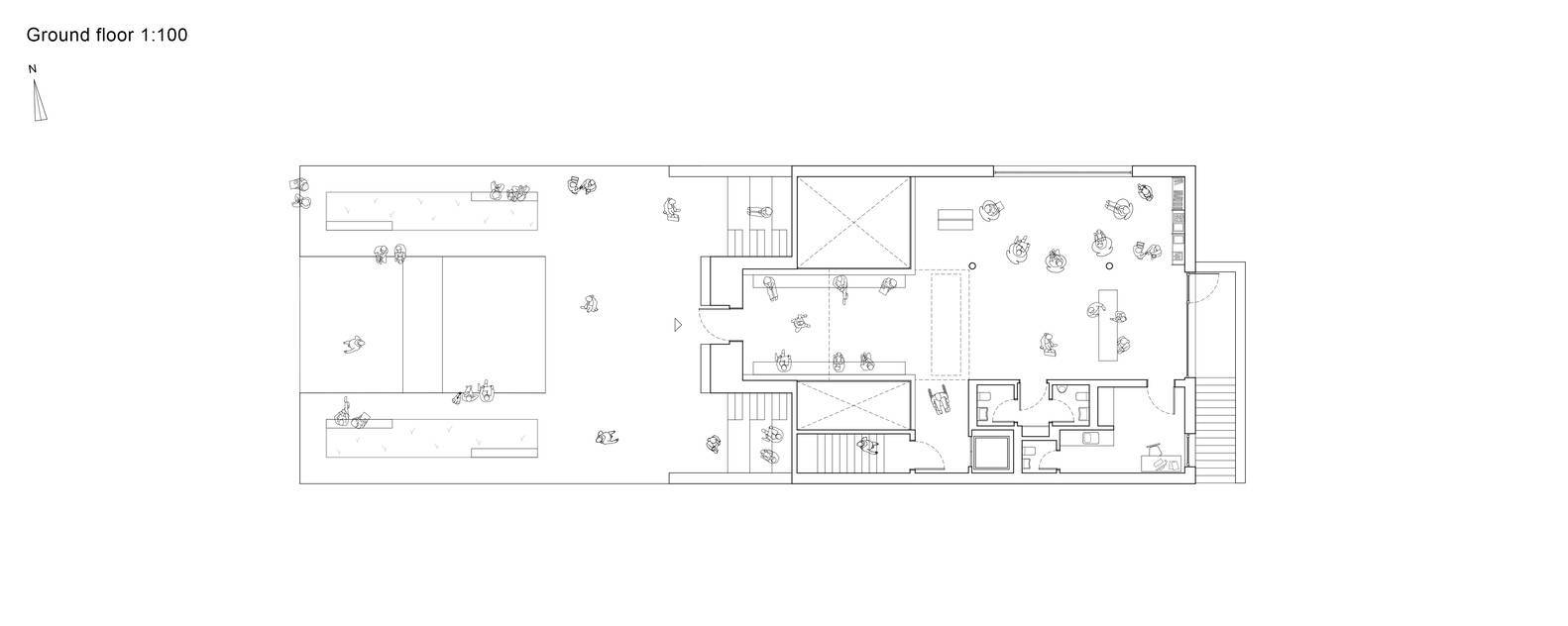
Plan - Ground floor
建筑概念:大坝的象征性切割石头水灯的建筑设计灵感来自穿过大坝的象征性部分,反映了大坝的形式,揭示了由隧道和竖井形成的隐藏内部空间。游客中心是Edersee村中心广场和大坝本身之间的物理和概念联系,加强了其历史和文化意义。这座塔状的建筑耸立在风景之上,为游客提供了湖泊和大坝的全景。门厅的一扇大窗户与大坝形成了视觉联系,将其无缝融入室内体验。
Architectural Concept: A Symbolic Cut Through the Dam. The architectural design of Stones Water Light is inspired by a symbolic section cut through the dam, mirroring its form and revealing hidden inner spaces shaped by tunnels and shafts. The visitor centre acts as a physical and conceptual link between the central square of the village of Edersee and the dam itself, reinforcing its historical and cultural significance. The tower-like structure rises above the landscape, offering visitors panoramic views of the lake and dam. A large window in the foyer creates a visual connection to the dam, seamlessly integrating it into the interior experience.

Courtesy of Christoph Hesse Architects

Section
多层次的游客体验一楼和室外区域作为社区空间,促进聚会、教育和文化交流。在内部,游客将被引导通过一个开放且无缝连接的空间体验,将他们带到一个信息和休息区,然后再下降到较低级别的博物馆空间。在这里,一个沉浸式的灯光装置将大坝生动的历史带到了生活中,让客人以一种大气的方式与过去互动。可步行的屋顶进一步增强了体验,提供了不同的视角,不仅展示了大坝,还展示了周围的自然景观。
A Multi-Layered Visitor Experience. The ground floor and outdoor areas serve as community spaces, fostering gathering, education, and cultural exchange. Inside, visitors are guided through an open and seamlessly connected spatial experience, leading them to an information and lounge area before descending to the lower-level museum space. Here, an immersive light installation brings the dam's vivid history to life, allowing guests to engage with its past in an atmospheric way. The walkable rooftop further enhances the experience, offering different viewpoints that showcase not only the dam but also the surrounding natural landscape.

© Laurian Ghinitoiu

© Laurian Ghinitoiu

Courtesy of Christoph Hesse Architects
一个反思、学习和联系的地方石头水光游客中心提供了一个多层次的体验——一个学习、沉思和与人、自然和历史联系的空间。通过其设计和地理位置,该中心重申了埃德尔湖的文化和生态意义,确保其故事继续激励子孙后代。
A Place for Reflection, Learning, and Connection. The Stones Water Light visitor centre offers a multi-layered experience - a space for learning, contemplation, and connection with people, nature, and history. Through its design and location, the centre reaffirms the cultural and ecological significance of Lake Edersee, ensuring its story continues to inspire future generations.