Openfield House/凯肖·麦克阿瑟
Openfield House / Keshaw McArthur
几何与自然的对话:Openfield House最引人注目的亮点在于它与周围新西兰皇冠山脉的壮丽景观的巧妙融合。建筑师以纯粹的几何形态回应自然,而非简单地将建筑置于环境中。这种“拒绝室内外空间区分”的设计理念,使得住宅成为了一个沉浸于自然体验的载体。从平面图的方形设计,到对当地历史建筑风格的致敬,再到材料的运用,都体现了对自然环境的尊重和呼应。这种设计策略创造了一种和谐共生的关系,使建筑成为景观的延伸,而非突兀的插入。
空间流动的极致:项目在空间处理上的精妙之处在于它对“必要”的极致追求。 通过与Matheson Whiteley的合作,设计师将空间动态限制在最基本的尺度,从而将重点放在居住者与自然环境的互动上。 开放式壁炉作为建筑的中心锚点,向上延伸,仿佛是山地地形的延伸,将室内空间与室外景观紧密联系。此外,建筑师巧妙地运用滑动门和可灵活组合的木质屏风,模糊了室内外空间的界限,营造出一种流畅、开放的居住体验。这种设计手法提升了空间使用的灵活性和可能性,赋予了住宅更强的生命力。
材料的诗意表达: Openfield House对材料的运用并非仅仅停留在实用层面,而是上升到了诗意的表达。建筑师选择原始、真实的材料,如天然石材和木材,这些材料的纹理和色调与周围的自然环境完美融合。设计师将材料视为塑造建筑灵魂的关键因素,将它们转化为对土地的致敬和对人类体验的颂扬。 从混凝土体量到雪松木箱,每一处细节都经过精心考量,强调材料的本质,营造出一种质朴而永恒的美感。这种对材料的尊重,使得建筑不仅仅是一个居住的场所,更是一个能够引发思考和感悟的艺术品。

© Biddi Rowley

© Biddi Rowley
建筑师提供的文字描述Openfield House坐落在新西兰皇冠山脉广阔的山景中,是一个纯粹的几何对象。家庭住宅摒弃了室内和室外空间之间的区别,被设计成在自然环境中生活的载体,有机和无机之间的精心对话,庆祝与地球的真实联系。
Text description provided by the architects. Set within the expansive mountain scape of New Zealand's Crown Range, Openfield House exists as an object of pure geometry. Rejecting distinctions between interior and exterior spaces, the family home is designed as a vehicle for living within the natural context, a curated dialogue between organic and inorganic, a celebration of authentic connection to the earth.

© Biddi Rowley

© Biddi Rowley
由于与英国的Matheson Whiteley合作开发了一个提炼的概念,空间动态仅限于必要的范围。这是一种简洁而诚实的设计回应,同情这片土地的强大能量,以将人们与他们的人类体验联系起来的诗意概念为基础——身体和心灵独立地融为一体。
Owing to a distilled concept, developed in collaboration with UK-based Matheson Whiteley, the spatial dynamic is limited to the necessary. It is an unfussy and honest design response sympathetic to the powerful energy of the land, underpinned by the poetic notion of connecting people to their human experience—the body and mind independently and as one.

© Samuel Hartnett

© Samuel Hartnett

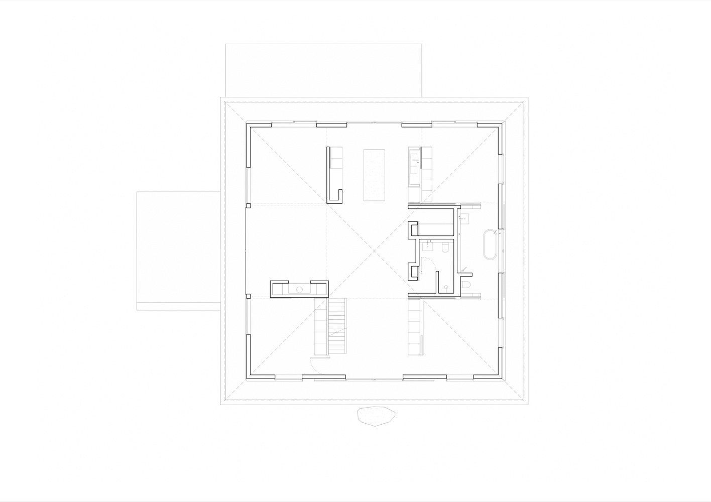
Plan - Ground floor 1.50

Plan - 1st floor 1.50

© Samuel Hartnett
方形平面图和波纹屋顶参考了该地区的历史建筑,如未成年人的小屋和农业棚屋,并采用了合理的网格,以方便根据居住者的需求打开和关闭内部空间。该计划建立了一个连续的领域,其中几个重型混凝土体积在可互换空间的集合中提供了基础。一个大型的开放式壁炉固定着建筑的中心——从地面向上推,这些坚固的混凝土块起到了山地地形的延伸作用,其基础是一个简单的金属屋顶下蜷缩着一堆雪松箱。
A square plan and corrugated roof reference historical structures of the region - such as minor's huts and agricultural sheds - with a rationalised grid to facilitate the opening and closing of interior spaces around the needs of the occupants. The plan establishes a continuous field within which several heavy concrete volumes provide groundedness among the collection of interchangeable spaces. A large open fireplace anchors the building's centre - pushing up from the ground, these solid concrete masses function as an extension of the mountainous terrain, the foundation atop which a collection of cedar boxes huddle under a simple metal roof.

© Biddi Rowley
所考虑的物质约束是为一系列要素服务的;这种关于物质性和构造的方法基于一个抽象的概念,即如果轻质元素被拆除,剩下的将是从地面升起的石头废墟。
The considered material restraint is in service to a hierarchy of elements; the approach to materiality and construction is based on the abstract idea that if the lightweight elements were ever to come down, that which remains would be a ruin of stone objects rising from the ground.

© Biddi Rowley

Section CC 1.50

© Biddi Rowley

© Samuel Hartnett
一个类似于传统日本en的内部周界,将外墙和手势释放到一个间隔、一个停顿、一个延伸的门槛。隐藏式口袋滑动门在该区域内运行,融入固体物质中,并将门槛设置为与周围外部路径相对应的开放度。一个低矮的混凝土竖立物位于周界阈值的中心线之间,在连续的场地内提供定义和强调。这个竖立物支撑着一个外部轨道系统,大型的超滑玻璃门和木屏风在其上滑动,看起来像是在地面上轻轻盘旋。当打开时,混凝土竖立物仍然存在,而细木工制品则恰好相邻,立刻成为墙壁本身的固定装置,模糊了永久性和动态性之间的区别。
An interior perimeter, akin to the traditional japanese en, frees the exterior walls and gestures to an interval, a pause, an extended threshold. Concealed pocket sliding doors operate within this zone, integrating into the solid masses and committing the threshold to an openness that mirrors that of the surrounding exterior path. A low concrete upstand mediates the centre line of the perimeter threshold, providing definition and emphasis within the continuous field. This upstand supports an exterior track system upon which large oversliding glazed doors and timber screens glide, appearing to lightly hover above the ground. When open, the concrete upstand remains while the joinery stows precisely adjacent, at once becoming a fixture of the wall itself, blurring the distinction between the permanent and dynamic.

© Samuel Hartnett

© Samuel Hartnett

Detail_Section 1.10

© Samuel Hartnett

© Samuel Hartnett

© Biddi Rowley
这些错综复杂的系统层层叠加,通过建筑表达的元素赋予了平面图的纯粹性。设计策略旨在保留整个场地的原始能量,将住宅打造成一个有着积极生活方式的家庭的休憩之地,这类似于下午躺在树下的概念。除了基本的实用性外,关键的重点还放在原始、真实的材料调色板上,其纹理和色调是天然石材和木材的有机融合,建立了这座建筑一直作为景观的永久固定装置存在的感觉。
Layered with these intricate systems, the purity of the plan is given substance through elements of architectural expression. The design strategy serves to retain the raw energy across the site, crafting the home as a place of respite for a family with an active lifestyle, an offering similar to the notion of lying under a tree for the afternoon. Alongside essential utility, critical emphasis is placed on a raw, authentic material palette the textures and tones of which are a cohesive integration of natural stone and timber, establishing the sense that this building has always existed as a permanent fixture of the landscape.
© Samuel Hartnett