达拉楼/NAW工作室
DaLa House / NAW Studio
应对西晒的巧妙设计: 达拉楼最引人注目的亮点在于其对当地气候的敏锐回应。面对西向的房屋立面,设计师巧妙地运用水平混凝土板条系统,有效阻挡了刺眼的西晒阳光。更进一步,板条后的立面朝西南方向倾斜,最大程度地利用了风的流动,在炎热的夏季为室内空间带来自然的降温效果。这种设计不仅考虑了建筑的实用性,也提升了居住的舒适度,展现了对被动式设计的深刻理解,将建筑与环境完美地融合在一起,体现了可持续设计的理念。
空间布局的精妙之处: 该项目在有限的78平方米空间内,实现了功能与舒适的完美平衡。设计团队巧妙地将庭院和阳台布置在房屋后部,并通过天窗上的混凝土台阶连接,创造了流畅的视觉连接和多视角的空间体验。开放式的空间、通风口和玻璃门的应用,保证了室内充足的自然采光和空气流通,营造出明亮、舒适的居住氛围。这种设计既兼顾了家庭成员的私密性,又提供了更多互动交流的机会,体现了对居住者生活方式的深入思考。
极简主义风格的完美演绎: 达拉楼以极简主义风格为基调,强调舒适和通风,展现了现代建筑的精髓。室内设计在功能至上的前提下,追求柔和、现代的美学。每一个细节都经过精心考量,从材料的选择到空间的布局,都体现了设计师对品质生活的追求。达拉楼不仅是一个住所,更是一种贴近自然的生活方式的体现,让居住者在每一个宁静的时刻都能感受到与自然的和谐共处。整体设计展现了美学、功能和自然和谐的完美结合。

© D i n h R

© D i n h R
建筑师提供的文字描述DALA House是一座现代化的房子,位于岘港市141 To Hien Thanh。这座面向西方的三层楼高的房子面积为78平方米,分为三间卧室、一间连通的客厅和厨房以及许多公共生活空间。房子的主人是一对有两个小孩的年轻夫妇。朝西的房屋立面设计有水平的混凝土板条系统,有助于限制刺眼的阳光。然而,为了最大限度地利用风,板条后面的立面向西南倾斜,创造了捕捉风和自然冷却生活空间的条件。
Text description provided by the architects. DALA House is a modern house located at 141 To Hien Thanh, Da Nang City. With an area of 78 square meters, this 3-storey house facing the West is divided into 3 bedrooms, a connected living room and kitchen, and many common living spaces. The owner of the house is a young couple with 2 small children. The West-facing house facade is designed with a horizontal concrete slat system, helping to limit the harsh sunlight. However, to make the most of the wind, the facade behind the slat is angled towards the Southwest, creating conditions to catch the wind and cool the living space naturally.

© D i n h R

© D i n h R

Section Perspective

© D i n h R

© D i n h R
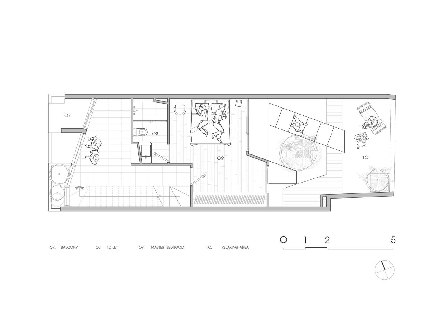
DALA House建在房子后面略微倾斜的一块土地上。为了克服这一缺点,NAW Studio将庭院和阳台相结合的功能空间布置在房子的后面,通过天窗上的混凝土台阶连接起来,在各个区域之间建立了无缝连接,创造了许多不同视角的视觉效果,并在调节建筑内的小气候方面发挥了重要作用。
DALA House is built on a plot of land that is slightly skewed at the back of the house. To overcome this disadvantage, NAW Studio arranged the functional spaces combining the courtyards and balconies towards the back of the house, connected by concrete steps across the skylight, creating a seamless connection between the areas, creating many visual effects with different perspectives, and also playing an important role in regulating the microclimate inside the building.

© D i n h R

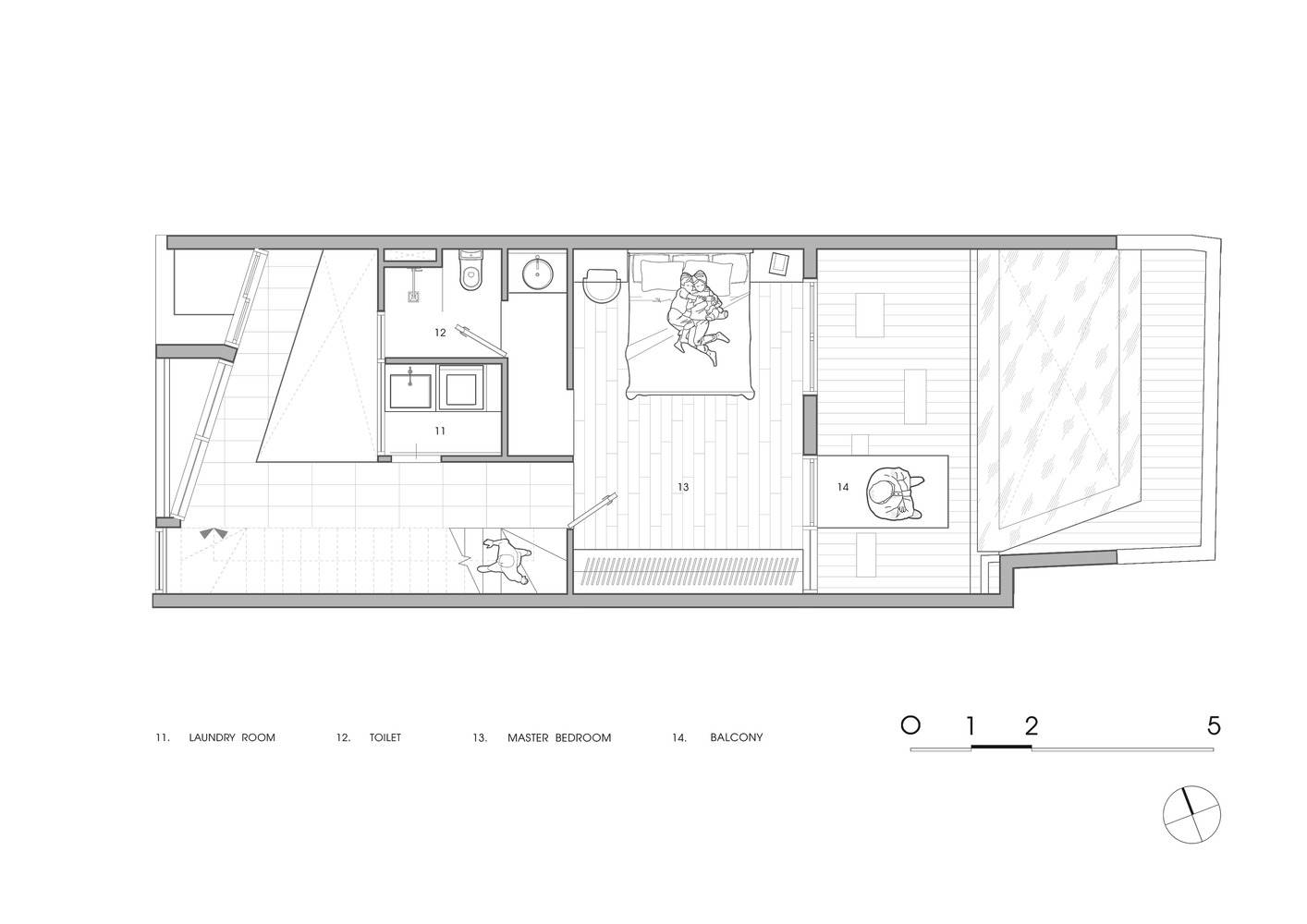
Second Floor Plan

© D i n h R

Third Floor Plan

© D i n h R
这所房子采用极简主义风格设计,强调舒适和通风。内部经过精心挑选,确保了功能性,同时保持了柔和、现代的美感。开放空间、通风口和玻璃门有助于房子始终充满自然光,为房主带来愉快舒适的感觉。空间安排还确保了每个家庭成员的隐私,同时为人们创造了更多互动的机会。
The house is designed in a minimalist style, emphasizing comfort and ventilation. The interior is carefully selected, ensuring functionality while still maintaining a gentle, modern beauty. Open spaces, vents, and glass doors help the house to always be filled with natural light, bringing a pleasant and comfortable feeling to the homeowner. The space arrangement also ensures privacy for each family member while creating opportunities for people to interact with each other more.

© D i n h R
DALDALA House是一个展示美学、功能和自然和谐结合的项目。每一条设计线都很精致,房子不仅是一个居住的地方,还带来了一种接近自然的完整生活体验,帮助主人享受家中的每一个宁静时刻。
DALDALA House is a project that demonstrates a harmonious combination of aesthetics, functionality, and nature. With sophistication in every design line, the house is not only a place to live but also brings a complete living experience close to nature, helping the owner enjoy every peaceful moment at home.

© D i n h R