科巴之家/哈体育场!
Koba House / Estúdio HAA!
选址与环境的深度融合:科巴之家最令人印象深刻之处在于其对环境的深刻理解和巧妙回应。项目并未盲目追求设计上的标新立异,而是充分考量了贡萨尔维斯地区特有的气候条件、地形地貌以及劳动力资源。建筑师在选址时,仔细研究了阳光照射角度,避免了冬季下午被遮挡的区域,体现了对环境的尊重。这种基于对场地深入调研的设计决策,不仅提升了居住的舒适性,更展现了建筑师对可持续发展理念的实践。项目也体现了建筑师对在地文化的尊重,选择与当地劳工合作,并采用当地熟悉的施工技术,避免了对已知设计的简单复制,这种务实的态度也为项目增添了独特的魅力。
空间布局与功能组织的巧妙结合:科巴之家的空间布局设计展现了建筑师对功能与形式关系的深刻理解。项目将住宅划分为四个功能区块,每个区块都服务于特定的需求,并在此基础上实现了空间的灵活组合。特别是,社交区域的巧妙设计是整个项目的点睛之笔。通过分隔私密空间,创造了开放的社交区域,形成了一种流动的空间体验,增加了人与人之间的互动。弯曲木制天花板的设计更是令人印象深刻,营造出独特的视觉效果,仿佛置身于船坞之中,将建筑的功能性与艺术性完美结合。这种对空间组织的创新,使得科巴之家在满足居住功能的同时,也成为了一个充满诗意的场所。
材料运用与建造工艺的匠心独运:科巴之家在材料的选择和建造工艺上展现了建筑师的匠心。项目大量运用木材和陶瓷等天然材料,强调了亲生物设计理念,体现了建筑对自然的尊重和对居住者身心健康的关注。木结构、钢桁架、陶瓷结构砌体和钢筋混凝土的混合结构体系,在保证建筑结构安全可靠的同时,也丰富了建筑的质感和视觉效果。弯曲木制天花板的设计,体现了对建造工艺的精湛把控,以及对细节的极致追求。这种对材料的精心选择和对建造工艺的精益求精,使得科巴之家不仅是一个舒适的居住空间,更是一件值得细细品味的艺术品,将建筑与自然、文化、生活紧密地联系在一起。

© Pedro Kok

© Pedro Kok
建筑师提供的文字描述科巴之家位于米纳斯吉拉斯州南部的贡萨尔维斯,位于曼蒂凯拉山脉内,以其寒冷的高海拔气候而闻名。这片土地海拔1450米,坡度陡峭,占地3.7公顷。由于我们已经在邻近的地块上开发了一个项目,我们非常了解当地的情况,包括物流限制、劳动力可用性和气候特点。从一开始,我们就决定和客户一起使用当地劳动力。例如,承包商与建筑工地住在同一个街区。在开始项目之前,我们分析了团队最熟悉的施工技术,旨在创造一些尊重当地技术词汇的东西,而不复制已知的设计。
Text description provided by the architects. The Koba House is located in Gonçalves, in southern Minas Gerais, within the Mantiqueira Mountains, known for its cold high-altitude climate. The land, situated 1,450 meters above sea level, has a steep slope and covers an area of 3.7 hectares. Since we had already developed a project on the neighboring plot, we were well aware of the local conditions, including logistical restrictions, the availability of labor, and climatic peculiarities. From the beginning, we decided, along with the clients, to use local labor. The contractor, for example, lived in the same neighborhood as the construction site. Before starting the project, we analyzed which construction techniques were most familiar to the team, aiming to create something that respected the local technical vocabulary without replicating an already known design.

© Pedro Kok

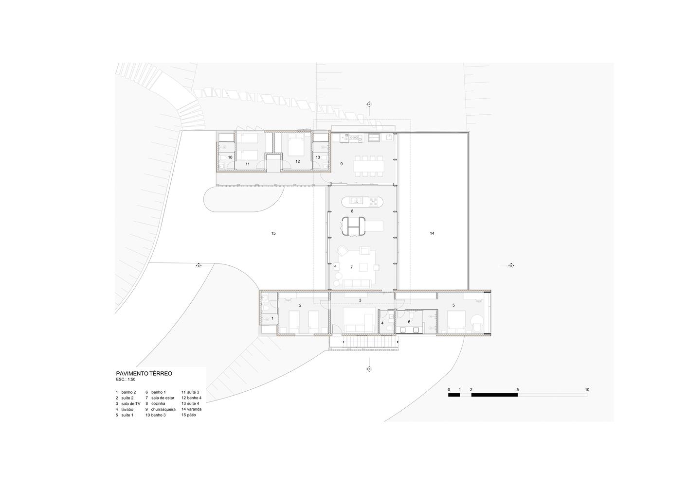
Plan - Ground floor

© Pedro Kok
最初,有人建议在进场道路附近的小型自然高原上建造。然而,在研究了阳光照射后,我们发现由于附近的一座山,这个地区在冬天的整个下午都会被遮挡。然后,我们选择了陆地上的另一个点,离山的影响更远,坡度也不那么陡。我们考虑了该地区没有树木的情况,以及地平线上山脉的视觉框架,特别是位于圣本托-多萨普卡伊的佩德拉·多巴乌。
Initially, there was a suggestion to build on the small natural plateau near the access road. However, after studying the sunlight exposure, we found that this area would be shaded throughout the afternoon in winter due to a nearby mountain. We then opted for another point on the land, further away from the mountain's influence and with a less steep slope. We considered the absence of trees in the area and the visual framing of the mountains on the horizon, especially the Pedra do Baú located in São Bento do Sapucaí.

© Pedro Kok

© Pedro Kok

© Pedro Kok
房子分为四个功能区。第一个街区是这个家庭的私密空间:主套房、电视室(也是通过车库的次要入口)和儿童套房。第二个街区被指定为客房。第三个街区更轻,更完整,连接了前两个街区,集中了生活区:客厅、内部和外部厨房以及一个大的前廊。第四个街区位于较低楼层,包括一个车库、储藏室、浴室、酒窖和健身房。作为一个概念合成,我们有一个木平面轻轻地放在两个间隔开的粘土块上。
The house is organized into four functional blocks. The first block houses the family's intimate spaces: the master suite, the TV room, which also serves as a secondary entrance through the garage, and the children's suite. The second block is designated for guest suites. The third block, which is lighter and more integrated, connects the two previous ones and concentrates the living areas: the living room, internal and external kitchens, and a large front porch. The fourth block, at the lower level, includes a garage, storage room, bathroom, wine cellar, and gym. As a conceptual synthesis, we have a wooden plane gently resting on two clay blocks spaced apart.

© Pedro Kok
仿佛私人街区之间的空间创造了社交区域,这超出了程序定义,在几何上导致了交叉点,即会议。房子的一大亮点是社交街区的大型弯曲木制天花板,给人一种置身于造船厂内的感觉,仿佛我们在观察一艘悬挂的船的船体。我们一个接一个地设计金属桁架来创造这种效果,当然,除了实现木柱之间经济框架的结构功能。建筑体系是混合的,由木结构、钢桁架、陶瓷结构砌体和钢筋混凝土组成。房子的物质性强调了木材和陶瓷的使用,反映了在选择将我们与时间和生活联系起来的天然材料时的亲生物原则。
As if the very space between the private blocks created the social area, which, beyond programmatic definitions, geometrically results in the intersection, that is, the meeting. A highlight of the house is the large curved wooden ceiling of the social block, which creates the sensation of being inside a shipyard, as if we were observing the hull of a suspended boat. We designed the metal trusses one by one to create this effect, in addition, of course, to fulfilling the structural function of an economical frame between the wooden pillars. The construction system is mixed, composed of a wooden structure, steel trusses, ceramic structural masonry, and reinforced concrete. The materiality of the house emphasizes the use of wood and ceramics, reflecting the principles of biophilia in the choice of natural materials that connect us with time and life.

© Pedro Kok